**Standout Features:**
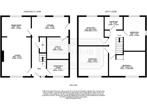
- Spacious semi-detached family home with 4/5 bedrooms
- Open-plan living/dining area with large picture windows
- Generous driveway parking for multiple vehicles
- Enclosed rear garden with lawn and patio, perfect for outdoor dining
- Large utility room and versatile ground-floor office/bedroom
- Located in a highly regarded school catchment area
**Summary:**
Discover this charming semi-detached family home situated in the picturesque village of Shepley, HD8 8DW, surrounded by beautiful open vistas of rolling countryside. With four double bedrooms on the first floor and a flexible fifth bedroom or home office on the ground floor, this property is an ideal fit for families or those seeking extra space for remote work.
The welcoming entrance leads to an open-plan living and dining area filled with natural light, thanks to its large picture windows that frame stunning views. A well-equipped kitchen connects to a spacious utility room, streamlining daily chores. Externally, enjoy off-street driveway parking and a generous enclosed rear garden perfect for al fresco entertaining and children's play.
While the property is in overall good condition, potential buyers should consider it is being sold via auction, which may entail unique buying conditions. Take advantage of the area’s low crime rate, excellent mobile signal, and fast broadband speeds, making it an attractive choice for today’s buyers. This delightful home won’t last long in such a competitive market—schedule your viewing now and envision your family’s future here!







































































































