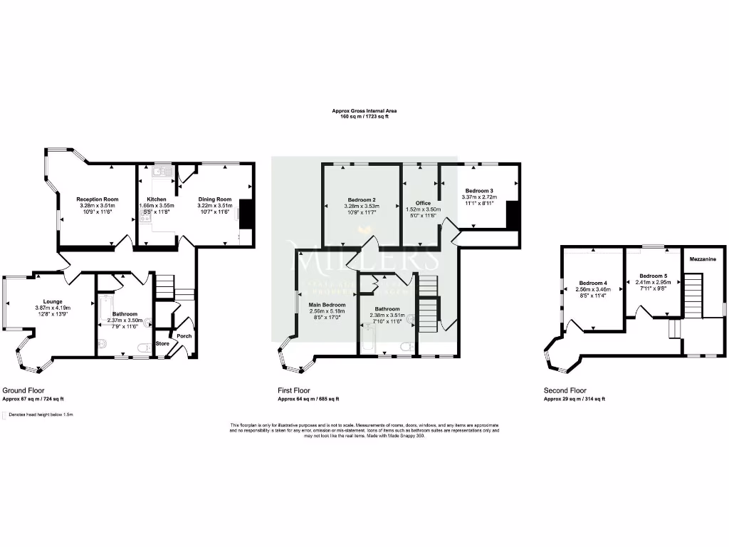
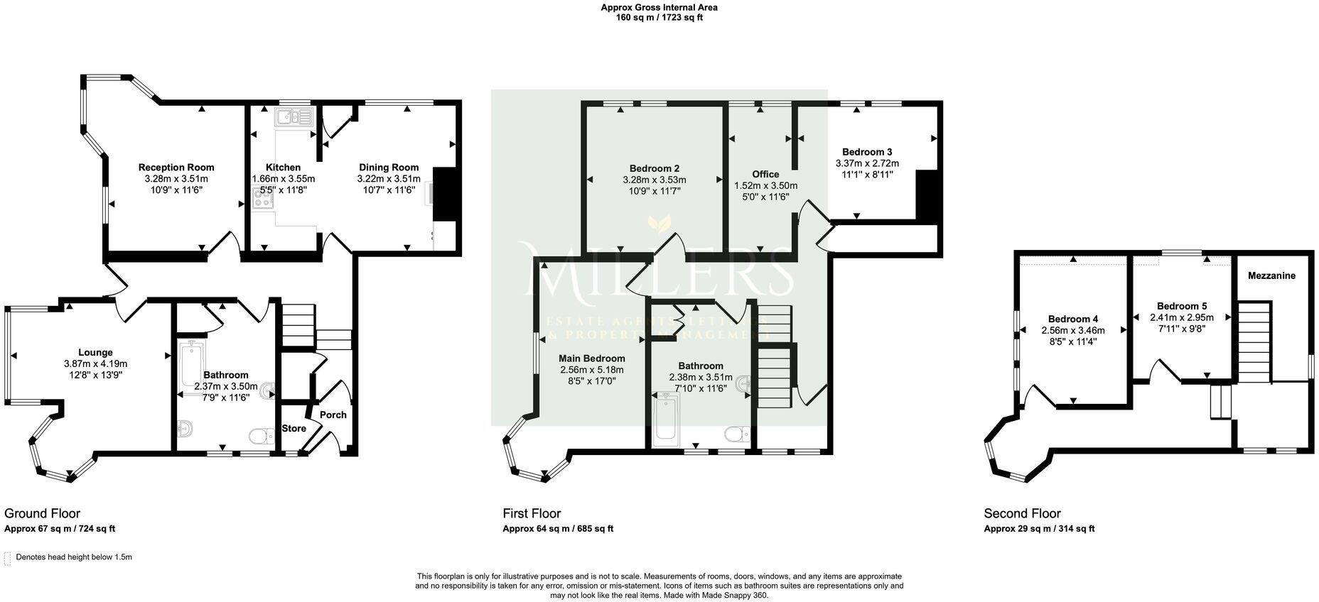
Spacious period family house with cricket green views and gardens.
Five bedrooms across three floors, flexible family accommodation
This substantial five-bedroom semi sits in a prized High Street position overlooking Overstrand Cricket Ground, offering flexible family living across three floors. Characterful Victorian details — stained glass, wood-panel doors and a turreted snug — combine with practical modern comforts such as gas central heating, utility space and off-street parking. The plot includes enclosed front and rear gardens and pleasant sea glimpses from the top floor.
The house will suit a growing or multi-generational family wanting generous room proportions and scope to personalise. Accommodation includes three reception rooms, a well-proportioned kitchen/dining area, a dedicated office and two bathrooms. The turret spaces and bay window create distinctive rooms that make the most of natural light and the cricket-ground aspect.
Buyers should note the property’s age and construction. Built before 1900 with solid brick walls (likely uninsulated) and a current EPC rating of E, it would benefit from energy-efficiency improvements and potential refurbishment to meet modern standards. Glazing is a mix of UPVC sealed units and secondary glazing, and some ongoing maintenance typical of older homes should be expected.
Positioned a short walk from local amenities, primary schools rated Good and the seafront, the house provides a desirable village lifestyle with very low local crime and excellent mobile signal. Broadband speeds are average and the area is classified as deprived, which may influence future resale dynamics. Overall, this is a distinctive period home with substantial internal space and clear potential for improvement and modernisation.
2 bedroom semi-detached house for sale in High Street, Overstrand, Cromer, NR27 — £300,000 • 2 bed • 2 bath • 1018 ft²
4 bedroom detached house for sale in Cromer Road, Overstrand, Cromer, NR27 — £850,000 • 4 bed • 3 bath • 1918 ft²
3 bedroom terraced house for sale in Overstrand’s Sandy Shores and Village Amenities are all Within Walking Distance of this Inviting Property, NR27 — £395,000 • 3 bed • 3 bath • 1094 ft²
6 bedroom semi-detached house for sale in Grand Period Chain Free Home with Annexe in Overstrand, NR27 — £725,000 • 6 bed • 3 bath • 4276 ft²
3 bedroom semi-detached house for sale in Thurst Road, Overstrand, NR27 — £465,000 • 3 bed • 2 bath • 1426 ft²
4 bedroom detached house for sale in Lutyens Drive, Overstrand, NR27 — £595,000 • 4 bed • 3 bath • 1475 ft²














































































































