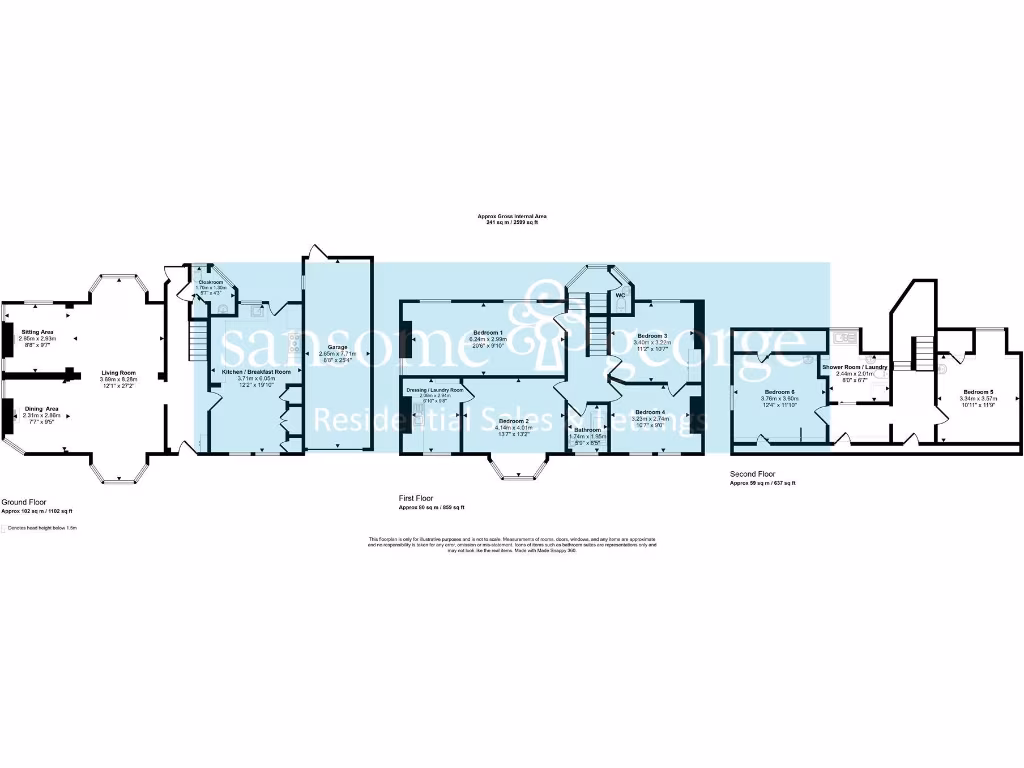
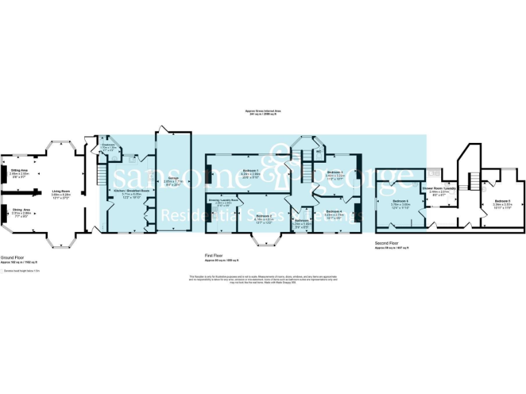
Six double bedrooms with garden and garage on a quiet conservation road.
Grade II listed Victorian detached house, approx. 2,375 sq ft
This substantial Grade II listed Victorian detached house offers generous living across approximately 2,375 sq ft, with six double bedrooms and abundant period detail. High ceilings, bay windows, original fireplaces and traditional joinery create strong character and attractive living spaces for a larger family or an investor seeking high-rent potential.
Set within The Mount Conservation Area and located on a no-through road, the house has a large, established rear garden, a tandem garage and driveway. It sits under 1.5 miles from Reading town centre and the mainline station, with good road links to the M4 and nearby schools, university and hospital.
Important practical points: the property is Grade II listed which will restrict alterations and can complicate works and consents. Planning consent for a part-garage conversion and single-storey extension was granted in 2022 but has lapsed, so any reinstatement of that scheme will require fresh applications. There are only two bathrooms serving six bedrooms, so modernisation or reconfiguration may be needed to suit contemporary family needs.
Overall this is a rare period home with clear scope to improve and reconfigure for modern family living, or to hold as a character investment. Buyers should be prepared for listed-building constraints, potential restoration works and the higher running/council tax costs associated with a large historic property.
4 bedroom terraced house for sale in Castle Hill, Reading, Berkshire, RG1 — £775,000 • 4 bed • 3 bath • 2251 ft²
5 bedroom semi-detached house for sale in Mansfield Road, Reading, Berkshire, RG1 — £700,000 • 5 bed • 2 bath • 1964 ft²
4 bedroom semi-detached house for sale in Conservation area - Town Centre, Berkshire, RG1 — £700,000 • 4 bed • 2 bath • 2494 ft²
4 bedroom terraced house for sale in Pell Street, Reading, RG1 — £500,000 • 4 bed • 1 bath • 1271 ft²
4 bedroom detached house for sale in Hamilton Road, Reading, Berkshire, RG1 — £850,000 • 4 bed • 3 bath • 3793 ft²
4 bedroom semi-detached house for sale in Eldon Road, Reading, Berkshire, RG1 — £650,000 • 4 bed • 2 bath • 2200 ft²






















































































































































