Large, newly renovated six-bedroom detached home on a huge plot near Roundhay Park, chain free..
- Six spacious double bedrooms across three floors
- Newly renovated interiors; move-in ready
- High-spec German kitchen with integrated Neff and Bora hob
- Large west-facing rear garden and conservatory
- Gated driveway, integral garage with electric door and EV charge point
- Tanked cellar offering dry storage and potential for conversion
- Period solid-brick construction; likely no wall insulation assumed
- Council tax above average; allow budget for older-house maintenance
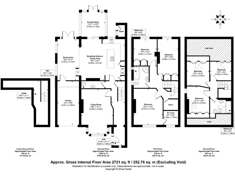
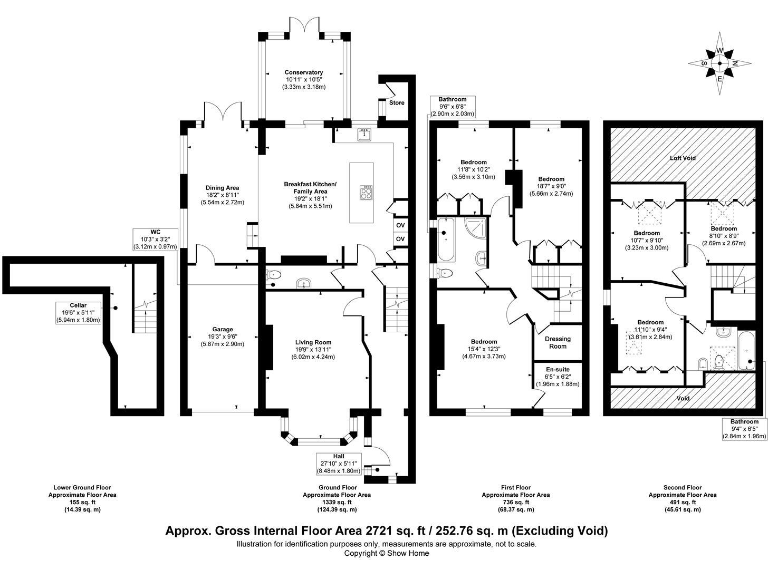
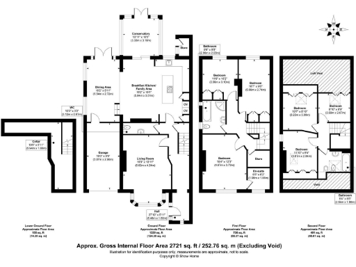
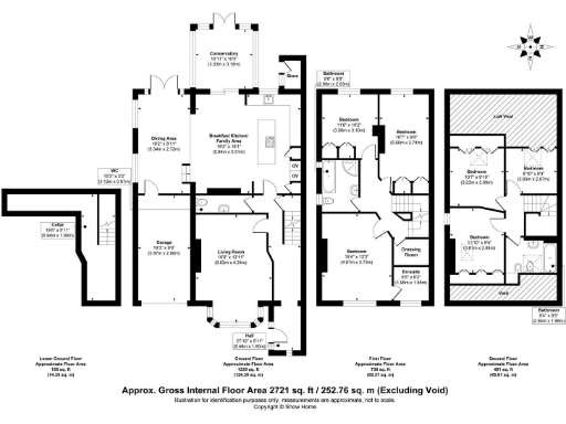
This substantial six-bedroom detached house in Roundhay blends period character with a contemporary finish, freshly renovated and offered chain-free. The open-plan kitchen and living areas, premium integrated appliances and high-spec bathrooms make the property ready to move into for family life, home working and entertaining. The house sits on a large plot with a west-facing garden, gated driveway, integral garage with electric doors and an EV charge point.
Arranged over lower-ground, ground, first and second floors, the home offers flexible accommodation including a tanked cellar for dry storage or scope for conversion. The principal bedroom benefits from an en-suite and dressing room; three further double bedrooms sit on the first floor with three more doubles on the second — excellent for larger families or multigenerational living. High ceilings, retained fireplaces and period details feature alongside contemporary touches such as a German kitchen and custom media wall.
Buyers should note a few practical points: the house is a period-built property (original build stated as 1906) with solid brick walls that are assumed to have no cavity insulation, and council tax is above average. Although recently renovated throughout, buyers may wish to budget for ongoing maintenance typical of older homes and to check the date and warranty of replacements such as glazing and heating systems. Overall, the combination of size, location near Roundhay Park and excellent local schools makes this a strong long-term family purchase.
6 bedroom detached house for sale in Highfield, Old Park Road, Leeds, West Yorkshire, LS8 — £1,750,000 • 6 bed • 3 bath • 4888 ft²
5 bedroom semi-detached house for sale in Stanley Drive, Roundhay, LS8 — £580,000 • 5 bed • 2 bath • 1775 ft²
9 bedroom detached house for sale in Wetherby Road, Leeds, West Yorkshire, LS8 — £1,500,000 • 9 bed • 4 bath • 5780 ft²
5 bedroom semi-detached house for sale in Gledhow Grange View, Roundhay, LS8 — £650,000 • 5 bed • 2 bath • 1591 ft²
5 bedroom detached house for sale in Gledhow Wood Avenue, Roundhay, Leeds, LS8 — £850,000 • 5 bed • 2 bath • 2200 ft²
3 bedroom semi-detached house for sale in Shadwell Walk, Moortown, Leeds, West Yorkshire, LS17 — £450,000 • 3 bed • 1 bath • 1314 ft²






























































































