Spacious three-bedroom home with large garden and off-street parking.
Three bedrooms with built-in storage in the master
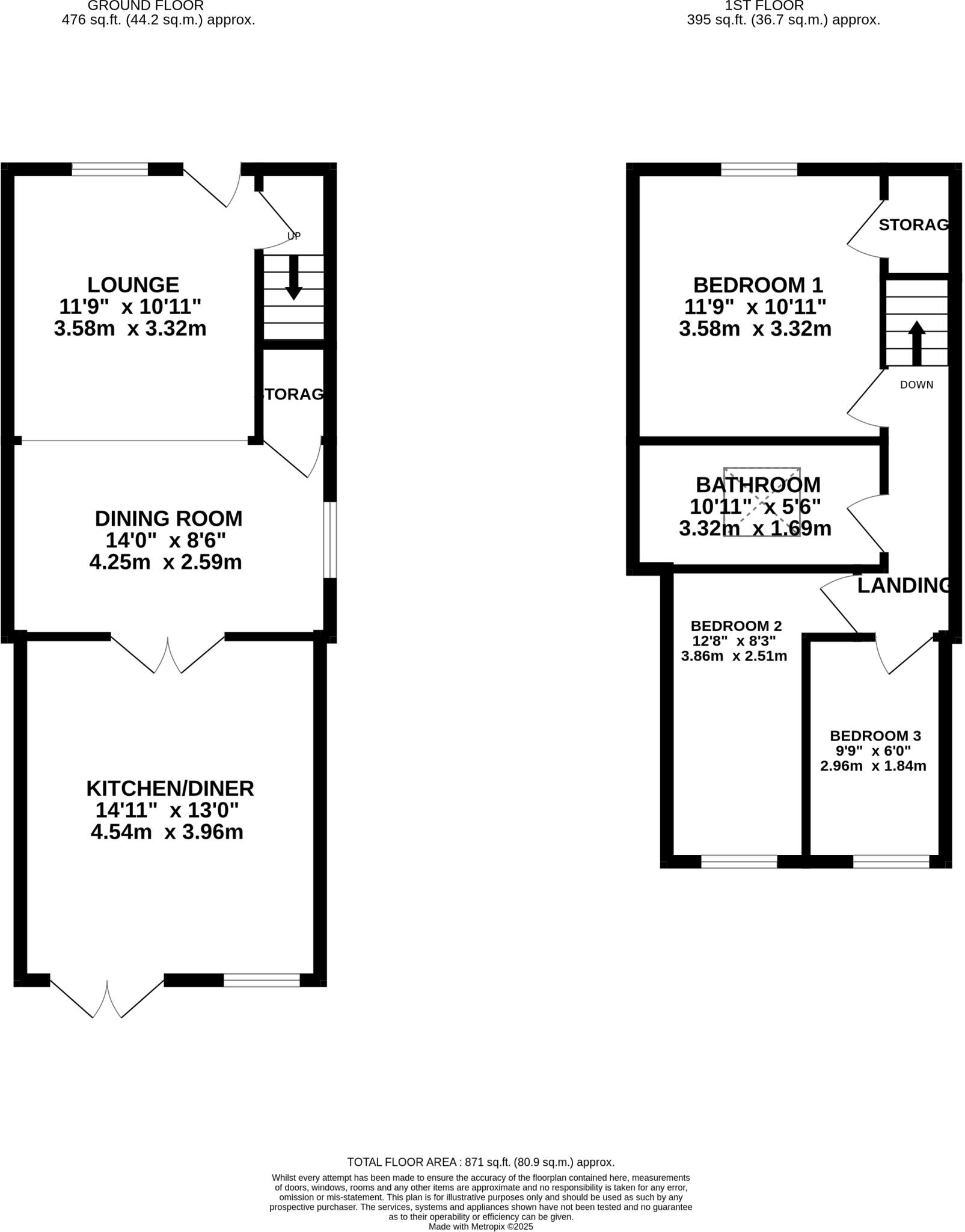
Set on a quiet stretch of Station Road, this end-of-terrace three-bedroom home combines period character with recent modern touches. The ground floor benefits from an open-plan lounge into a dining/study area and a bright, contemporary kitchen-diner that opens onto a long, well-kept rear garden — ideal for family life and summer entertaining.
Upstairs are three bedrooms and a modern bathroom; the master includes built-in storage. Practical features include off-street parking, mains gas central heating with a boiler and radiators, full double glazing, and a modest council tax band. The property sits in a sought-after, small-town fringe location with excellent mobile signal, fast broadband and nearby good schools.
Buyers should note the house is a period build (pre-1900) with solid brick walls and no known cavity insulation, so thermal upgrades could improve comfort and running costs. The property has one bathroom only and the double-glazing installation date is unknown. Overall, it represents a comfortable family home with scope for energy-efficiency improvements and sensitive updating.
3 bedroom end of terrace house for sale in Blueberry Way, Woodville, Swadlincote, Derbyshire, DE11 — £225,000 • 3 bed • 3 bath • 986 ft²
3 bedroom terraced house for sale in Bank Walk, Burton-on-Trent, Staffordshire, DE13 — £160,000 • 3 bed • 1 bath • 797 ft²
3 bedroom end of terrace house for sale in Station Street, Castle Gresley, Swadlincote, Derbyshire, DE11 — £215,000 • 3 bed • 2 bath • 953 ft²
3 bedroom end of terrace house for sale in Northfield Road, Burton-On-Trent, DE13 — £170,000 • 3 bed • 1 bath • 689 ft²
3 bedroom end of terrace house for sale in Sharcote Drive, Stanton, Burton-on-Trent, Derbyshire, DE15 — £220,000 • 3 bed • 2 bath • 853 ft²
3 bedroom town house for sale in Yew Tree Court, Hatton, DE65 — £220,000 • 3 bed • 2 bath • 810 ft²






























































