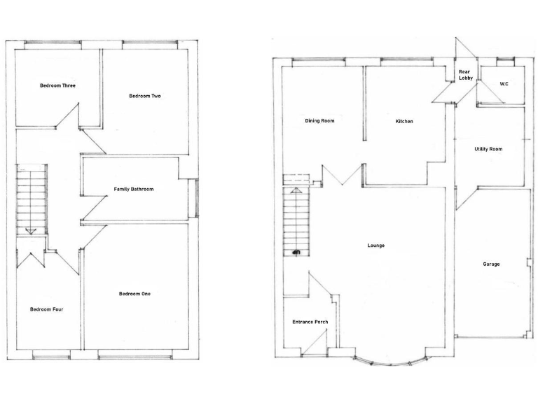
Four double/single bedrooms suitable for family living
This four-bedroom detached house sits in a sought-after turning in Danbury, arranged for comfortable family living. The ground floor offers a large lounge, separate dining room, modern fitted kitchen, utility and a useful ground-floor WC — practical spaces for everyday life and entertaining.
Outside, the property benefits from a large block-paved driveway with ample parking, an integral garage and one of the largest west-facing gardens on the road, ideal for children and evening sun. A powered garden office adds flexible space for work or hobbies.
Location is a genuine strength: the house is within walking distance of a highly regarded primary school, close to bus links for nearby secondary schools and a short drive from Chelmsford city centre and the Sandon park-and-ride for commuters.
Buyers should note a few material points: broadband speeds in the area are reported as slow, council tax is above average, and the property has a single main family bathroom (plus a ground-floor WC). Double glazing is present but install date is unknown. Energy rating C — generally efficient but buyers should verify appliances and services as part of their survey.
4 bedroom detached house for sale in 22 Butts Lane, Danbury, CM3 — £550,000 • 4 bed • 2 bath • 1722 ft²
4 bedroom detached house for sale in Highfield Close, Danbury, CM3 — £600,000 • 4 bed • 1 bath • 1049 ft²
5 bedroom detached house for sale in Mill Lane, Danbury, CM3 — £825,000 • 5 bed • 2 bath • 2575 ft²
4 bedroom detached house for sale in Little Baddow Road, Danbury, CM3 — £870,000 • 4 bed • 3 bath • 2369 ft²
4 bedroom detached house for sale in Colemans Lane, Danbury, Chelmsford, CM3 — £850,000 • 4 bed • 2 bath • 2724 ft²
3 bedroom semi-detached house for sale in Lingwood Close, Danbury, Chelmsford, CM3 — £525,000 • 3 bed • 2 bath • 1350 ft²


































































