Comfortable retirement apartment minutes from the beach with gated parking.
Balcony with sea views, immediate coastal access
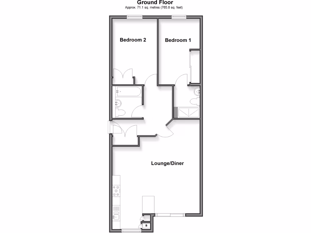
A bright, modern two-bedroom ground-floor apartment just a short walk from the beach, offering a patio balcony with sea views and gated allocated parking. Built around 2007, the flat benefits from double glazing, mains gas central heating and a secure coastal development setting.
Designed for someone looking to downsize or retire, the 597 sq ft layout is compact and manageable, with an open-plan lounge/kitchen and two good-sized bedrooms. The property is chain free and sits on a very long lease (982 years), making it straightforward to buy and move in.
This listing is being marketed with a Homewise Home for Life Lifetime Lease example for over-60s: a guide Lifetime Lease price of £214,500 (market value £325,000) is indicative only and will vary by age and personal circumstances. Important ongoing costs include an average service charge of about £1,400 pa and a small ground rent of £100 pa. Buyers should verify all lease and financial details with their solicitor.
Practical strengths are the secure gated parking, communal gardens and low flood risk. The main compromises are the modest overall size and the regular service charge; prospective buyers should view to judge space, layout and storage for their needs.
2 bedroom ground floor flat for sale in Ridgeway Cliff, Herne Bay, Kent, CT6 — £325,000 • 2 bed • 2 bath • 597 ft²
2 bedroom flat for sale in Cuthbert Road, Westgate-On-Sea, Kent, CT8 — £159,000 • 2 bed • 1 bath • 560 ft²
2 bedroom apartment for sale in Clarence Road, Herne Bay, Kent, CT6 — £155,500 • 2 bed • 1 bath • 689 ft²
2 bedroom apartment for sale in Beach Avenue, Birchington, Kent, CT7 — £178,500 • 2 bed • 1 bath • 653 ft²
2 bedroom ground floor flat for sale in Olympia Way, Whitstable, Kent, CT5 — £149,000 • 2 bed • 2 bath • 754 ft²
2 bedroom apartment for sale in Linksfield Road, Westgate-On-Sea, Kent, CT8 — £215,000 • 2 bed • 2 bath • 1217 ft²


































































