Compact village cottage with gardens and scope to update — ideal first home.
Victorian mid-terrace cottage with period features and exposed beams
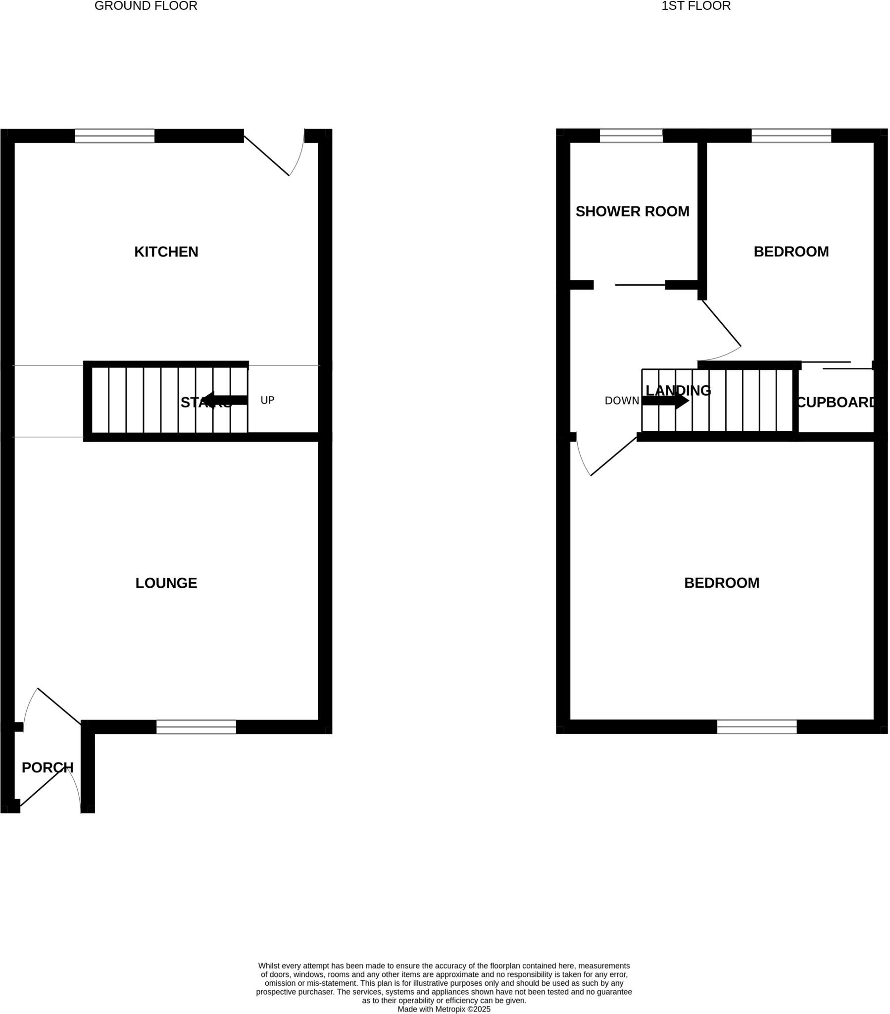
A traditional mid-terrace Victorian cottage set in the heart of Middle Rasen, offering two bedrooms, front and rear gardens and village living close to Market Rasen. The house benefits from gas central heating and UPVC double glazing, giving immediate comfort while retaining period character such as exposed beams and a feature fireplace.
Accommodation is compact across approximately 467 sq ft: porch, sitting room, kitchen, two bedrooms and a shower room. The kitchen is functional but described as in poor condition and may need updating or partial replacement to suit modern tastes. The property sits on a small plot with a lawned front garden, paved patio to the rear and a garden shed — easy to maintain for a first-time buyer or downsizer.
Practical points for buyers: walls are original solid brick (likely no cavity insulation), glazing was installed pre-2002, EPC is D and council tax band A (relatively low running costs). There is an understood right of way over the private drive at the rear; interested parties should verify this and the tenure details with their solicitor.
This cottage will suit a buyer seeking an affordable entry into village life who values period charm and a manageable garden. It offers scope for sensitive updating to add value, but requires awareness of its modest size and some maintenance/modernisation work.
2 bedroom end of terrace house for sale in Gainsborough Road, Middle Rasen, LN8 — £125,000 • 2 bed • 1 bath • 1389 ft²
2 bedroom cottage for sale in Waterloo Street, Market Rasen, LN8 — £115,000 • 2 bed • 1 bath • 676 ft²
1 bedroom end of terrace house for sale in King Street, Market Rasen, LN8 — £115,000 • 1 bed • 1 bath • 533 ft²
2 bedroom semi-detached house for sale in Dear Street, Market Rasen, LN8 — £120,000 • 2 bed • 1 bath • 544 ft²
2 bedroom detached bungalow for sale in Drax Court, Middle Rasen, LN8 — £185,000 • 2 bed • 1 bath • 765 ft²
2 bedroom town house for sale in King Street, Market Rasen, LN8 — £160,000 • 2 bed • 1 bath • 672 ft²






































