Large plot, versatile outbuildings and superb rural outlooks — ideal for family living or annexe conversion.
Detached four-bedroom farmhouse with panoramic Mendip views
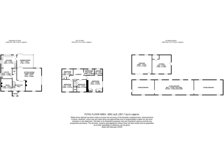
Set on the edge of Catcott with far-reaching views to the Mendip Hills, this detached four-bedroom farmhouse offers substantial, flexible accommodation across almost 3,851 sq ft and sits in a very large private plot. Three reception rooms include a cosy snug with stone fireplace, a sitting room with multi-fuel stove and a bright garden room with French doors that frame the countryside. The farmhouse kitchen/diner provides generous family space and direct garden access.
Externally the plot is a major asset: extensive lawns, mature planting, large patio, long gravel driveway, off-street parking and a detached garage with an adjoining studio that already has consent to convert into a two-bedroom annexe. A substantial block-built outbuilding has a new roof, power and openings, presenting real scope for conversion or workshop use (further development subject to planning).
Practical considerations are clear: heating is oil-fired, broadband speeds are very slow and the property will suit buyers prepared for countryside living and potential updating rather than those seeking a turnkey, high-speed-connected home. The size, location and consented annexe make this particularly attractive to multi-generational families, buyers seeking work-from-home studios or those exploring holiday-let/annexe income (subject to planning and use rules).
This is a rare rural opportunity combining privacy, wide-open views and significant outbuilding potential. It will suit purchasers who value space and are comfortable managing countryside services and ongoing maintenance or modest renovation to fully personalise the home.
4 bedroom detached house for sale in Steel Lane, Catcott, Bridgwater, Somerset, TA7 — £795,000 • 4 bed • 2 bath • 2591 ft²
5 bedroom house for sale in Stolford, Stogursey, Bridgwater, Somerset, TA5 — £650,000 • 5 bed • 2 bath • 2418 ft²
5 bedroom character property for sale in Cheddar Road, Cocklake, Wedmore, BS28 — £1,195,000 • 5 bed • 3 bath • 3627 ft²
7 bedroom barn conversion for sale in Higher Road, Chedzoy, TA7 — £925,000 • 7 bed • 4 bath • 5375 ft²
5 bedroom detached house for sale in Henley, Langport, Somerset, TA10 — £1,500,000 • 5 bed • 4 bath • 5775 ft²
4 bedroom detached house for sale in Heart of Catcott, a popular Polden village, TA7 — £750,000 • 4 bed • 3 bath • 2129 ft²






























































































































