A low-maintenance three-bedroom starter with garden and warranty protection.
3 bedrooms in a compact, efficient layout
Private garden accessed via French doors
Energy-efficient build with 10-year NHBC warranty
Off-street parking and excellent mobile signal
Total internal area about 445 sq ft — small footprint
Single bathroom only; rooms are compact
Annual service charge £115 (below average)
Local area classed as very deprived — affects resale outlook
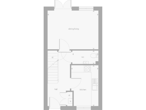
Step into a compact, newly built three-bedroom mews home designed for efficient everyday living. The living-dining room opens through French doors to a private garden, bringing light and a small outdoor space for summer evenings. The separate kitchen and handy hallway storage add practical convenience, while an additional storage cupboard off the principal bedroom helps with organisation.
Built with energy-efficiency in mind and covered by a 10-year NHBC warranty, the property is low maintenance and ready to move into. Off-street parking and excellent mobile signal are practical benefits for commuters and remote workers; there is also a flexible space suitable for a home office on the upper floor.
Be realistic about the footprint: total floorspace is approximately 445 sq ft, so rooms are compact and there is a single bathroom. The local area is described as very deprived, which may affect resale and local services. An annual service charge of £115 is payable.
For a first-time buyer seeking a modern, low-maintenance starter home with warranty protection and outdoor space, this mid-terrace offers sensible value. Buyers needing larger rooms or more than one bathroom should consider the size limit before viewing.
3 bedroom mews property for sale in Abbotsford Road,
Clydebank,
G81 1PA, G81 — £233,000 • 3 bed • 1 bath • 591 ft²
3 bedroom mews property for sale in Abbotsford Road,
Clydebank,
G81 1PA, G81 — £257,000 • 3 bed • 1 bath • 626 ft²
3 bedroom mews property for sale in Abbotsford Road,
Clydebank,
G81 1PA, G81 — £276,000 • 3 bed • 1 bath • 704 ft²
3 bedroom mews property for sale in Abbotsford Road,
Clydebank,
G81 1PA, G81 — £271,000 • 3 bed • 1 bath • 631 ft²
3 bedroom mews property for sale in Abbotsford Road,
Clydebank,
G81 1PA, G81 — £269,000 • 3 bed • 1 bath • 631 ft²
3 bedroom semi-detached house for sale in Chapel Gardens,
Havoc Road,
Dumbarton,
West Dunbartonshire,
G82 4JH, G82 — £272,000 • 3 bed • 1 bath • 18248 ft²


















































