Freehold two-bedroom upper flat let at £575pcm — large rooms, garden, investment potential.
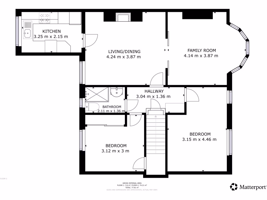
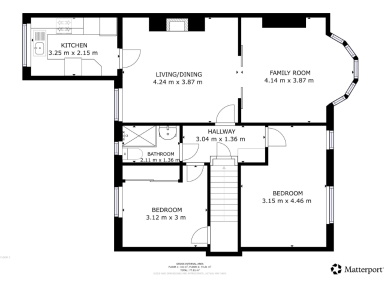
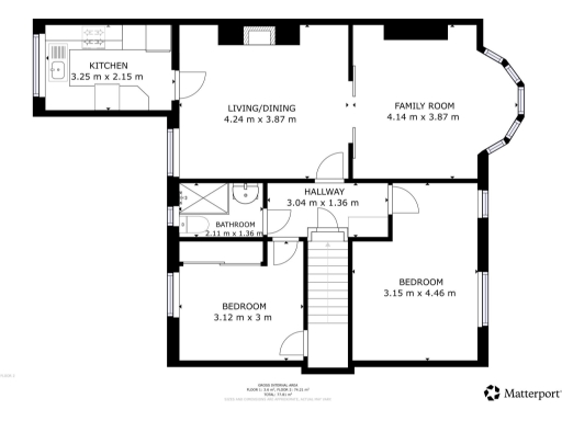
Freehold two-bedroom upper flat, 1,051 sq ft
A sizable two-bedroom upper flat offered freehold and currently let at £575 pcm — ideal for investors seeking immediate rental income. The 1,051 sq ft layout includes a living room, separate dining room, fitted kitchen and a bathroom with a large walk-in shower. Gas central heating and double glazing are already in place, and the property has an EPC rating of C.
Externally there is a shared front garden and a private rear garden, plus on-street parking. Broadband speeds are fast and mobile signal is excellent, with frequent bus links and local amenities close by. Council Tax is low (Band A), which can help attract budget-conscious tenants or first-time buyers if resold.
Be clear on the local context: this sits in a very deprived area with a high recorded crime rate, which can affect rental demand and resale values. The flat is currently tenanted (no upper chain), so viewings and vacant possession will be subject to tenancy terms. There is visible scope for refurbishment to lift rental yield and capital value.
For an investor prepared to manage tenancy and local-market risks, the property offers immediate income, a large internal size and refurbishment upside. Buyers seeking quiet, low-crime neighbourhoods or an immediate vacant purchase should note the location drawbacks before proceeding.
2 bedroom flat for sale in Moorhead, Cowgate, Newcastle Upon Tyne, NE5 — £70,000 • 2 bed • 1 bath • 734 ft²
2 bedroom flat for sale in Joan Street, Benwell, Newcastle upon Tyne, Tyne and Wear, NE4 8QN, NE4 — £70,000 • 2 bed • 1 bath
2 bedroom flat for sale in Fouracres Road, Cowgate, Newcastle upon Tyne, Tyne and Wear, NE5 3BB, NE5 — £85,000 • 2 bed • 1 bath • 646 ft²
2 bedroom flat for sale in Haggerston Crescent, Newcastle upon Tyne, Tyne and Wear, NE5 — £79,950 • 2 bed • 1 bath • 839 ft²
2 bedroom flat for sale in Ovington Grove, Fenham, Newcastle upon Tyne, Tyne and Wear, NE5 2QH, NE5 — £85,000 • 2 bed • 1 bath • 819 ft²
2 bedroom ground floor flat for sale in Stowell Terrace, Heworth, Gateshead, Tyne and Wear, NE10 0NX, NE10 — £85,000 • 2 bed • 1 bath • 799 ft²


























































