**Key Features:**
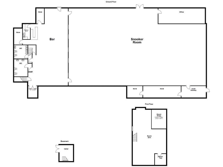
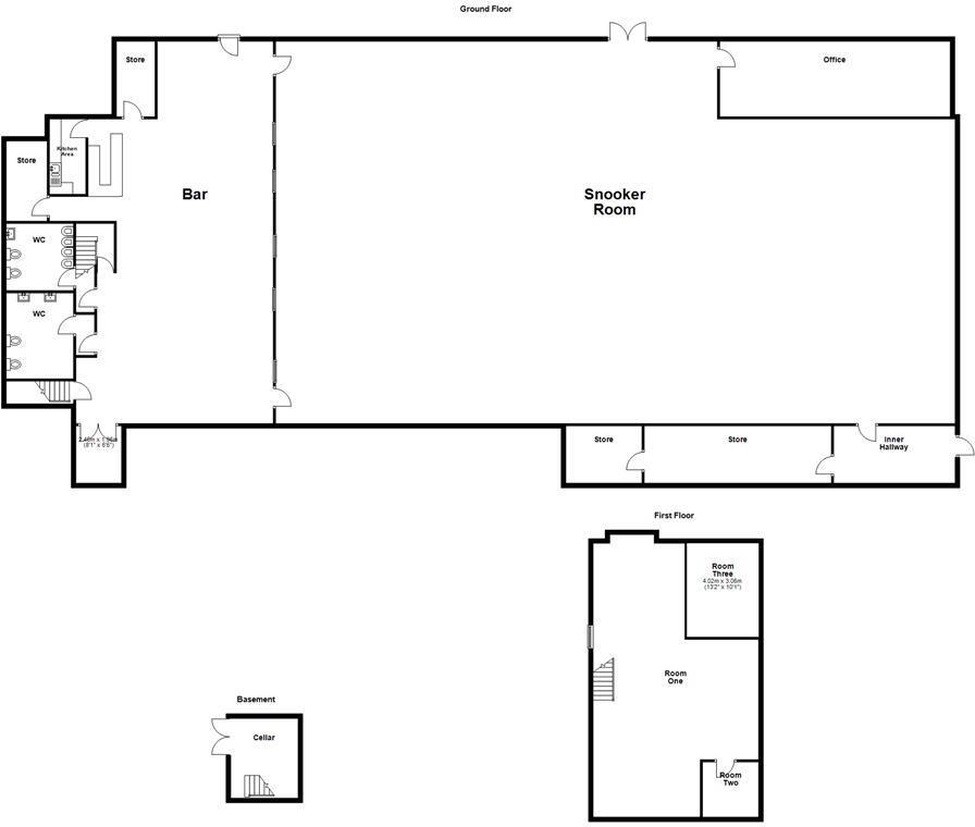
- Substantial commercial premises currently operating as a snooker hall
- Large main snooker room perfect for multiple tables
- Bar area, several storage rooms, and a cellar with plumbing
- Potential to create a flat above for rental income or living space
- Situated in the vibrant Great Harwood town center, close to amenities
- Off-street parking and wrap-around gardens
Nestled in the bustling heart of Great Harwood, this impressive leasehold commercial property offers immense potential for entrepreneurs and investors alike. Spanning 931 square feet, the property features an expansive snooker hall and bar area, ideal for hosting a lively atmosphere. The opportunity to develop living space above adds valuable flexibility—perfect for generating rental income or providing a unique personal residence in a vibrant community.
The property's charming Victorian stone facade complements its location near various amenities, making it not only a strategic business choice but also a community hub. However, it may require some renovations to fully realize its potential. The area, while thriving, does face challenges such as higher crime rates, which should be considered. With its unique attributes and the chance to create something special, don't miss out on this exceptional opportunity to invest in Great Harwood's promising future.
Commercial property for sale in Water Street, Accrington, BB5 — £150,000 • 1 bed • 1 bath • 996 ft²
Commercial property for sale in Britannia Street, Great Harwood, Blackburn, BB6 — £259,950 • 4 bed • 2 bath • 3475 ft²
4 bedroom block of apartments for sale in Britannia Street, Great Harwood, Blackburn, BB6 — £259,950 • 4 bed • 2 bath • 3475 ft²
Commercial property for sale in Church Street, Burnley, BB11 — £110,000 • 1 bed • 1 bath • 815 ft²
Character property for sale in Orchard Street, Blackburn, BB6 — £300,000 • 1 bed • 2 bath • 1813 ft²
High street retail property for sale in 7-9 St. Peter Street, Blackburn, Lancashire, BB2 2HD, BB2 — £220,000 • 1 bed • 1 bath • 4429 ft²


































































































































































