Extended three-bedroom home with parking and modern kitchen for family buyers.
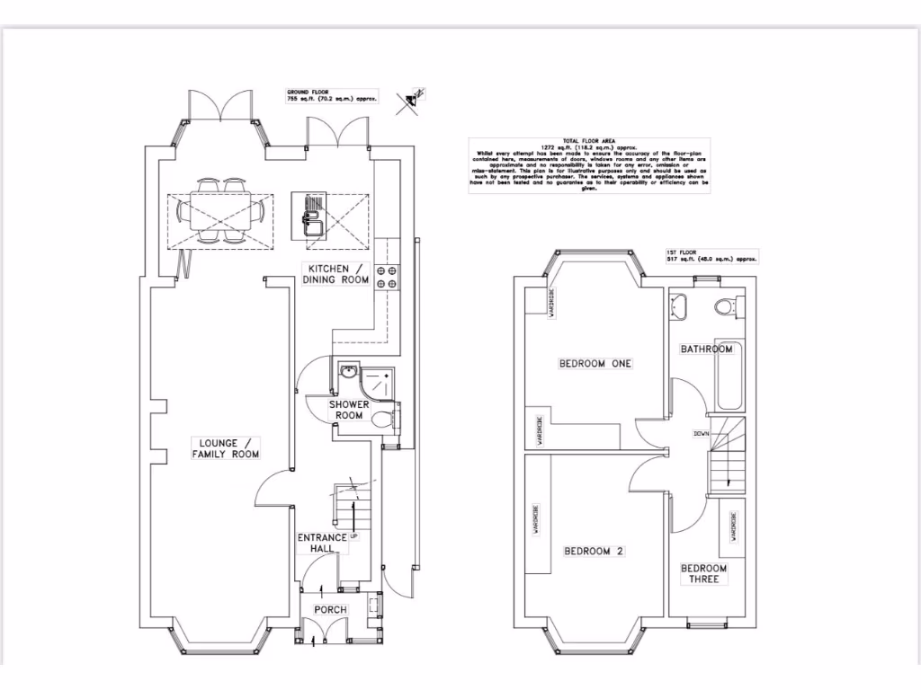
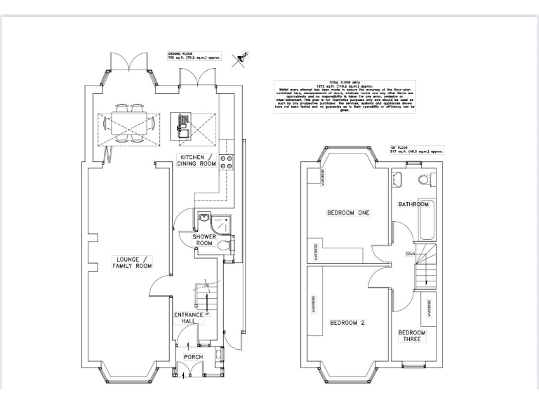
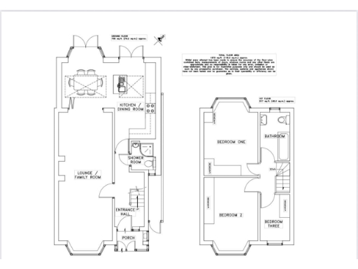
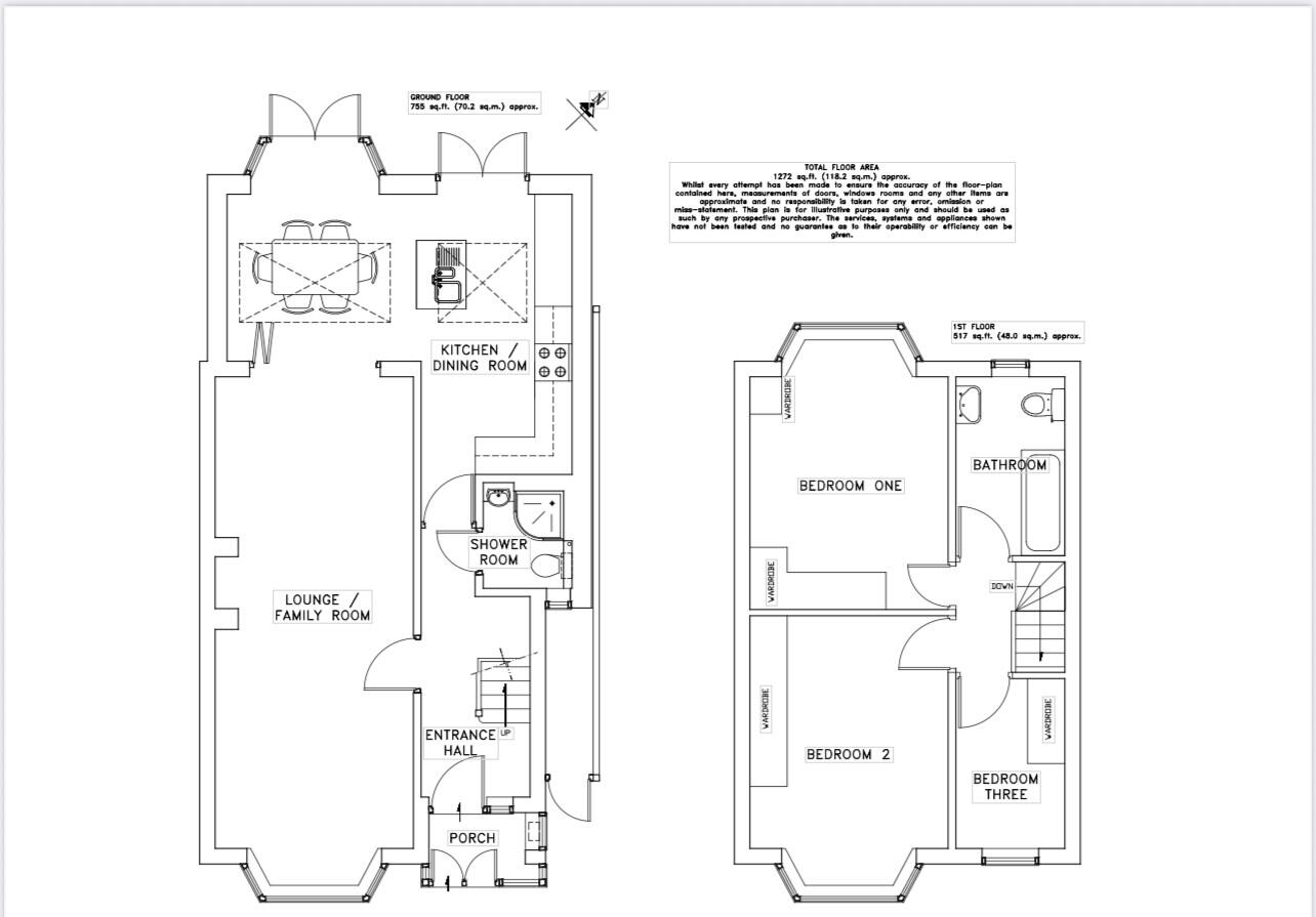
- Extended three-bedroom semi-detached house, c.1,272 sq ft
- Modern open-plan kitchen/diner with skylight and bi-fold doors
- Bay-fronted living room and downstairs shower room
- Wide block-paved driveway; off-street parking for multiple cars
- Decent rear garden; gated side access
- Solid brick walls likely uninsulated; upgrade recommended
- EPC D and some cosmetic updating required
- Local area shows deprivation; mixed primary school ratings
This extended three-bedroom semi-detached house on Yarningale Road offers generous family living across approximately 1,272 sq ft. The ground floor benefits from a modern open-plan kitchen/dining space with skylight and bi-fold doors, plus a bay-fronted living room and a downstairs shower room — a practical layout for day-to-day family life and entertaining.
Outside, a wide block‑paved driveway provides convenient off-street parking for several vehicles and gated side access leads to a decent rear garden, offering low‑maintenance outdoor space for children and pets. The property is freehold and sits in a popular Kings Heath suburb with cafes, parks and strong commuting links into Birmingham.
The house presents clear scope to add value: cosmetic updating in places and potential insulation improvements (solid brick walls assumed uninsulated) would modernise the mid‑20th century construction and could improve energy performance. EPC shown as D and some rooms show a dated exterior finish; buyers should allow budget for targeted refurbishment.
Local socio-economic indicators show a mixed neighbourhood with areas of deprivation; nearby schools include high-performing selective secondaries (Camp Hill Boys/Girls) but some primary schools have lower Ofsted ratings. Broadband and mobile signal are strong, and flood risk is low — practical positives for commuters and families. This home will suit purchasers seeking roomy family accommodation with good parking and scope to invest in upgrading for future value.
3 bedroom semi-detached house for sale in Yarningale Road, Birmingham, West Midlands, B14 — £375,000 • 3 bed • 1 bath • 1272 ft²
3 bedroom semi-detached house for sale in Yarningale Road, Birmingham, West Midlands, B14 — £335,000 • 3 bed • 1 bath • 958 ft²
3 bedroom semi-detached house for sale in Doversley Road, BIRMINGHAM, West Midlands, B14 — £310,000 • 3 bed • 1 bath • 934 ft²
3 bedroom semi-detached house for sale in Yarningale Road, Kings Heath, Birmingham, B14 — £375,000 • 3 bed • 1 bath • 711 ft²
3 bedroom semi-detached house for sale in Hillaire Close, Birmingham, West Midlands, B38 — £330,000 • 3 bed • 1 bath • 721 ft²
3 bedroom end of terrace house for sale in Jutland Road, BIRMINGHAM, West Midlands, B13 — £240,000 • 3 bed • 1 bath • 780 ft²






















































































