Income-producing unit with modernisation potential near local amenities.
Large two-bedroom flat with high ceilings and period features
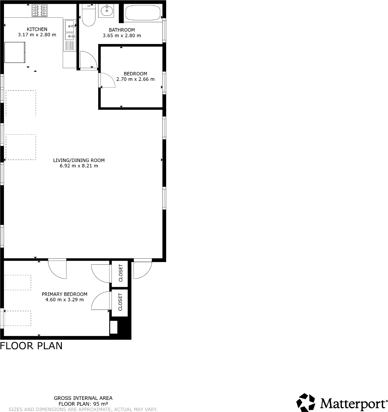
A spacious two-bedroom leasehold flat on Waterville Road presented as a buy-to-let opportunity with long-standing tenants in place. The building retains Victorian character with high ceilings, exposed beams and loft-style living space that supports strong rental appeal. The property currently produces an annual gross income of £7,200 and is offered at £105,000, making it of clear interest to investors and developers seeking an income-producing addition.
The apartment sits in a converted red-brick building with generous internal volume and potential for modernisation or reconfiguration (attic/loft conversion potential). There is no obvious private garden or dedicated parking, so the asset is most suitable for lettings rather than owner-occupier families. The tenancy is long-term: tenants intend to remain, so vacant possession is not guaranteed on completion.
Buyers should note material considerations: the property is leasehold, a Buyers Premium applies to secure purchase, and the immediate neighbourhood records high crime and significant area deprivation. These factors can affect rental demand, management costs and financing options. Conversely, excellent mobile signal, fast broadband and proximity to local amenities support steady tenant demand from workers and single households.
This listing is best for cash buyers or portfolio investors prepared to assume an occupied tenancy and to manage or upgrade the flat. Full investment detail and tenancy paperwork are available in the Let Property Pack for serious enquiries.
2 bedroom flat for sale in Stephenson Street, North Shields, Tyne & Wear, NE30 — £63,500 • 2 bed • 1 bath • 700 ft²
2 bedroom flat for sale in Richmond Road, South Shields, NE34 — £55,000 • 2 bed • 1 bath • 710 ft²
2 bedroom flat for sale in Chirton West View, North Shields, NE29 — £78,000 • 2 bed • 1 bath • 656 ft²
2 bedroom flat for sale in Laygate, South Shields, Tyne And Wear, NE33 — £50,000 • 2 bed • 1 bath • 463 ft²
1 bedroom flat for sale in Stephenson Street, North Shields, NE30 — £45,000 • 1 bed • 1 bath • 506 ft²
2 bedroom flat for sale in Collingwood Street, South Shields, NE33 — £60,000 • 2 bed • 1 bath • 721 ft²






























































