**Standout Features:**
- Stunning show-home style townhouse
- Four spacious bedrooms
- Two modern bathrooms, including a luxury en-suite
- Dedicated detached family entertainment building with bar
- Off-road parking and garage
- Newly renovated throughout with contemporary finishes
- Convenient location near Wolverhampton city centre, New Cross Hospital, and transport links
**Potential Downsides:**
- Located in an area with high crime rates
- Moderately sized rear garden that may require some maintenance
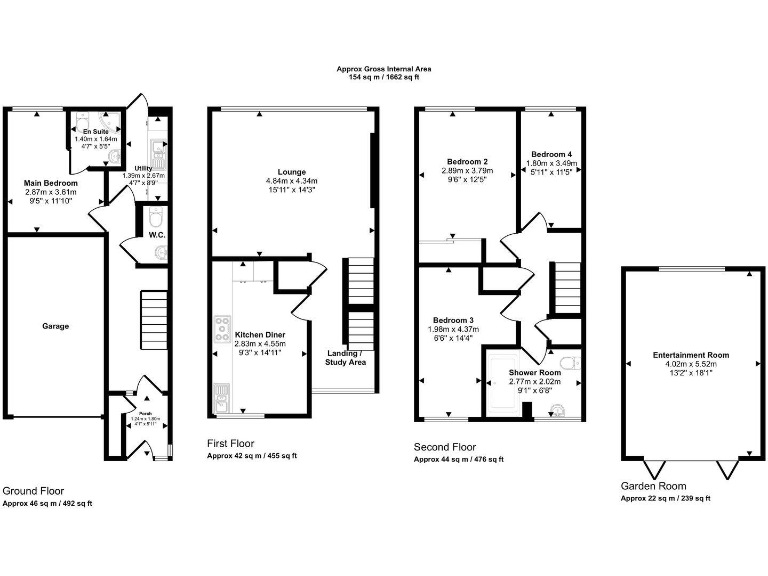
Discover the ultimate blend of modern living and family comfort in this beautifully presented four-bedroom townhouse in Wolverhampton. Just a stone's throw from the city centre, this home boasts an incredible design spread over three levels, featuring a spacious living room with bi-folding windows and a fabulous fitted kitchen/diner perfect for family gatherings.
Step outside to a meticulously designed rear garden, complete with a stunning entertainment building equipped with a bar—ideal for socializing or family fun. The property's contemporary finishes and luxurious en-suite bathroom enhance its appeal, making it move-in ready for any family. Enjoy peace of mind with off-road parking and a garage, while the attractive location places you near essential amenities like schools and shops.
While the garden size is manageable, it’s an inviting space for outdoor relaxation, providing ample opportunities for further customization or landscaping. This home represents a unique opportunity; don’t miss out. Come and experience the charm and comfort this townhouse has to offer!















































































































































































