Spacious riverfront living with expansive terraces and high-end finishes for relaxed downsizing.
Panoramic river, nature reserve and Solent views to the Isle of Wight
Two long decked balconies running the apartment’s length
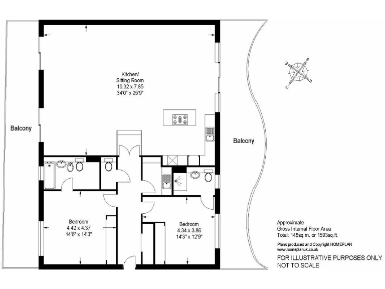
Large 2-bed penthouse — approx. 1,593 sq ft, generous principal suite
Underfloor heating and balanced ventilation with heat recovery
Allocated off-street parking for two cars accessed by electronic gates
Leasehold with 112 years remaining; NHBC warranty in place
Service charge £5,000pa and ground rent £300pa — above-average running costs
Restrictions: no short lets, no large pets, no washing on balconies; communal billing
This exceptional penthouse occupies a prime riverside position with uninterrupted panoramic views across the Lymington River, nature reserve and out to the Solent and Isle of Wight. The apartment is very large (approximately 1,593 sq ft) and arranged over a single linear level, offering two double bedrooms each with en-suite and two extensive decked balconies that run the length of the apartment.
Finished to a high standard, the home features underfloor heating, a balanced ventilation system with heat recovery, and a luxury fitted kitchen with high-end appliances. Practical benefits include an allocated two-car parking area accessed via electronic gates, a separate utility room, NHBC warranty remaining and good access to Lymington’s Georgian High Street, marina and local country walks.
Important practical points: the property is leasehold with 112 years remaining, an above-average annual service charge of £5,000 and an annual ground rent of £300. Heating and some gas supplies operate via a communal scheme with apportionment charges; these communal arrangements can affect bills and are managed by the development. The development has restrictions: no short-term lets, no large pets and no washing on balconies.
This penthouse will particularly suit downsizers or those seeking an elegant retirement base with excellent riverside amenity and easy access to outdoor recreation. It offers immediate comfort and low internal maintenance, but buyers should factor ongoing service charges, communal billing arrangements and local restrictions into their affordability and use plans.
2 bedroom penthouse for sale in Almansa Way, Lymington, Hampshire, SO41 — £525,000 • 2 bed • 2 bath • 706 ft²
2 bedroom apartment for sale in Almansa Way, Lymington, SO41 — £495,000 • 2 bed • 2 bath • 1120 ft²
2 bedroom apartment for sale in Ainslie Place, Lymington, Hampshire, SO41 — £950,000 • 2 bed • 2 bath • 1255 ft²
2 bedroom apartment for sale in Almansa Way, Lymington, SO41 — £495,000 • 2 bed • 2 bath • 1033 ft²
1 bedroom flat for sale in Almansa Way, Lymington, SO41 — £295,000 • 1 bed • 1 bath • 344 ft²
2 bedroom apartment for sale in Almansa Way, Lymington, SO41 — £525,000 • 2 bed • 2 bath • 1130 ft²


























































