**Highlights:**
- Charming Victorian cottage in Brampford Speke village
- 4 spacious bedrooms, including one with a unique mezzanine level
- Inviting sitting room with multi-fuel stove and garden views
- Modern kitchen/dining area with bi-fold doors leading to a terrace
- External studio/home office and ample private garden space
- Easy access to Exeter city center - just a 15-minute drive
- Enclosed garden with a paved area for outdoor dining
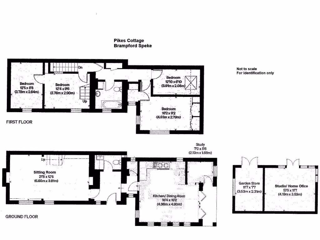
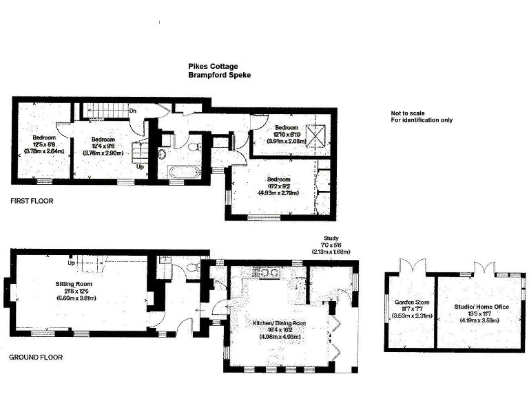
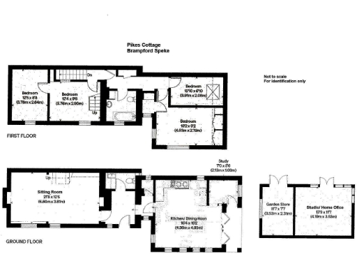
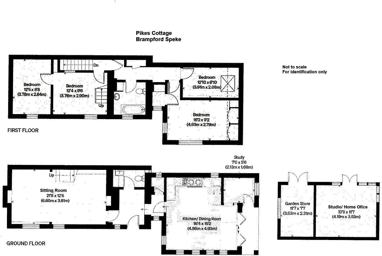
Nestled on the cusp of the picturesque village of Brampford Speke, Pikes Cottage is a delightful detached Victorian property that combines rural charm with modern living. With 1,490 sq ft of space, it features an airy sitting room complete with a cozy multi-fuel stove, and a contemporary kitchen/dining area that flows seamlessly into a charming covered terrace—ideal for entertaining. The principal bedroom offers an enchanting garden view, while an additional three bedrooms provide ample accommodation for family or guests.
The property boasts a generous garden, perfect for those who appreciate outdoor leisure or gardening, complemented by a practical external studio suitable for a home office or creative space. While the cottage is in decent overall condition, potential buyers should be aware of maintenance considerations typical of period homes. With its proximity to local amenities including the Agricultural Inn, primary school, and active community life, this home is perfect for families or anyone seeking an idyllic countryside retreat with easy access to urban conveniences. Don't miss the chance to make this peaceful haven your own—properties like this in such a sought-after area don't stay on the market long!
4 bedroom semi-detached house for sale in Brampford Speke, Exeter, Devon, EX5 — £775,000 • 4 bed • 3 bath • 3208 ft²
4 bedroom terraced house for sale in Broadpark, Sandy Lane, Brampford Speke, Exeter, EX5 — £495,000 • 4 bed • 3 bath • 1741 ft²
2 bedroom end of terrace house for sale in Bullen Street, Thorverton, EX5 5NG, EX5 — £275,000 • 2 bed • 1 bath • 929 ft²
5 bedroom detached house for sale in Brampford Speke, Exeter, Devon, EX5 — £1,500,000 • 5 bed • 3 bath • 2468 ft²
2 bedroom terraced house for sale in Three Horse Shoes, Cowley, Exeter, Devon, EX5 — £250,000 • 2 bed • 1 bath • 696 ft²
3 bedroom semi-detached house for sale in Stokeinteignhead, Devon, TQ12 — £450,000 • 3 bed • 2 bath • 1469 ft²


















































