**Standout Features:**
- Charming mid-terraced cottage with historic character
- Two spacious double bedrooms
- Two cozy reception rooms with rustic aesthetics
- Convenient cloakroom and fitted kitchen
- South-facing courtyard garden, perfect for relaxation
- Central town location with ample amenities and transport links
- No onward chain, ensuring a smooth buying process
- Affordable council tax band B
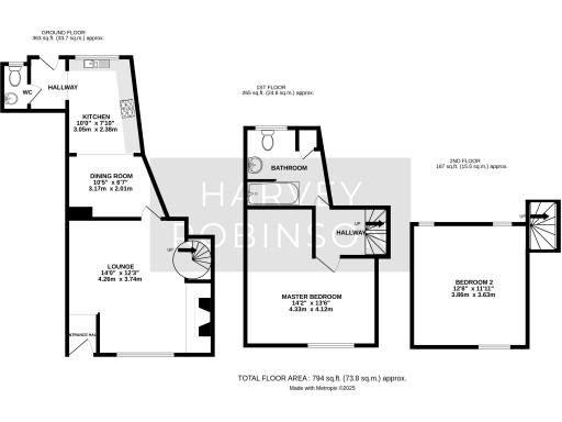
Nestled in the heart of historic Huntingdon, this delightful two-bedroom mid-terraced cottage boasts a unique blend of character and practicality. Spanning over 915 sq. ft., the home features rustic exposed beams and an inviting inglenook fireplace in the lounge, complemented by a separate dining room and convenient cloakroom on the ground floor. Upstairs, the spacious master bedroom and additional double bedroom offer comfortable living, while a generous bathroom ensures functionality for families or guests alike.
The south-facing courtyard garden presents a charming outdoor retreat for unwinding after a busy day or entertaining guests. With its prime town centre location, residents can enjoy proximity to a variety of shops, pubs, and restaurants, as well as excellent transport links including rail access to London King's Cross. Families will appreciate local schools with good Ofsted ratings. The property is in need of some loving updates, providing an opportunity for personalized renovations and enhancements. With no onward chain, this is a prime opportunity to settle into a cozy home in a vibrant community—don’t miss out on making this cottage your own!
2 bedroom end of terrace house for sale in High Street, Huntingdon, PE29 — £240,000 • 2 bed • 1 bath • 661 ft²
2 bedroom terraced house for sale in Great Northern Street, Huntingdon, PE29 — £240,000 • 2 bed • 1 bath • 800 ft²
3 bedroom semi-detached house for sale in Castle Hill Court, Huntingdon, PE29 — £270,000 • 3 bed • 1 bath • 872 ft²
3 bedroom terraced house for sale in Drovers Place, Huntingdon, PE29 — £300,000 • 3 bed • 2 bath • 1038 ft²
3 bedroom terraced house for sale in Essex Road, Huntingdon, PE29 — £250,000 • 3 bed • 1 bath • 892 ft²
2 bedroom terraced house for sale in East Street, Huntingdon, Cambridgeshire, PE29 — £250,000 • 2 bed • 1 bath • 776 ft²














































