**Standout Features:**
- 3 bedroom semi-detached home built circa 1975
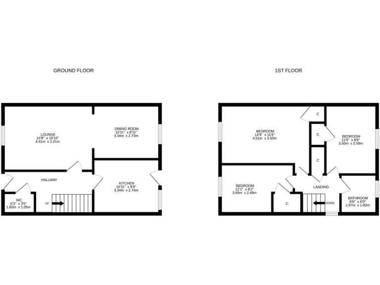
- Approximately 93 square meters of flexible living space
- Ideal for first-time buyers and development potential
- Private driveway with ample parking
- Scenic views of the Ochil Hills
- Close proximity to local amenities
This charming 3-bedroom semi-detached home offers vast potential for both first-time buyers and those looking for a renovation project. Nestled in a quiet cul-de-sac within the desirable village of Tillicoultry, this property spans around 93 square meters, featuring a spacious living area illuminated by large windows, a separate dining room, and a kitchen with direct access to the rear garden. The upper floor hosts three well-sized bedrooms—perfect for families or home working—with built-in storage in each and a three-piece family bathroom.
Despite its age, the home serves as a blank canvas for customization and improvement, with private gardens at both the front and rear, providing ample space for landscaping or potential extensions (subject to permissions). The location offers solid amenities nearby and excellent commuter links to key Scottish cities, making it an attractive option for those looking for a comfortable yet affordable living space.
Do note that the property requires renovation, providing an opportunity to add personal touches or upgrades. With fantastic potential in a peaceful setting, early viewing is strongly advised—don’t miss the chance to transform this property into your dream home!
3 bedroom semi-detached house for sale in Moss Road, Tillicoultry, FK13 — £138,000 • 3 bed • 1 bath • 800 ft²
3 bedroom terraced house for sale in Mayfield Avenue, Tillicoultry, Clackmannanshire, FK13 — £150,000 • 3 bed • 1 bath • 1033 ft²
3 bedroom detached house for sale in 1 Armour Place, Tillicoultry FK13 6RW, FK13 — £330,000 • 3 bed • 2 bath • 1173 ft²
3 bedroom detached bungalow for sale in 4 Belmont Drive, Tillicoultry FK13 6QA, FK13 — £285,000 • 3 bed • 1 bath • 1022 ft²
3 bedroom detached house for sale in 23 Glenwinnel Road, Alva FK12 5NX, FK12 — £255,000 • 3 bed • 1 bath • 1108 ft²
3 bedroom bungalow for sale in Heathwood Crescent, Tillicoultry, Clackmannanshire, FK13 — £295,000 • 3 bed • 2 bath • 904 ft²


















































































