Freehold four-flat income with approved plans to add space and value.
Freehold building with four flats producing £72,000 annual rent
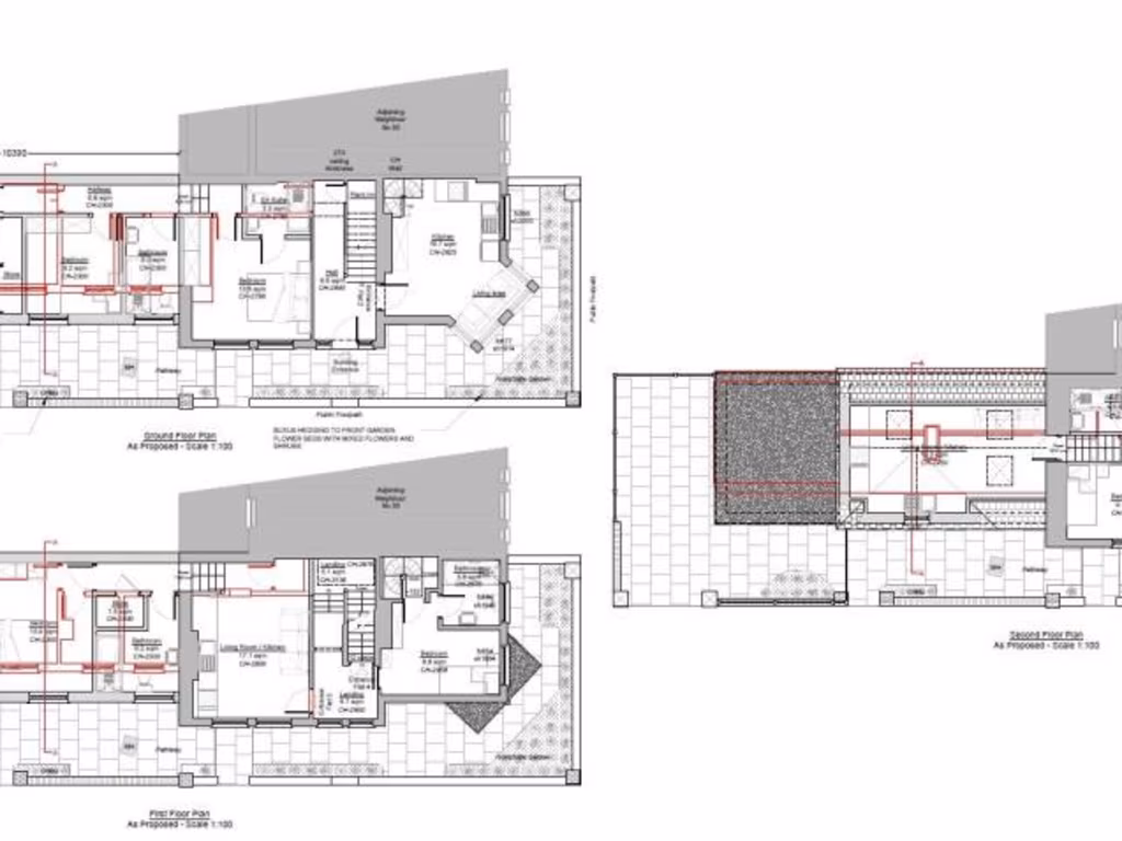
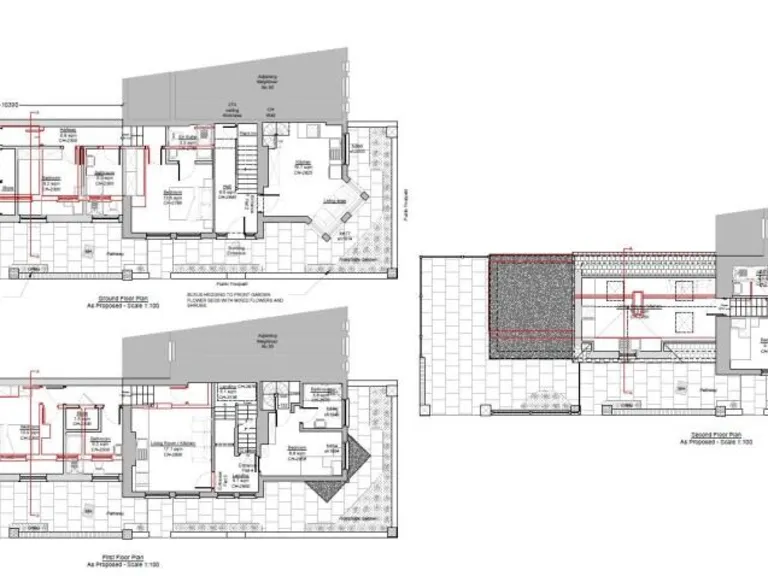
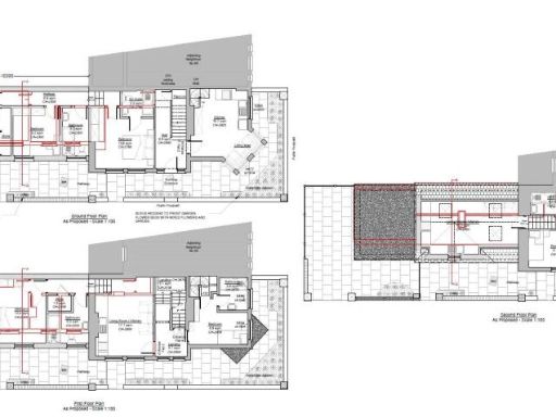
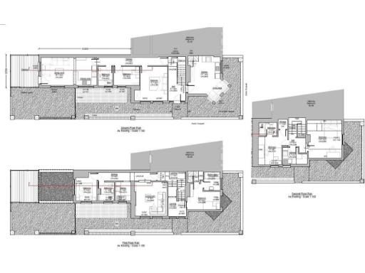
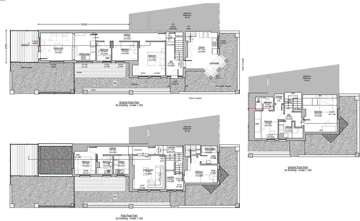
A substantial freehold investment in High Barnet offering immediate rental income and clear upside through approved development. The property currently comprises four self-contained flats (3 x 1-bed, 1 x 2-bed) producing £72,000 pa, equating to c.6% rental yield at the asking price of £1,100,000. There is no service charge or ground rent, and off-street parking plus a private courtyard garden add tenant appeal.
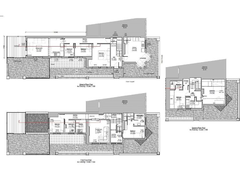
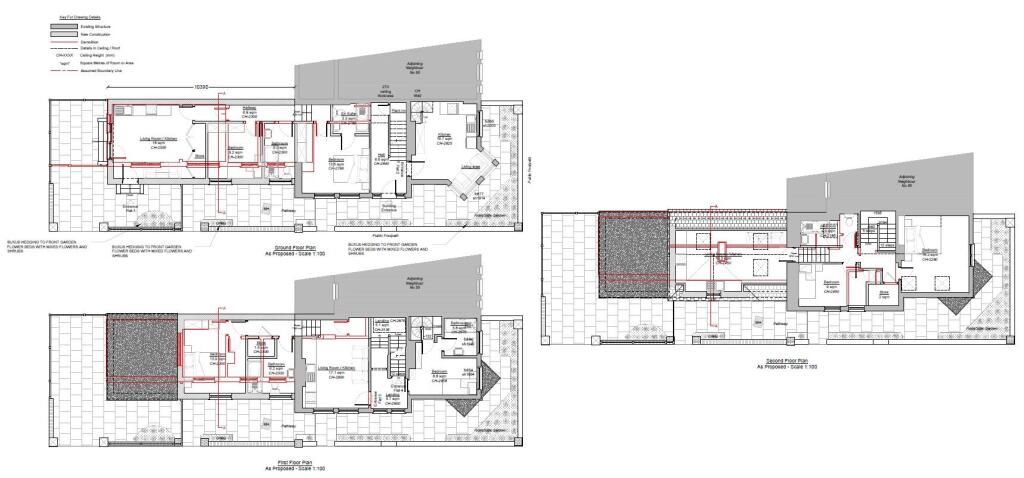
Planning permission is already approved to enlarge the ground, first and second floors, and a second application to create a basement has passed—this provides a defined route to increase lettable floorspace and future rental value. The building’s Victorian character, high ceilings and recent kitchen renovation in at least one unit support higher-spec lettings or conversion to larger units if desired.
Location strengths include close walking distance to The Spires shops, High Barnet Northern Line station, good primary and secondary schools (including two rated top 10%), fast broadband and excellent mobile signal—all attractive to professional commuters and family tenants. Annual rent, parking and garden space make the asset straightforward to manage for a landlord or portfolio investor.
Notable considerations: the site sits on a small plot with limited private outdoor space; the local crime rate is above average, which may affect tenant screening and insurance costs. Enlargements and basement works will require capital expenditure to realize the planning uplift. Buyers should budget for refurbishment, conversion costs and any party-wall or structural works associated with basement construction.
Land for sale in High Street, High Barnet, EN5 — £1,100,000 • 1 bed • 1 bath • 5240 ft²
High street retail property for sale in High Street, Barnet, London, Hertfordshire, EN5 — £900,000 • 1 bed • 1 bath • 3251 ft²
Mixed use property for sale in High Street, Barnet, North London, EN5 — £460,000 • 1 bed • 1 bath • 376 ft²
Property for sale in Brookhill Road, Barnet, Hertfordshire, EN4 — £4,200,000 • 1 bed • 1 bath
3 bedroom mixed use property for sale in Bulwer Road, Barnet, EN5 — £800,000 • 3 bed • 1 bath • 1403 ft²
Commercial property for sale in High Street, Barnet, EN5 — £465,000 • 1 bed • 1 bath • 835 ft²


















































