Spacious detached family home with full-width kitchen, garage and countryside outlooks.
Three double bedrooms with fitted furniture
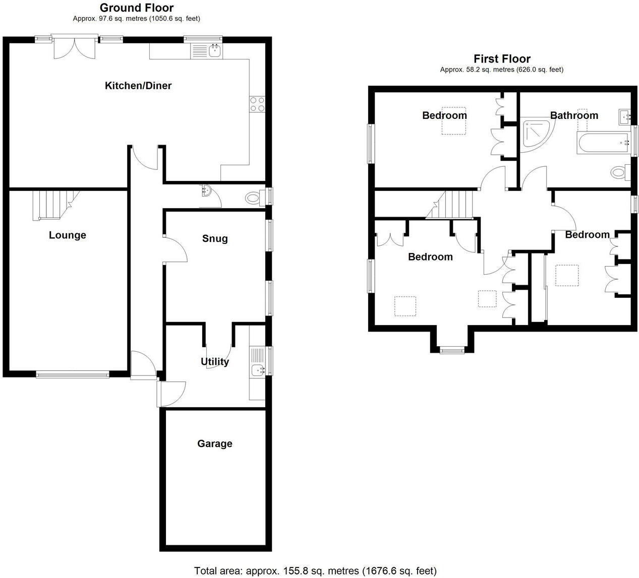
A highly individual detached home on a generous plot with open countryside views to the front. The ground floor offers flexible living: a formal lounge, a sitting room that can serve as a fourth bedroom, a full‑width living/dining kitchen with island and bespoke bar, plus a handy utility and guest WC. Upstairs are three double bedrooms with fitted furniture and an impressive, spacious four‑piece bathroom.
The property benefits from substantial off‑road parking, an attached single garage and a low‑maintenance, landscaped rear garden with several seating areas and a pergola — ideal for relaxed outdoor living. Practical details include double glazing, mains gas central heating (boiler and radiators) and an EPC rating of C.
Important points to note: the vendor advises the property is Freehold but this should be verified by your solicitor. The home was built in the late 1970s/early 1980s and shows typical age-related features; cavity walls are likely only partially insulated. There is a medium flooding risk for the area and the property is in Council Tax Band E, which may affect running costs.
This house will suit a family seeking generous, flexible accommodation in a quiet, semi‑rural pocket of Shirley — or buyers seeking a characterful detached home with scope to modernise services and personalise finishes. Viewing is recommended to appreciate the space, layout and the open front aspect.
4 bedroom detached bungalow for sale in Bills Lane, Shirley, Solihull, B90 — £525,000 • 4 bed • 2 bath • 1461 ft²
5 bedroom detached house for sale in Haslucks Green Road, Majors Green, B90 — £700,000 • 5 bed • 2 bath • 2063 ft²
4 bedroom detached house for sale in Shakespeare Drive, Shirley, B90 2AN, B90 — £600,000 • 4 bed • 1 bath • 1472 ft²
3 bedroom semi-detached house for sale in Aqueduct Road, Shirley, Solihull, B90 — £349,950 • 3 bed • 1 bath • 883 ft²
5 bedroom detached house for sale in Loxley Avenue, Shirley, B90 — £485,000 • 5 bed • 1 bath • 1866 ft²
3 bedroom semi-detached house for sale in Neville Road, Shirley, B90 — £460,000 • 3 bed • 1 bath • 1087 ft²






















































































































































