**Standout Features:**
- Grade II Listed Tudor-style property with a historic charm
- Spacious interior totaling 2,854 sq ft, ideal for mixed-use
- Freehold tenure with full vacant possession upon sale
- Prime location on High Street, ideal for commercial activities
- Includes a paved courtyard for outdoor use
**Potential Concerns:**
- Structural challenges due to listed status may complicate renovations
- Average crime rates in the area
- Potentially dated building with some single-glazing and no insulation
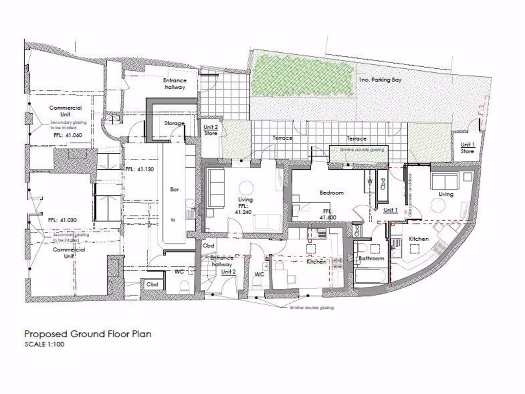
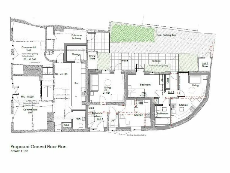
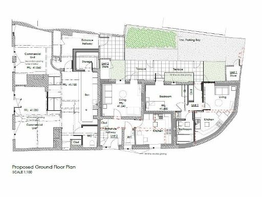
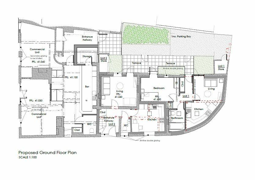
Discover the potential of this unique Grade II Listed Tudor-style building located in the heart of Edenbridge, ideal for investors seeking a mixed-use opportunity. With 2,854 square feet of space, this charming semi-detached property retains its historic character while offering ample room for both commercial and residential use. The inviting layout features a bar area, a variety of rooms, and a serene paved courtyard perfect for small gatherings or outdoor seating.
Positioned prominently on the High Street, the property enjoys excellent visibility among neighboring food and beverage outlets, ensuring a steady flow of foot traffic. However, potential buyers should be aware of the challenges that come with a listed status, which might complicate renovation plans. While the area exhibits above-average crime rates, the surrounding neighborhood is affluent, making it an attractive option for future renters or buyers. With features like mains gas heating and double glazing, this property is a canvas waiting for your vision. Secure this rare opportunity today and embrace the blend of history and modern potential in an ideal location!
Commercial property for sale in High Street, Edenbridge, TN8 — £325,000 • 1 bed • 1 bath • 700 ft²
Commercial property for sale in High Street, Edenbridge, TN8 — £100,000 • 1 bed • 1 bath • 452 ft²
High street retail property for sale in 3 & 5, Church Street, Edenbridge, TN8 5BD, 3 Church Street, Edenbridge, TN8 5BD, TN8 — £480,000 • 1 bed • 1 bath • 1435 ft²
2 bedroom end of terrace house for sale in High Street, Edenbridge, TN8 — £475,000 • 2 bed • 1 bath • 744 ft²
3 bedroom semi-detached house for sale in Church Street, Edenbridge, TN8 — £425,000 • 3 bed • 2 bath • 899 ft²
5 bedroom detached house for sale in Outwood Lane, Bletchingley, Surrey, RH1 — £450,000 • 5 bed • 1 bath • 2800 ft²






































