Move-in ready three-bed with garage, garden and strong renovation potential.
Chain-free freehold three-bed semi-detached home
Detached garage plus off-road parking for several vehicles
Decent enclosed rear garden with lawn and patio
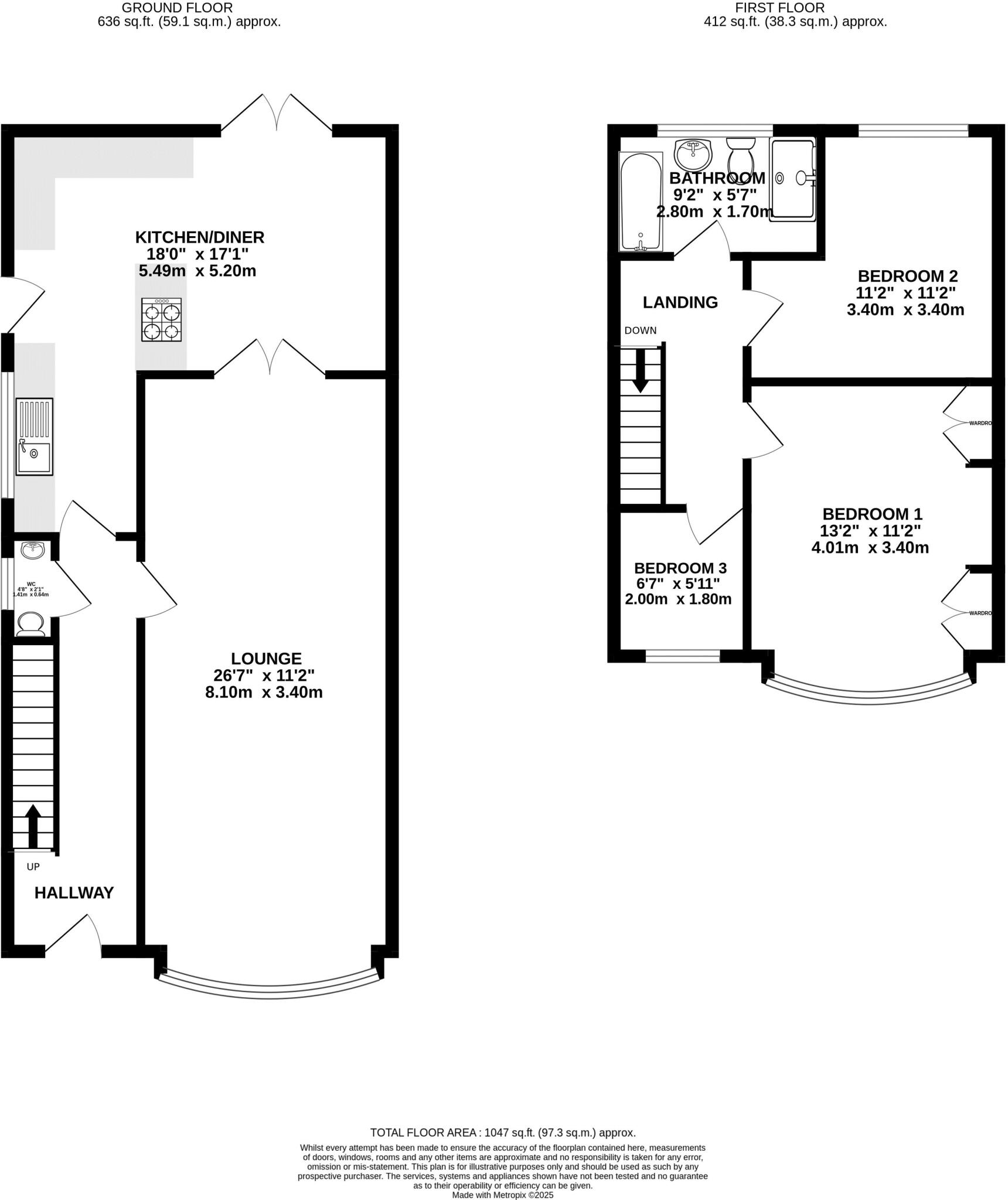
About 1,047 sq ft; period features including bay window
Two double bedrooms and a four-piece family bathroom
Cavity walls assumed uninsulated — retrofit likely needed
Double glazing present; installation date unknown
Area has above-average crime and high local deprivation
Set on Cliff Gardens in a well-regarded pocket of Scunthorpe, this 1930s semi-detached home offers solid family space and immediate move-in potential. The house benefits from a detached garage, off-road parking for multiple cars and a decent enclosed rear garden — practical assets for parents and first-time buyers. Offered freehold and chain-free, the property simplifies a swift purchase.
Internally there is a generous lounge/diner, open-plan kitchen/living area and an under-stairs WC on the ground floor. Upstairs are two double bedrooms, a single bedroom and a four-piece family bathroom. The home measures about 1,047 sq ft and retains period features such as a bay window and decorative moulding, giving scope to enhance character while modernising services where desired.
Practical considerations: the property sits in an area with higher-than-average crime and notable local deprivation, and the cavity walls appear to lack insulation (assumed). Double glazing is present but installation date is unknown. These points affect running costs and future improvement budgets but also present refurbishment potential to add value. Nearby schools include Oasis Academy Henderson Avenue (Good) and several local primary and secondary options; amenities and transport links are available in this urban area.
3 bedroom semi-detached house for sale in Sunway Grove, Scunthorpe, DN16 — £170,000 • 3 bed • 1 bath • 797 ft²
3 bedroom semi-detached house for sale in Cornwall Road, Scunthorpe, DN16 — £143,000 • 3 bed • 1 bath • 825 ft²
3 bedroom semi-detached house for sale in Bedford Way, Scunthorpe, DN15 — £137,000 • 3 bed • 1 bath • 785 ft²
3 bedroom semi-detached house for sale in Philips Crescent, Scunthorpe, DN15 — £175,000 • 3 bed • 1 bath • 991 ft²
3 bedroom semi-detached house for sale in Bodmin Close, Scunthorpe, DN17 — £155,000 • 3 bed • 1 bath • 872 ft²
3 bedroom detached house for sale in Redbourn Way, Scunthorpe, DN16 — £189,950 • 3 bed • 1 bath • 950 ft²


































































