New two-bed starter home with garden and parking, ideal for first-time buyers.
- Brand new energy-efficient two-bedroom semi-detached home
- Shared ownership available from a 40% share (example £110,000)
- Very long lease: 990 years
- Private garden and off-street parking
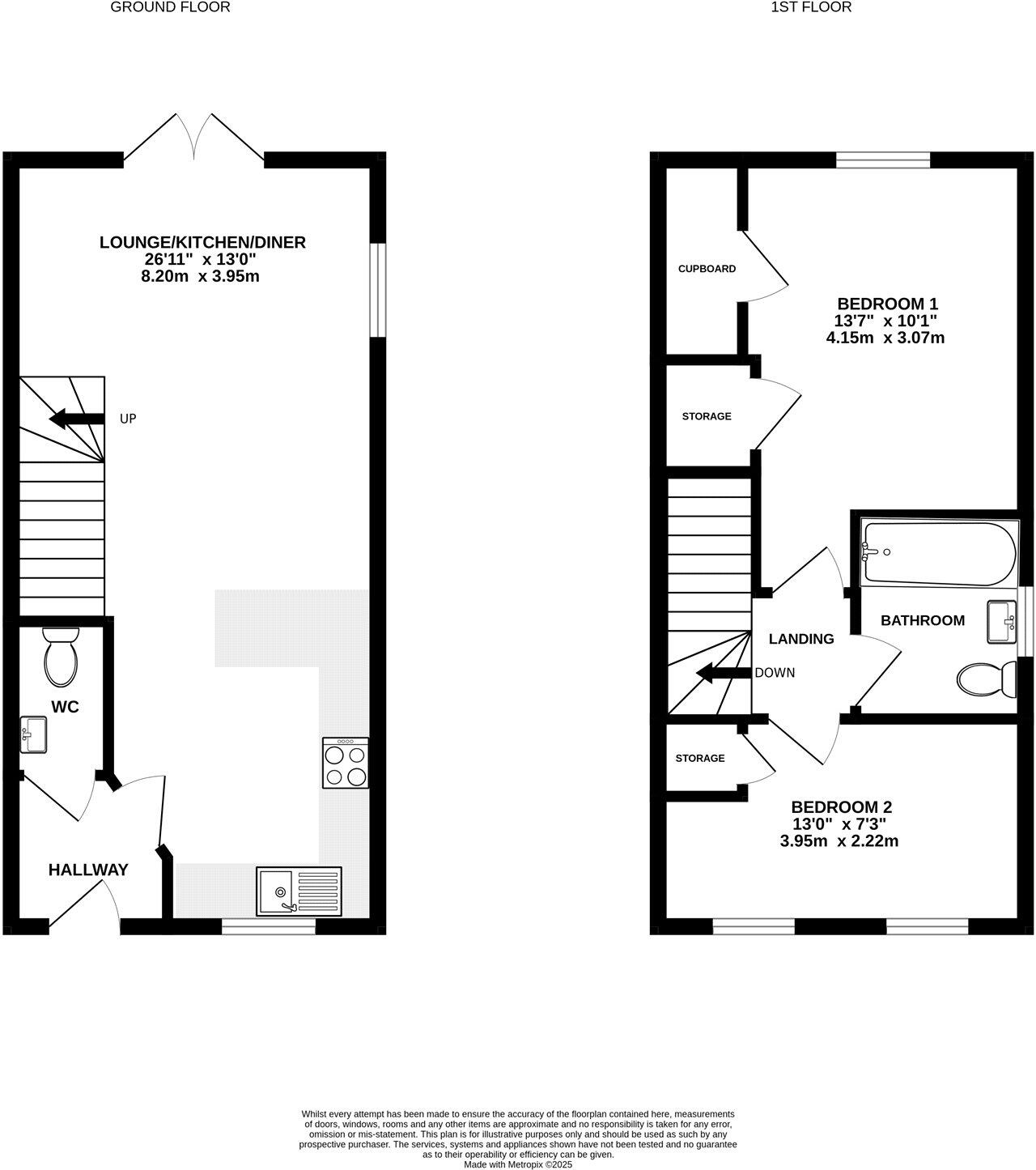
- Compact footprint: about 581 sq ft (small property)
- Service charge approximately £957 per year (below average)
- Ongoing rent payable on unsold share (example £378pcm at 40%)
- Local area recorded as very deprived; investigate long-term prospects
A brand-new, energy-efficient two-bedroom semi-detached home offered through Shared Ownership, ideal for first-time buyers seeking an affordable entry into the Bewdley area. The house offers a compact, open-plan living layout, two double bedrooms, a ground-floor cloakroom, private garden and off-street parking — practical everyday features for a small household.
The property is sold as a leasehold Shared Ownership home with a very long lease (990 years). Example pricing shows a 40% share from £110,000 (rent ~£378pcm) with low minimum deposit requirements, making this an accessible option for buyers who meet eligibility criteria. Service charges are modest (listed as £957 pa) and annual rent and charges may be reviewed by the housing provider.
Buyers should note the setting and local context. The development sits on the edge of Bewdley with local amenities, schools and transport links within reach, but the immediate area is recorded as very deprived — worth researching for long-term plans. The home is small (circa 581 sq ft), so it will suit couples, small families or those downsizing rather than buyers needing large living space.
Overall this is a practical, low-maintenance new build offering an affordable route onto the property ladder. The main trade-offs are the shared-ownership model (ongoing rent and service charges), the compact footprint and the local area’s socioeconomic profile. Prospective purchasers should check eligibility, running costs, and the housing provider’s terms before committing.
3 bedroom semi-detached house for sale in Peckett Road, Bewdley, Worcestershire, DY12 — £192,000 • 3 bed • 2 bath • 572 ft²
2 bedroom semi-detached house for sale in Spittleful Close, Bewdley, Worcestershire, DY12 — £206,250 • 2 bed • 1 bath • 583 ft²
2 bedroom semi-detached house for sale in Wribbenhall Gardens, Bewdley, DY12 — £140,000 • 2 bed • 1 bath
3 bedroom semi-detached house for sale in Wribbenhall Gardens, Bewdley, DY12 — £167,500 • 3 bed • 1 bath
2 bedroom semi-detached house for sale in Silverwoods Way, Kidderminster, DY11 — £90,000 • 2 bed • 1 bath • 504 ft²
2 bedroom semi-detached house for sale in Kidderminster Road,
Bewdley,
DY12 1JD, DY12 — £269,950 • 2 bed • 1 bath • 458 ft²






































