Massive redevelopment site with planning consent close to transport links.
Planning consent for 54 apartments (mostly 1- and 2-bed)
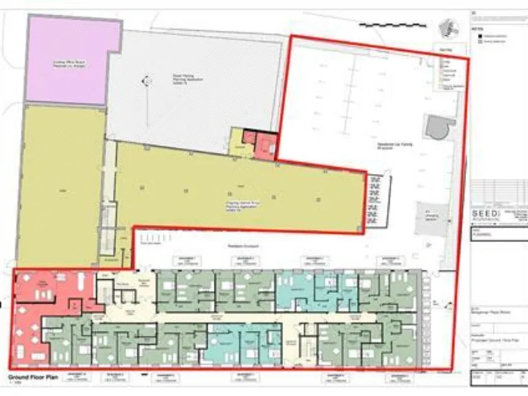
An exceptional brownfield opportunity in Bolton’s Trinity Quarter, this detached mill benefits from full planning consent to create 54 apartments (27 one-bed, 25 two-bed, 1 three-bed) with two additional storeys proposed. The building already has substantial preparatory works completed, including separation from the adjoining structure, new windows and a residents’ courtyard. The site also delivers a large yard, a standalone chimney feature and 20 off-street parking spaces.
The property extends to c.28,211 ft² over ground, first and second floors, with consent for third and fourth floor additions; the owner has begun external and internal works but the building remains in need of comprehensive renovation to complete the residential conversion. Key practical facts: planning consent is granted, tenure is not provided, flood risk is none and the site sits close to Bolton train station and main road links (A666), supporting commuter demand.
This location sits within a major regeneration zone near Globe Works, Trinity Gateway and other large mixed-use projects, offering strong development comparables. However, buyers must factor in refurbishment costs, potential abnormal works typical of mill conversions, and the social context—the wider area is classified as very deprived despite very low local crime. Exact tenure and detailed utility/service information will require further due diligence.
Light industrial facility for sale in Part Mount Pleasant Mills, Midgley Road, Mytholmroyd, HX7 — £275,000 • 1 bed • 1 bath • 10235 ft²
Commercial property for sale in 135-139 Bradshawgate, Bolton, Lancashire, BL2 1BJ, BL2 — £550,000 • 1 bed • 1 bath • 8300 ft²
Land for sale in Heritage Arcade, Bacup Road, Rawtenstall, BB4 7NG, BB4 — £1,200,000 • 1 bed • 1 bath • 28457 ft²
2 bedroom flat for sale in Bentinck Street, BOLTON, Lancashire, BL1 — £100,000 • 2 bed • 1 bath • 595 ft²
1 bedroom apartment for sale in Holden Mill, Blackburn Road, Bolton, BL1 — £100,000 • 1 bed • 1 bath • 620 ft²
Commercial property for sale in Stanley Street, Colne, BB8 — £950,000 • 1 bed • 1 bath














































