Ready-to-move-in option with parking and low running costs.
Newly renovated first-floor maisonette, move-in ready
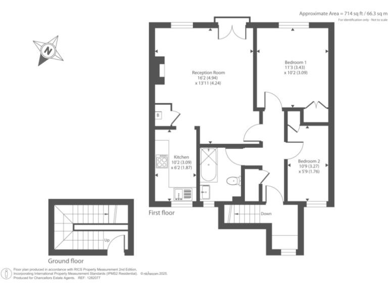
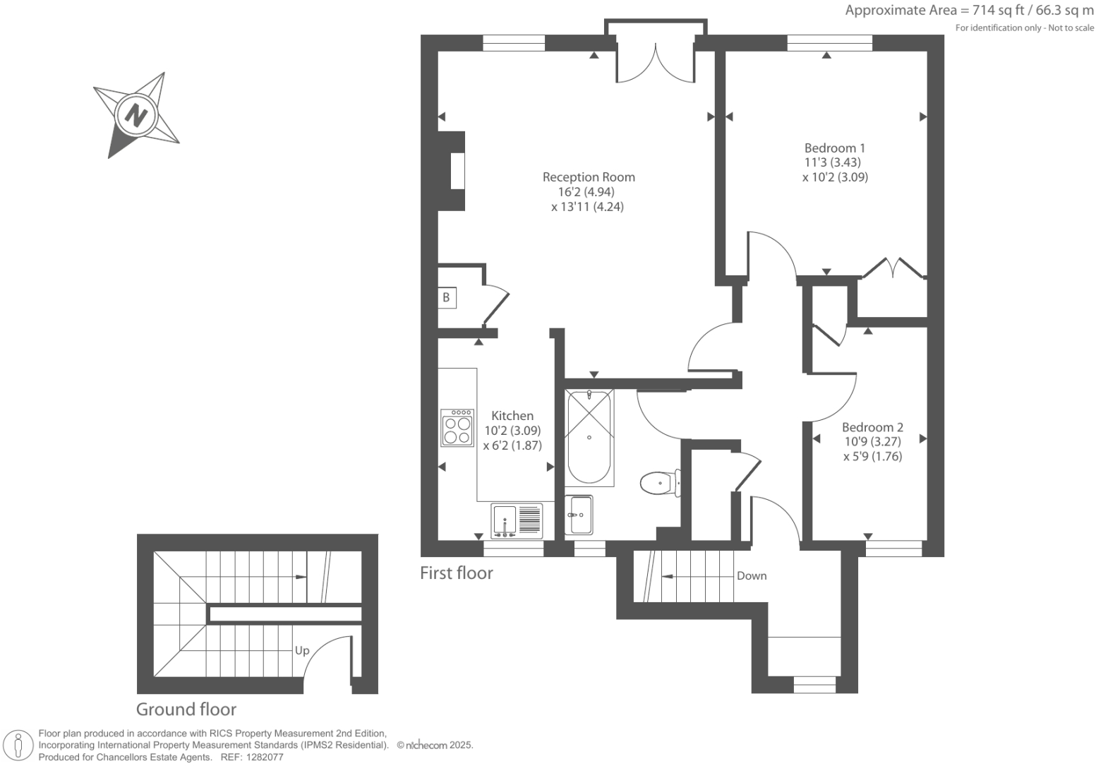
This recently renovated first-floor maisonette in a quiet Thatcham cul-de-sac offers light, move-in ready accommodation across approximately 714 sq ft. The living/dining room opens onto a Juliet balcony, and the kitchen and shower room have been updated. Off-street allocated parking and a small front garden add practical outdoor space.
The property is leasehold with around 100 years remaining and a low service charge (approximately £33 per month / £396 per year). Heating is mains gas via a boiler and radiators; double glazing was fitted post-2002. Local amenities, good primary and secondary schools, and fast broadband make this a convenient choice for first-time buyers or investors seeking a low-maintenance unit.
Be aware this is a first-floor maisonette accessed by stairs and sits within a communal building with a shared washing area. The leasehold tenure and service charge are material considerations for buyers; check lease terms and any communal rules before committing. Overall, the property presents straightforward, modern accommodation with sensible running costs and good local connections.
2 bedroom maisonette for sale in Newbury, Berkshire, RG14 — £220,000 • 2 bed • 2 bath • 581 ft²
2 bedroom retirement property for sale in The Maltings, Thatcham, Berkshire, RG19 — £150,000 • 2 bed • 1 bath • 715 ft²
2 bedroom maisonette for sale in Newbury, Berkshire, RG14 — £200,000 • 2 bed • 1 bath • 645 ft²
2 bedroom apartment for sale in Rosen Court, Thatcham, RG19 — £200,000 • 2 bed • 1 bath • 796 ft²
1 bedroom flat for sale in London Road, Thatcham, RG18 — £179,950 • 1 bed • 1 bath • 529 ft²
2 bedroom flat for sale in Chapel Court, Thatcham, RG18 4QW, RG18 — £190,000 • 2 bed • 1 bath • 491 ft²














































































