**Standout Features:**
- **Location**: Situated in the highly sought-after semi-rural village of Cannock Wood with stunning countryside views.
- **Outdoor Space**: Generous corner plot with both front and rear gardens, private driveway, and detached garage.
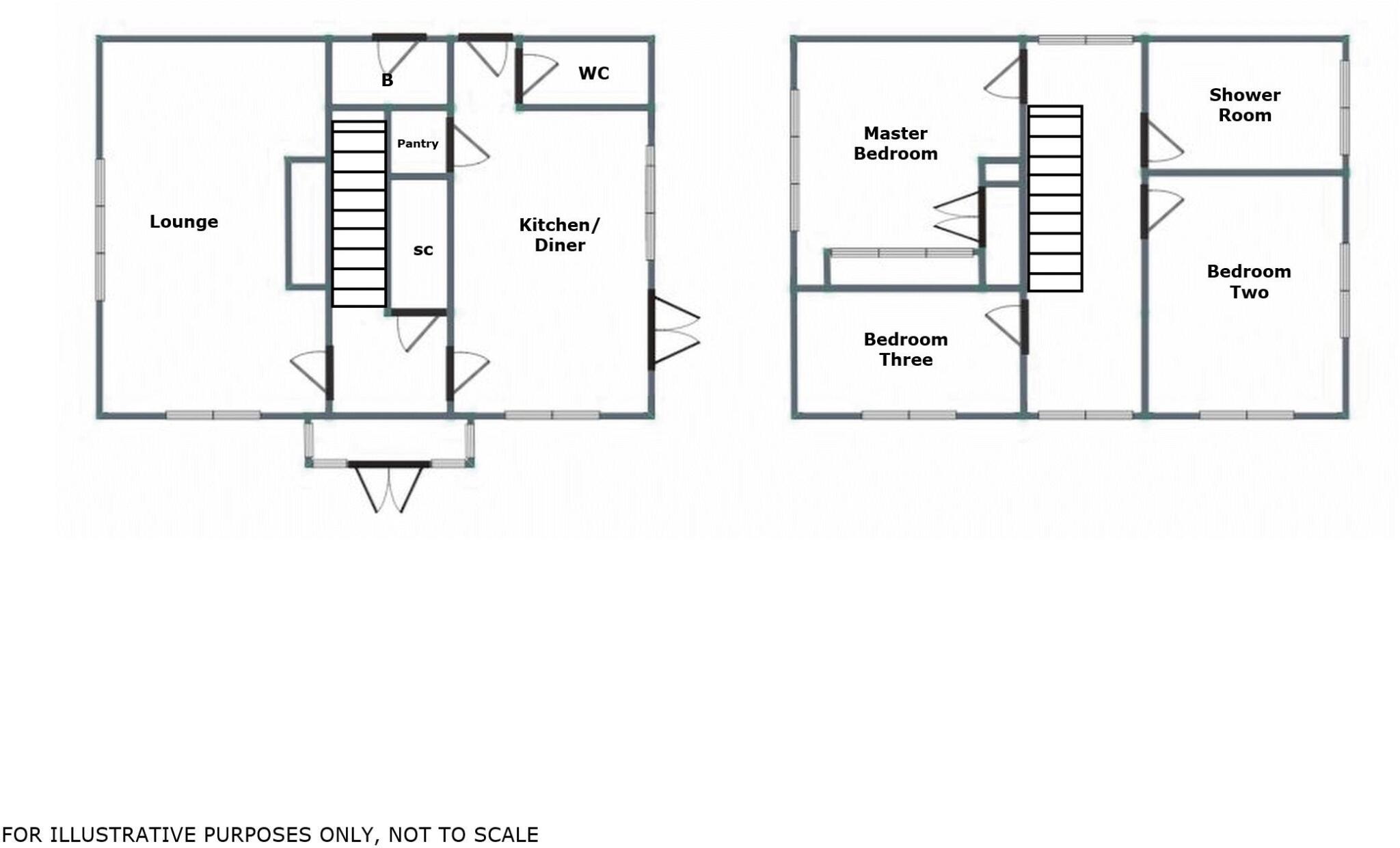
- **Interior**: Spacious lounge, open-plan kitchen-diner, and a modern shower room.
- **Additional Benefits**: UPVC double glazing and a newer gas central heating system.
**Summary:**
Nestled in the picturesque village of Cannock Wood, this three-bedroom detached family home offers an ideal blend of comfort and charm with breathtaking countryside views. The property boasts a generous corner plot, featuring well-maintained front and rear gardens perfect for family activities and outdoor entertaining, alongside ample driveway space and a detached garage. Inside, you'll find a spacious lounge and an inviting open-plan kitchen-diner with modern finishes, complemented by a contemporary shower room.
The home is designed for family living with three well-proportioned bedrooms and an open landing that can double as a cozy study area. A highlight is the private rear garden that serves as an oasis for relaxation and fun. Additionally, the property has energy-efficient UPVC double glazing and a modern Worcester Bosch boiler, ensuring a warm and comfortable environment. With local amenities close by, award-winning schools within the catchment area, and easy access to nearby towns, this home is perfect for families seeking a blend of rural peace and community convenience. Don’t miss out on this unique opportunity—properties in this exclusive area are rare, and this gem won’t last long!
3 bedroom semi-detached house for sale in Gilwell Road, Cannock Wood, WS15 — £220,000 • 3 bed • 1 bath • 1045 ft²
3 bedroom detached house for sale in Cumberledge Hill, Cannock Wood, Rugeley, WS15 — £340,000 • 3 bed • 1 bath • 1400 ft²
4 bedroom detached house for sale in Brunswick Road, Cannock, WS11 — £375,000 • 4 bed • 2 bath • 1554 ft²
2 bedroom terraced house for sale in Park Gate Road, Cannock Wood , WS15 — £290,000 • 2 bed • 1 bath • 1099 ft²
3 bedroom detached bungalow for sale in Ivy Lane, Cannock Wood , WS15 — £825,000 • 3 bed • 3 bath • 1486 ft²
4 bedroom detached house for sale in Kensington Place, Heath Hayes, Cannock, WS12 — £375,000 • 4 bed • 1 bath • 1380 ft²














































































































