Four-bedroom family home on a large corner plot, chain-free and close to Almondsbury Primary.
Corner plot at end of quiet cul-de-sac, ample room to extend (subject to planning)
Chain-free — sold with vacant possession
Within Almondsbury Primary catchment; easy M4/M5 access
Large rear garden with patio; good outdoor space for families
Tandem garage plus driveway parking for multiple vehicles
Built c.1967–75; well cared for but likely needs modernisation
Double glazing fitted before 2002; EPC D — energy improvements may be needed
Cavity walls recorded as uninsulated (assumed); council tax above average
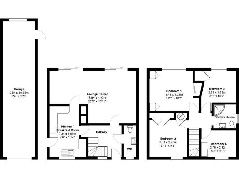
Tucked away at the end of a quiet cul-de-sac, this four-bedroom detached house sits on a sizeable corner plot ideal for family living. The home has been in one family from new and is offered chain-free, making it straightforward to arrange a viewing and move quickly. Practical features include a tandem garage, driveway parking and a lawned garden with a patio off the living room.
Accommodation follows a traditional, practical layout: entrance hall with downstairs WC, living room overlooking the rear garden, kitchen/breakfast room and four upstairs bedrooms served by a family bathroom. The property’s location offers easy access to the M4/M5 corridor and falls within the Almondsbury Primary School catchment, while local amenities and green space are nearby.
There is clear potential to extend on the corner plot, subject to planning permission, which will appeal to buyers seeking scope to enlarge or adapt the house. Energy and fabric details are mixed: double glazing was installed before 2002, mains gas central heating is provided by a boiler and radiators, and the cavity walls are recorded as uninsulated (assumed). The current EPC rating is D, so energy improvements may be needed to reduce running costs.
Practical considerations: the house dates from the late 1960s–1970s, and while well cared for, it is likely to benefit from modernisation in places. Council tax is above average for the area. This property will suit families wanting space, a quiet setting and room to adapt the home over time.
4 bedroom end of terrace house for sale in Camellia Drive, Bristol, BS32 — £415,000 • 4 bed • 1 bath • 1005 ft²
4 bedroom semi-detached house for sale in Oaklands Drive, Almondsbury, BS32 — £450,000 • 4 bed • 2 bath
4 bedroom detached house for sale in Acer Crescent, Bristol, BS32 — £650,000 • 4 bed • 3 bath • 1828 ft²
3 bedroom detached house for sale in Oaktree Crescent, Bradley Stoke, Bristol, Gloucestershire, BS32 — £400,000 • 3 bed • 3 bath • 1144 ft²
4 bedroom detached house for sale in Norton Farm Road, Bristol, BS10 — £400,000 • 4 bed • 2 bath • 1136 ft²
4 bedroom detached house for sale in Wyck Beck Road, Bristol, BS10 — £510,000 • 4 bed • 1 bath • 1496 ft²














































































