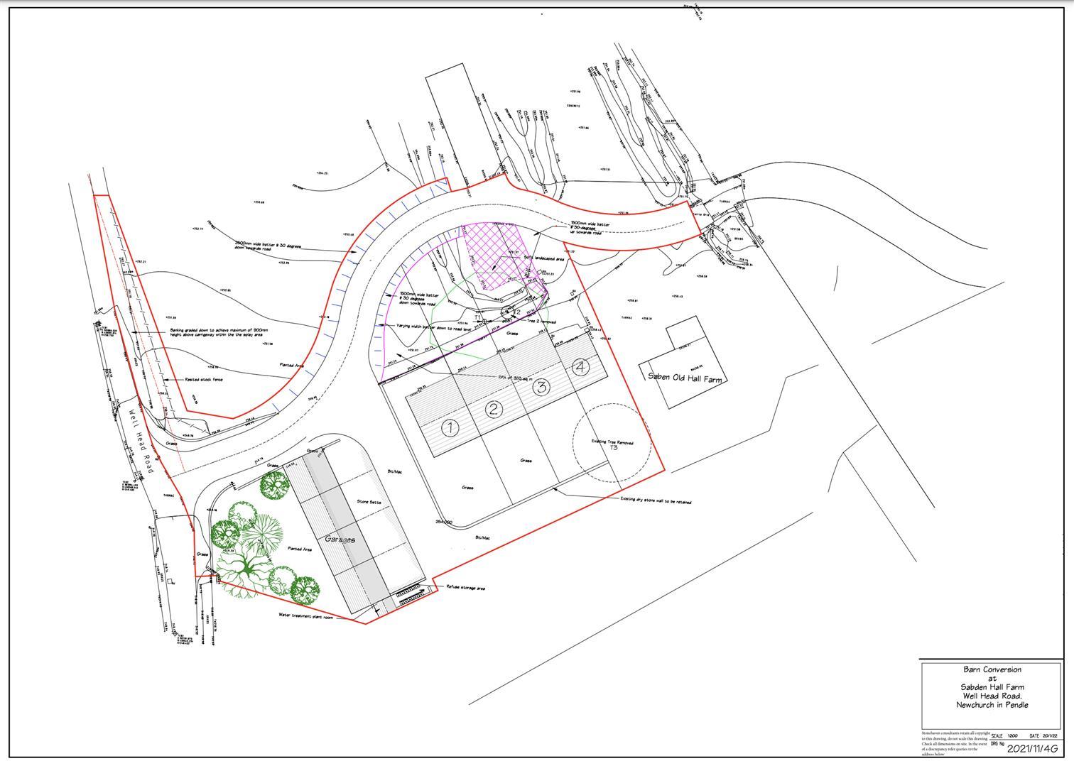
**Standout Features:**
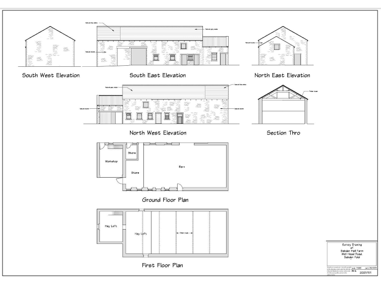
- Original stone barn with planning consent for conversion
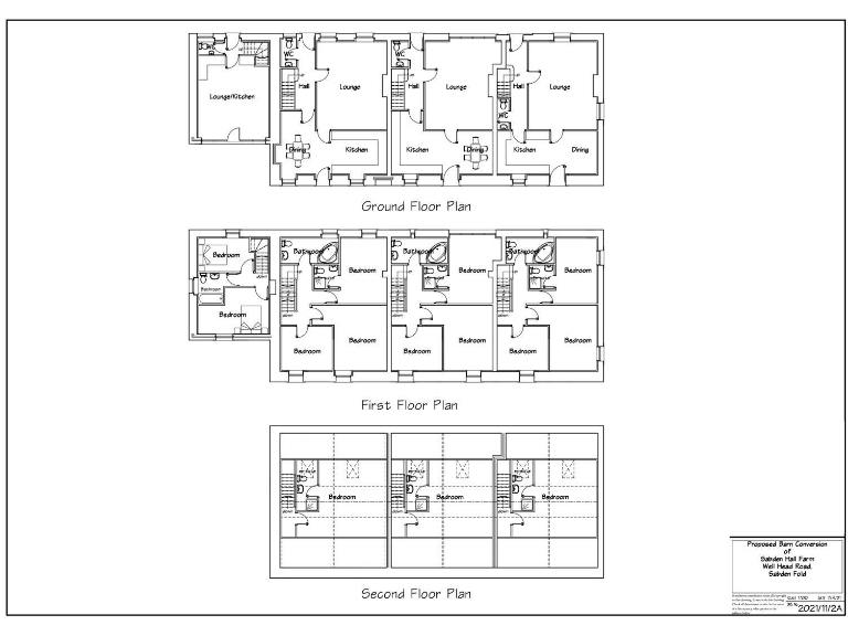
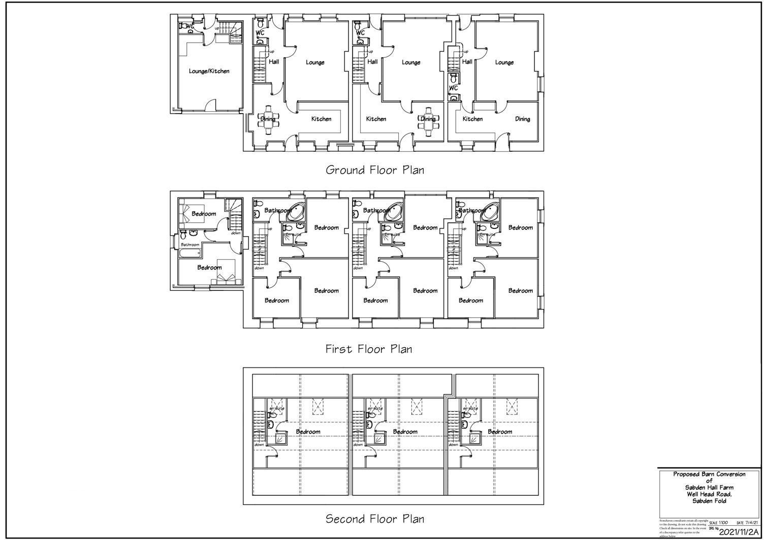
- Permission to create 3 three-storey homes (4 bedrooms each) and 1 two-storey home (2 bedrooms)
- Potentially 6,000 sq ft (557.4 sq m) of living space
- Stunning views in an Area of Outstanding Natural Beauty
- Future-proof accessibility with road re-routing for improved access
- Large garden and garage space included in the plans
**Summary:**
Explore the remarkable opportunity to acquire an original stone barn nestled in the idyllic Sabden Old Hall Farm, Newchurch-in-Pendle. This unique property offers a generous footprint of approximately 6,000 sq. ft., complete with existing planning permission (ref: 22/0060/FUL) to transform it into four distinct dwellings, each boasting beautiful countryside views. The proposed development includes three spacious three-storey homes with four bedrooms and a charming two-storey residence with two bedrooms. Ideal for investors or families seeking a countryside retreat, the barns will benefit from gardens and garages, allowing for both leisure and convenience.
While the barn is currently open plan, it does present an extensive renovation project with outbuildings that require removal. However, the promise of a significant return on investment through the transformation into desirable family homes stands out amid the lovely rural setting. Access to Newchurch and its amenities, including popular schools rated as 'Good,' further adds to the appeal. This property represents a canvas for visionaries—opportunities like this don't last long in such an affluent area, so act quickly to seize your chance at rural living with contemporary comforts!
4 bedroom barn conversion for sale in Sabden Old Hall Farm, Well Head Road, Newchurch-In-Pendle, BB12 — £440,000 • 4 bed • 1 bath • 6000 ft²
Detached house for sale in Mearley, Pendleton, Clitheroe, Lancashire, BB7 — £350,000 • 1 bed • 1 bath • 4167 ft²
Barn for sale in Cockshotts Barn, BB7 — £430,000 • 1 bed • 1 bath • 15328 ft²
4 bedroom barn conversion for sale in 4 bedroom barn conversion for sale – West Pasture Barn, Pasture Lane, Barrowford, BB9 6QY, BB9 — £275,000 • 4 bed • 1 bath • 2400 ft²
Barn conversion for sale in Stid Fold Barn, Barnfield Lane, Wardle, OL12 9PN, OL12 — £300,000 • 1 bed • 1 bath • 563 ft²
Barn conversion for sale in Stoneygate Lane, Ribchester, PR3 — £340,000 • 1 bed • 1 bath






















































