Low-maintenance town-centre apartment with recent upgrades and long lease.
Two double bedrooms with good natural light
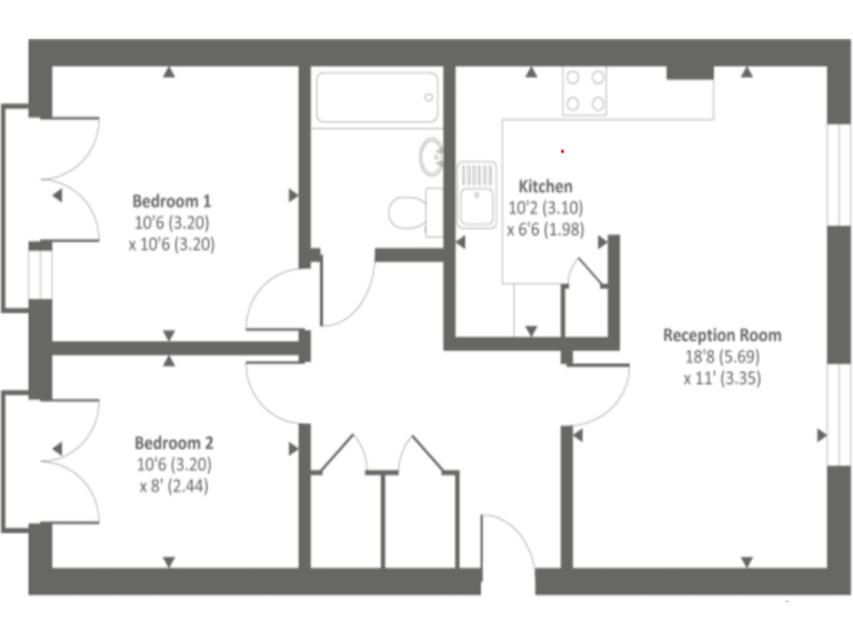
Light, efficient and low-maintenance, this two-bedroom apartment in central Chesham suits buyers seeking an easy-to-run home or a rental investment. High ceilings and recent upgrades — triple-glazed windows and a new boiler — improve comfort and running costs. The layout offers a roomy reception, a modern kitchen and built-in storage across an average-sized 624 sq ft floorplate.
Set within a contemporary residential terrace built in the mid-2000s, the apartment sits close to shops, cafés and green spaces, with fast broadband and excellent mobile signal for working from home. Parking and external maintenance are low-effort, and the town’s amenities and good secondary schools add practical appeal for families and commuters.
This is a leasehold flat with around 138 years remaining and an annual service charge (approx. £1,560). There is one bathroom only and the property is average-sized — factors to weigh for growing families or buyers needing extra space. Buyers are recommended to instruct a survey and check service arrangements before committing.
Overall this is a well-presented, low-maintenance home with recent energy-efficiency improvements and strong local connectivity — a good match for first-time buyers, downsizers or investors seeking steady rental demand in Chesham.
2 bedroom apartment for sale in Hospital Hill, Chesham HP5 — £235,000 • 2 bed • 1 bath • 463 ft²
2 bedroom flat for sale in Severalls Avenue, Chesham, HP5 — £325,000 • 2 bed • 2 bath • 724 ft²
2 bedroom flat for sale in Red Lion Street, Chesham, HP5 — £330,000 • 2 bed • 2 bath • 570 ft²
2 bedroom apartment for sale in Farriers Way, Chesham, HP5 — £300,000 • 2 bed • 2 bath • 758 ft²
2 bedroom apartment for sale in Fullers Hill, Chesham, HP5 — £425,000 • 2 bed • 2 bath • 646 ft²
1 bedroom flat for sale in Lindo Close, Chesham, HP5 — £275,000 • 1 bed • 1 bath • 468 ft²














































