Large detached home with balcony master suite, double garage and studio in peaceful Woodbury.
Southwest-facing landscaped wraparound gardens and large private plot
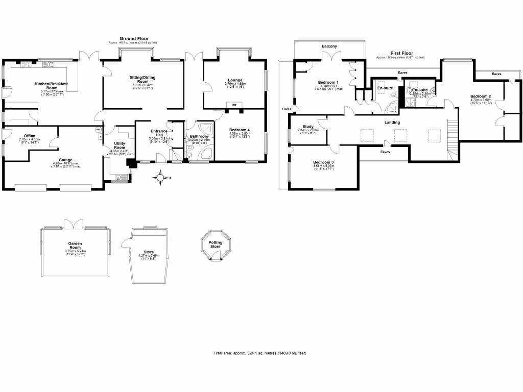
Set within very large, southwest-facing landscaped grounds, Woodbury Lodge is a spacious four/five-bedroom detached home that suits growing families or buyers seeking generous country living close to Exeter. The house combines formal and informal living with two reception rooms, a large kitchen/dining/breakfast area and a separate studio/garden room, all enjoying views over the garden and open fields beyond.
The master suite includes an en suite and a balcony overlooking the countryside, and there is a second en suite plus a ground-floor double bedroom and a first-floor fifth bedroom or study — flexible accommodation across a substantial internal area. Practical features include a walk-in pantry, utility/boot room, double garage with integrated office space and excellent broadband and mobile reception for remote working.
The plot and presentation are standout assets: southwest aspect, terrace and veranda, expansive lawn and a detached studio with decked terrace create strong indoor-outdoor living. The location in Woodbury offers village amenities, good primary schooling, very low crime and easy access to Exeter, local heathland and the nearby coastline.
Buyers should note the size and plot bring ongoing maintenance and running costs; the property’s scale will suit those prepared for garden and home upkeep. Council tax is moderate; tenure is freehold and there is no flood risk recorded.
4 bedroom detached house for sale in Oakhayes Road, Woodbury, Exeter, Devon, EX5 — £795,000 • 4 bed • 3 bath • 2260 ft²
5 bedroom semi-detached house for sale in Woodbury, Devon, EX5 — £1,200,000 • 5 bed • 3 bath • 3341 ft²
4 bedroom house for sale in Village Road, Woodbury Salterton, EX5 — £650,000 • 4 bed • 1 bath • 1705 ft²
5 bedroom detached house for sale in Woodbury, Exeter, Devon, EX5 — £1,000,000 • 5 bed • 3 bath • 2673 ft²
5 bedroom detached house for sale in Higher Marley Road, Exmouth, Devon, EX8 — £1,000,000 • 5 bed • 3 bath • 3759 ft²
4 bedroom detached house for sale in Woodbury, Devon, EX5 — £650,000 • 4 bed • 3 bath • 1597 ft²


















































































































































