Comfortable retirement living with generous garden and versatile living space.
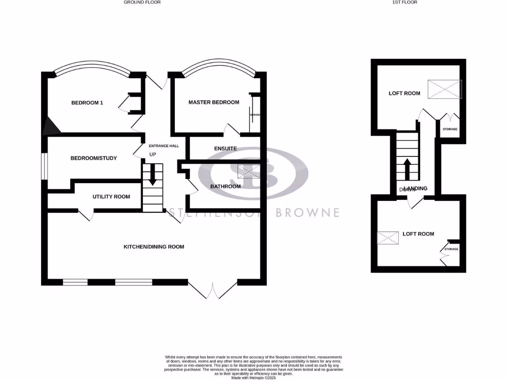
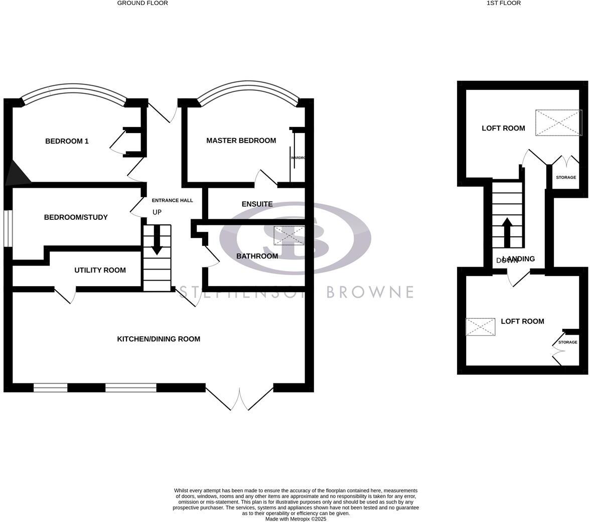
Three bedrooms plus loft conversion providing two additional rooms
A spacious three-bedroom bungalow with a recent loft conversion, designed for comfortable retirement living and flexible use. The bright open-plan kitchen, dining and living area opens via French doors onto a decked terrace, patio and well-kept lawn, with two additional decking areas at the bottom of the garden. The modern kitchen includes integrated appliances and a practical utility room; the family bathroom has underfloor heating for added comfort.
Practical upgrades include a new Baxi combi boiler and replacement windows and doors, plus off-street parking for up to four vehicles and a garage. The loft conversion provides two extra rooms with built-in storage, useful as guest bedrooms, home offices or hobbies. The property sits on a large plot in a quiet, low-crime area close to local amenities and good schools.
Buyers should note this property is being marketed with the option of a Home for Life Lifetime Lease for purchasers aged 60+, which typically reduces the upfront cost versus full market value. Example guide price for the Lifetime Lease is £264,750 (market value £395,000) but actual price depends on age and individual circumstances; customers may also purchase up to a 50% share to safeguard future value.
Important practical considerations: tenure, planning and building regulation consents for the loft conversion should be verified, and the property’s solid brick walls are assumed to have no added insulation. All measurements and details should be confirmed by a solicitor or surveyor before purchase.
3 bedroom bungalow for sale in Birkholme Drive, Stoke-On-Trent, ST3 — £395,000 • 3 bed • 2 bath • 1132 ft²
2 bedroom bungalow for sale in Coyne Grove, Weston Coyney, ST3 — £160,000 • 2 bed • 2 bath
3 bedroom detached bungalow for sale in Light Oaks Avenue, Light Oaks, Stoke-on-Trent, ST2 — £375,000 • 3 bed • 1 bath • 1221 ft²
3 bedroom house for sale in Knype Way, Bradwell Newcastle Under Lyme, Staffordshire, ST5 — £103,750 • 3 bed • 1 bath • 818 ft²
2 bedroom semi-detached bungalow for sale in 8 Dylan Road, Longton, Stoke-on-trent, Staffordshire, ST3 1SR, ST3 — £220,000 • 2 bed • 1 bath • 678 ft²
3 bedroom semi-detached house for sale in Stretton Road, Newcastle, ST5 — £93,750 • 3 bed • 1 bath • 582 ft²










































































































