Three-bedroom family home with extension potential near green spaces and good schools.
Freehold Victorian mid-terrace with original period features
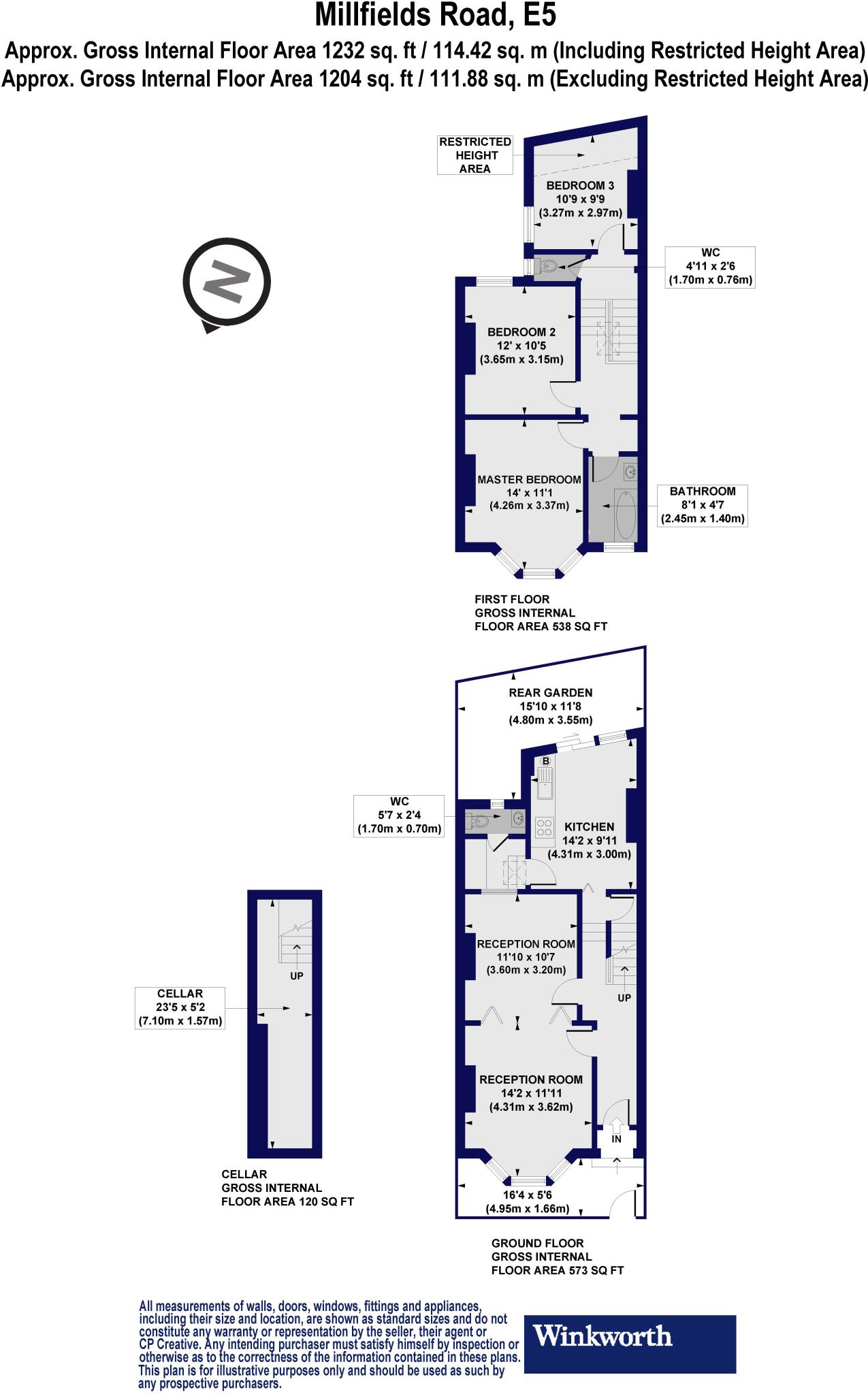
A substantial Victorian mid-terrace, this three-bedroom house on Millfields Road blends original character with contemporary comforts. High ceilings, a double reception with an ornamental fireplace and timber floorboards give the principal living rooms generous proportions and good natural light. The modern fitted kitchen opens to a small paved garden, creating practical indoor–outdoor flow for family life.
The property is offered freehold and provides a useful 1,292 sq ft of accommodation over cellar, ground and first floors. There is scope to increase space — loft or side-return extensions are possible subject to planning permission — making this a sensible purchase for growing families wanting to add value. Broadband and mobile signal are excellent and local green spaces and strong school options add to everyday convenience.
Buyers should note some material points: the terrace was built c.1930–49 with solid brick walls likely without cavity insulation, so further insulation works may be needed. The house has a single family bathroom and a small rear garden, which may feel limited for larger families. Local crime levels and area deprivation are above average; purchasers should consider security and community factors when viewing.
Overall, this is a well-presented family home in a lively Lower Clapton location, offering period charm and practical modern updates with potential to extend and personalise. It will suit buyers seeking good transport links, nearby parks and strong school choices, and who are prepared for modest retrofit or improvement works to maximise long-term value.
3 bedroom terraced house for sale in Millfields Road, Clapton, E5 — £1,000,000 • 3 bed • 2 bath • 1368 ft²
3 bedroom terraced house for sale in Millfields Road, Lower Clapton, London, E5 — £1,100,000 • 3 bed • 1 bath • 1239 ft²
3 bedroom house for sale in Dunlace Road, London, E5 — £1,200,000 • 3 bed • 1 bath • 1133 ft²
3 bedroom house for sale in Clifden Road, Lower Clapton, E5 — £1,175,000 • 3 bed • 2 bath • 1118 ft²
3 bedroom terraced house for sale in Elderfield Road, Lower Clapton, London, E5 — £1,125,000 • 3 bed • 1 bath • 1482 ft²
3 bedroom terraced house for sale in Atherden Road, London, E5 — £1,050,000 • 3 bed • 2 bath • 1314 ft²














































