**Standout Features:**
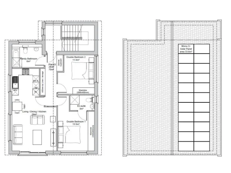
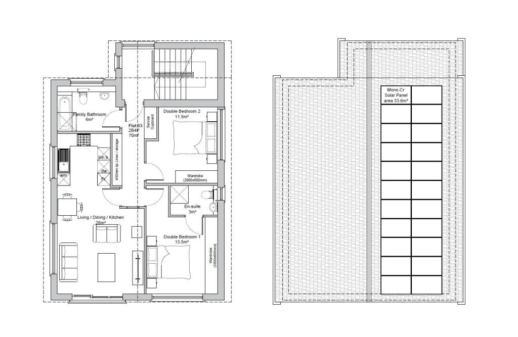
- Outline Planning Permission for 3 Two-Bedroom Flats
- Freehold tenure, making it a secure long-term investment
- Located in a sought-after cul-de-sac in West St Leonards
- Close proximity to the seafront and local amenities
- Garden and garage parking included
- High potential for rental income in an area with a family-oriented demographic
**Notable Concerns:**
- Surrounding area classified as high crime and very deprived
- Planning application journey has involved refusals, although recently approved
Unlock the potential of this prime investment opportunity in West St Leonards with an asking price between £90,000 to £100,000. This development plot comes with granted outline planning permission for the construction of three spacious two-bedroom flats, perfect for modern family living. The attractive, contemporary architectural design promises to enhance the neighborhood, with large windows ensuring plenty of natural light and a welcoming ambiance.
Positioned in a desirable cul-de-sac, you'll find yourself just a short distance from beautiful seafront views and a wide array of local amenities. While the area has faced challenges such as high crime rates and socio-economic deprivation, the demand for rental properties remains strong in urban communities, making this a lucrative investment for savvy buyers. The garden and garage parking further add to its appeal, catering to family needs or rental attractiveness.
Get ready to start construction as early as November 2024, after all pre-build conditions have been discharged. Opportunities like this are rare—act fast to secure your future in flourishing West St Leonards!
Land for sale in Battle Road, St. Leonards-On-Sea, TN37 — £90,000 • 1 bed • 1 bath
Land for sale in St. Johns Road, St. Leonards-On-Sea, TN37 — £350,000 • 1 bed • 1 bath
Plot for sale in Copper Beeches, St. Leonards-on-sea, TN37 — £150,000 • 1 bed • 1 bath • 1366 ft²
Plot for sale in Bexhill Road, St. Leonards-On-Sea, TN38 — £200,000 • 1 bed • 1 bath
Land for sale in Development Project, Gensing Road, TN38 — £440,000 • 5 bed • 3 bath
Commercial development for sale in Development Opportunity - 80 Bed Care Home , 32-36 Chapel Park Road, TN37 — £1,800,000 • 1 bed • 1 bath • 29185 ft²






































