Compact, commuter-friendly flat ideal for first-time buyers seeking low-maintenance living.
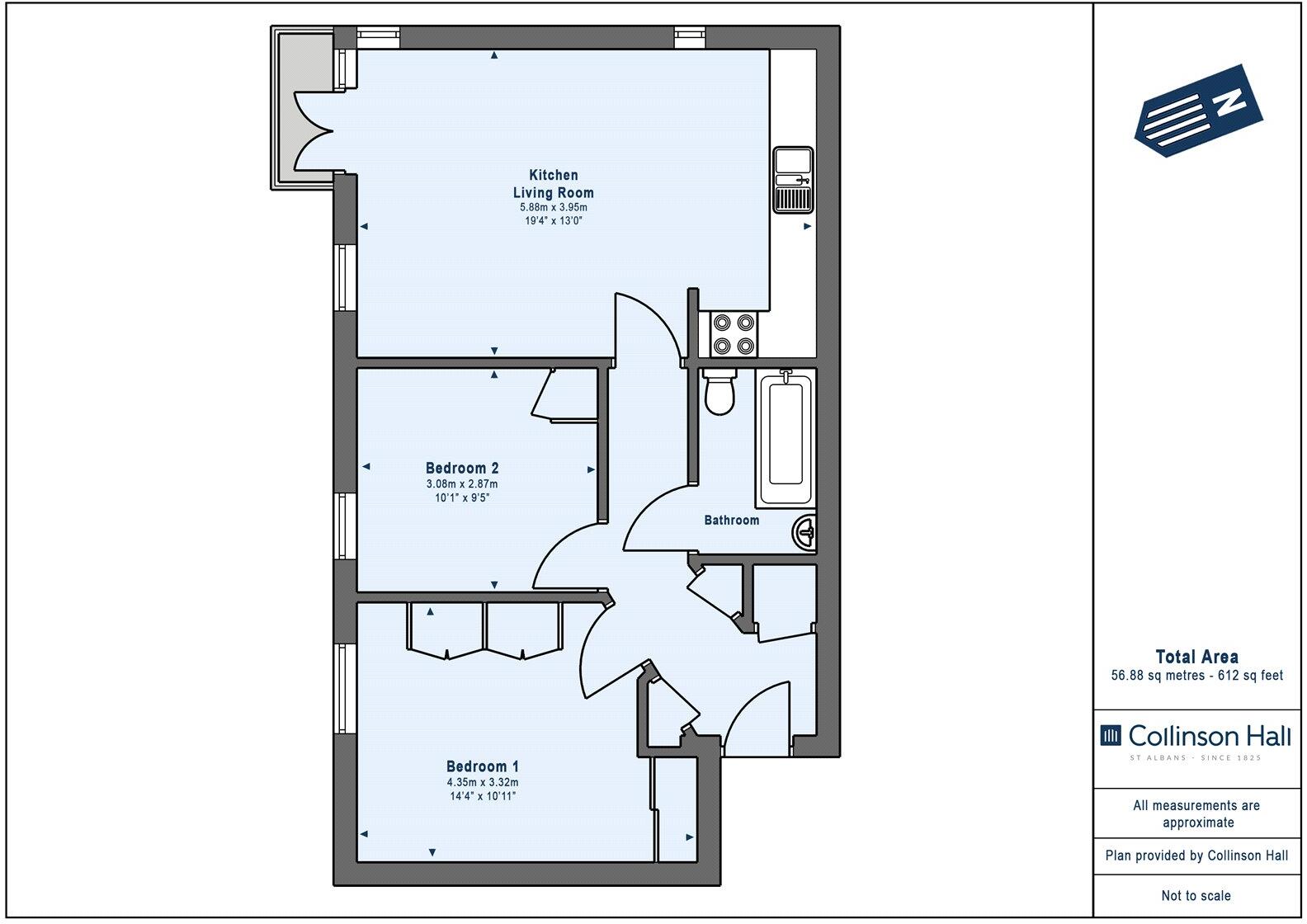
Two double bedrooms in a compact 612 sq ft layout
Second-floor apartment with small balcony and good natural light
Off-street parking and modest communal grounds
EPC rating C (72) — reasonably efficient for electric heating
Main heating: electric room heaters — potentially higher running costs
Leasehold: 106 years remaining (125-year lease from 2007)
Modern build (circa 2007–2011) with double glazing and insulated cavity walls
Communal maintenance charges likely; check service costs before offer
This modern two-bedroom second-floor apartment offers a compact, well-laid-out home in a pleasant Bricket Wood development. At 612 sq ft the layout delivers two double bedrooms, a bright lounge with balcony, a fitted kitchen and a family bathroom — practical space for a first home or commuter base.
Key strengths include off-street parking, attractive communal grounds, an EPC C (72) rating and excellent mobile signal. The block was built in the late 2000s with low-maintenance brickwork and double glazing, and the location provides quick access to the M1 and nearby rail stations for commuting.
Buyers should note this is a leasehold flat with 106 years remaining and communal maintenance charges are likely. Heating is by electric room heaters rather than gas central heating, which may affect running costs. The apartment’s size is modest, so those needing extensive living space or long lease security should consider alternatives.
Overall this is a sensible, well-presented starter property or rental opportunity for someone prioritising transport links, low external maintenance and secure parking. Viewing will show how the internal layout and storage work for your needs.
1 bedroom ground floor flat for sale in St. Lawrence Way, Bricket Wood, St. Albans, AL2 — £285,000 • 1 bed • 1 bath • 453 ft²
2 bedroom flat for sale in Barnes Wallis Way, Bricket Wood, St. Albans, AL2 — £350,000 • 2 bed • 1 bath • 710 ft²
1 bedroom flat for sale in Waddington House, 62 Barnes Wallis Way, Bricket Wood, AL2 — £275,000 • 1 bed • 1 bath • 556 ft²
2 bedroom apartment for sale in Old Watford Road, Bricket Wood, AL2 — £300,000 • 2 bed • 1 bath • 614 ft²
2 bedroom apartment for sale in Barnes Wallis Way, Bricket Wood, St. Albans, Hertfordshire, AL2 — £375,000 • 2 bed • 2 bath • 683 ft²
2 bedroom apartment for sale in 2 Avian Avenue, Frogmore, St. Albans, AL2 — £320,000 • 2 bed • 2 bath • 702 ft²






















































