South-facing garden, garage and planning consent for extension attract families.
Five double bedrooms including principal suite with dressing room and ensuite
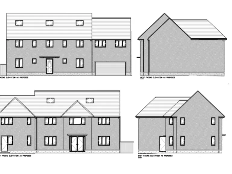
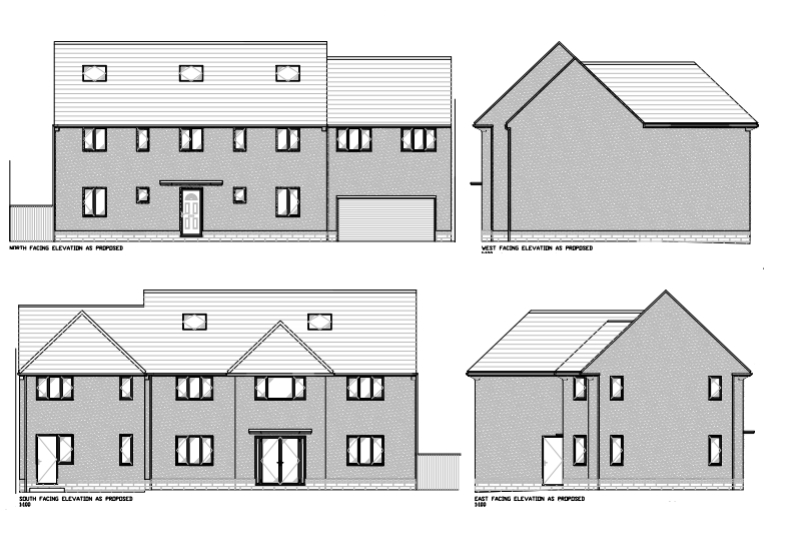
Planning permission granted for double-height extension (documented)
Large south-facing rear garden with raised decking and lawn
Driveway for up to eight vehicles plus single garage on plot
Gas boiler and radiators; double glazing throughout
Cavity walls assumed uninsulated — potential for insulation work
Very slow broadband speeds; may affect home-working needs
Council tax band above average for the area
This substantial five-bedroom detached house sits on a large south-facing plot in Woodside, Barnard Castle. The current owners have extended and improved the layout to deliver flexible family accommodation across multiple floors, including a principal bedroom suite, two further bathrooms and generous living spaces. A planning consent for a double-height extension adds immediate potential to increase the footprint and value.
Outdoor space and parking are strong assets: a wide driveway for up to eight vehicles, a single garage and a lawn with raised decking and bar give scope for family life and entertaining. Gas central heating and double glazing provide day-to-day comfort, and mobile signal is excellent. The property lies in a very low-crime, very affluent area with several well-rated schools nearby.
Buyers should note a few practical drawbacks. Broadband speeds are very slow, which may affect home working. The cavity walls are listed as having no insulation (assumed), so thermal upgrades could be needed to improve energy performance and running costs. Council tax is above average, reflecting the property size and location.
This home will suit a family seeking substantial living space with development potential, or an investor looking for a property with scope to add value. The plot size and planning permission make it attractive for buyers prepared to carry out sympathetic improvements.
3 bedroom semi-detached house for sale in Woodlands Road, Barnard Castle, County Durham, DL12 — £250,000 • 3 bed • 1 bath • 883 ft²
3 bedroom semi-detached bungalow for sale in 1 Woodlands Road, Barnard Castle, DL12 — £325,000 • 3 bed • 2 bath • 1066 ft²
4 bedroom detached house for sale in High Seat, Woodland, Bishop Auckland, DL13 — £315,000 • 4 bed • 2 bath • 1701 ft²
4 bedroom semi-detached house for sale in 8 Startforth Park, Barnard Castle, DL12 — £315,000 • 4 bed • 2 bath • 1870 ft²
3 bedroom detached house for sale in Whitfield, Deerbolt Bank, Barnard Castle, DL12 — £415,000 • 3 bed • 2 bath • 1076 ft²
5 bedroom detached house for sale in School House, The Edge, Woodland, DL13 — £465,000 • 5 bed • 3 bath • 3197 ft²


































































































































