Modern single‑level living on a generous plot, minutes from Sandbach town centre.
Four double bedrooms or three plus two reception rooms (versatile layout)
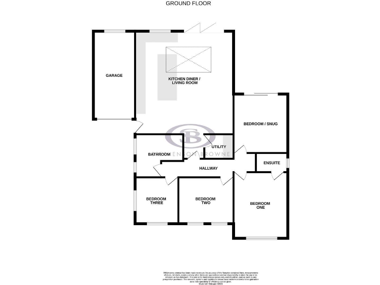
This detached four-bedroom bungalow on Tatton Drive has been comprehensively refurbished and extended to provide modern, level living in a sought-after Sandbach location. The heart of the home is a large open-plan kitchen/diner/living room with skylight and bi-fold doors, complemented by a separate utility, principal bedroom with ensuite and a versatile fourth room that works as a snug or bedroom.
Recent works include full rewire, new heating system, replastering, new flooring, new kitchen, bathrooms and a newly paved/turfed driveway with garage access. The house sits on a generous corner/edge plot with a private, low-maintenance rear garden and multiple off-street parking spaces — practical for families or those wanting one-floor living.
Buyers should note the property is a mid‑1970s build with double glazing of unknown installation date; an independent inspection is recommended to confirm construction and services. The internal footprint is modest at about 915 sq ft, so while well laid out, space is smaller than many detached homes. The area is classified as having some local deprivation despite very low crime and good local schools and green amenities nearby.
4 bedroom detached bungalow for sale in Tatton Drive, Sandbach, CW11 — £385,250 • 4 bed • 2 bath • 915 ft²
3 bedroom detached bungalow for sale in Hassall Road, Sandbach, CW11 — £375,000 • 3 bed • 1 bath • 1055 ft²
2 bedroom detached house for sale in Crewe Road, Sandbach, CW11 — £240,000 • 2 bed • 1 bath • 786 ft²
3 bedroom bungalow for sale in Bradwall Street, Sandbach, CW11 — £400,000 • 3 bed • 2 bath • 1376 ft²
3 bedroom semi-detached house for sale in Princess Drive, Sandbach, CW11 — £270,000 • 3 bed • 1 bath • 868 ft²
2 bedroom detached bungalow for sale in Middlewich Road, Sandbach, CW11 — £438,000 • 2 bed • 1 bath • 1513 ft²






































































































