New three-bedroom detached home with south-facing garden and garage in North Baddesley.
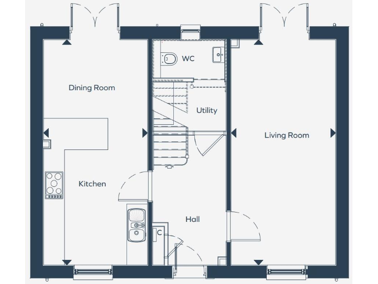
South-facing rear garden with direct access from ground-floor living areas
Garage providing secure parking and extra storage
Master bedroom with dressing area and en-suite bathroom
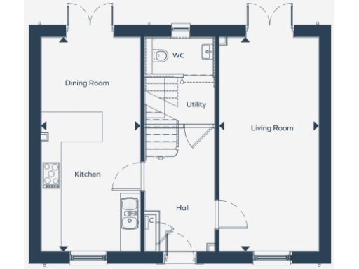
Fully fitted kitchen, separate utility room and downstairs cloakroom
New-build plot in Mountbatten Park — confirm completion and warranty details
Approx 1,192 sq ft; overall size described as average
Freehold tenure and no recorded flood risk
Council tax band/details not provided — buyers should verify
A bright three-bedroom detached new build in Mountbatten Park, North Baddesley, offers practical family living across approximately 1,192 sq ft. The ground floor features generous, light-filled reception spaces with doors onto a south-facing rear garden, plus a fully fitted kitchen, utility room and a downstairs cloakroom for everyday convenience. A garage provides secure parking and storage.
Upstairs the master bedroom includes a dressing area and en-suite, supported by two further bedrooms and a family bathroom. The home’s traditional, Georgian-inspired façade suits the small-town setting while internal layouts are modern and family-focused. The property is freehold and carries no recorded flood risk.
Important points for buyers: this is a new-build plot within a wider development, so confirm completion, snagging, and warranty details before exchange. The overall size is average for a three-bedroom detached home and some buyers may want to review room dimensions against their furniture and storage needs. Council tax details are not supplied and should be checked.
3 bedroom detached house for sale in Plot 65 Wilfrid Street, North Baddesley, Southampton, Hampshire, SO52 — £495,000 • 3 bed • 2 bath
3 bedroom semi-detached house for sale in Mountbatten Park, North Baddesley, Southampton, Hampshire, SO52 — £500,000 • 3 bed • 2 bath • 1100 ft²
3 bedroom semi-detached house for sale in Mountbatten Park, North Baddesley, Southampton, Hampshire, SO52 — £500,000 • 3 bed • 2 bath • 1100 ft²
3 bedroom semi-detached house for sale in Mountbatten Park, Hoe Lane, North Baddesley, Hampshire, SO52 — £490,000 • 3 bed • 2 bath • 1087 ft²
3 bedroom semi-detached house for sale in Wilfrid Street, North Baddesley, Southampton, Hampshire, SO52 — £485,000 • 3 bed • 2 bath
4 bedroom semi-detached house for sale in Mountbatten Park, North Baddesley, Southampton, Hampshire, SO52 — £645,000 • 4 bed • 2 bath • 1400 ft²










































