Characterful central home with parking and quick links to Exeter.
Two double bedrooms with period features and high ceilings
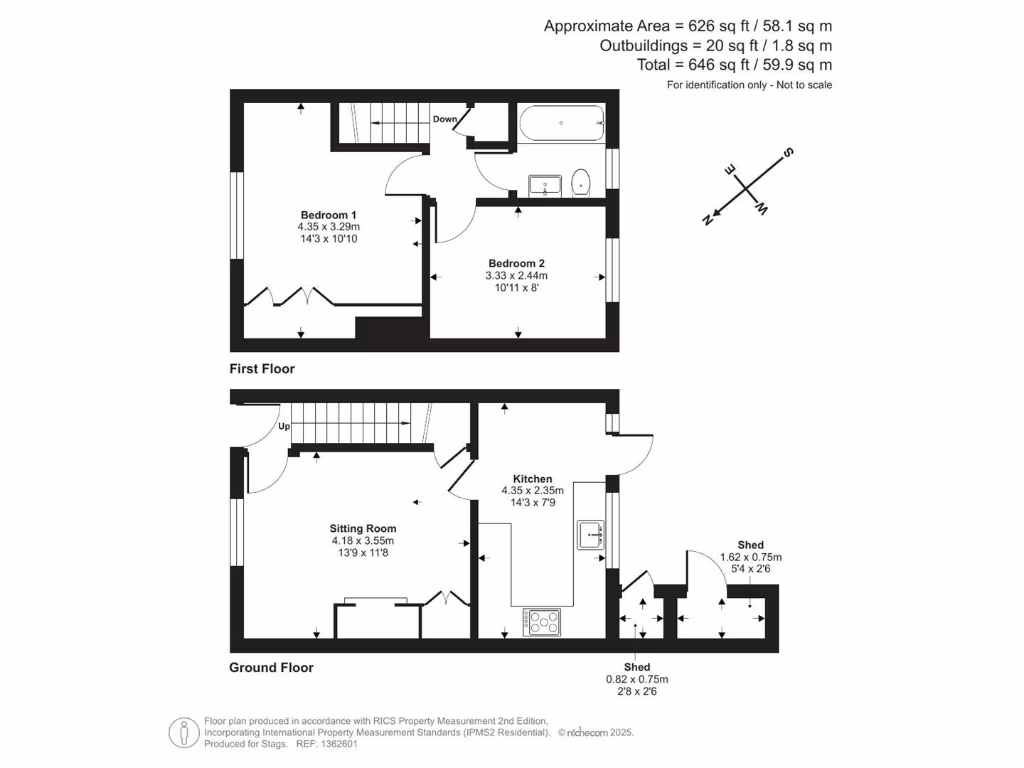
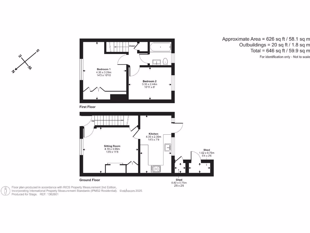
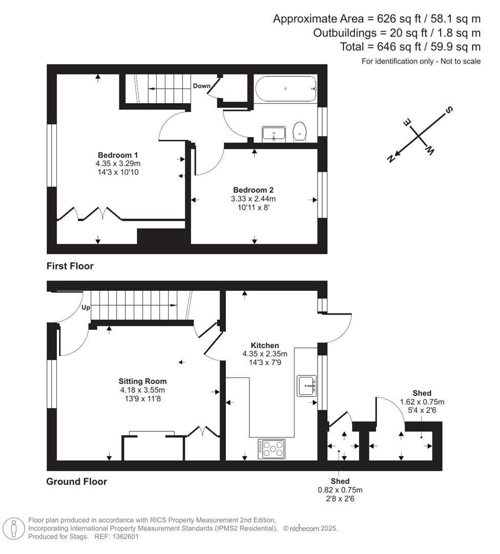
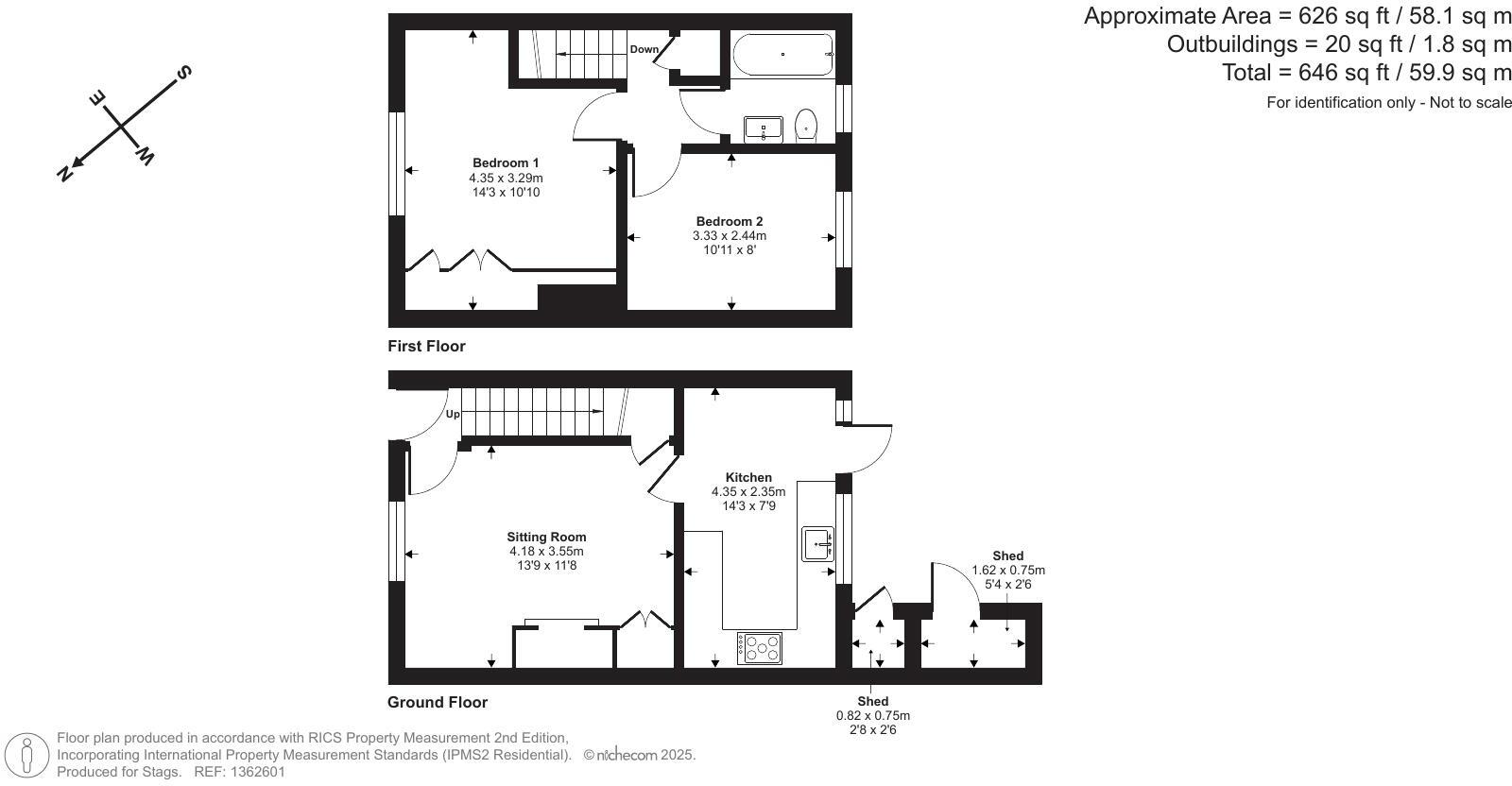
A well-presented two-bedroom Victorian terrace conveniently placed just off Honiton High Street. The sitting room retains period character including a fireplace, high ceilings and sash windows, while the cottage-style kitchen offers a homely cooking and dining area. Gas central heating, double glazing and mains services are in place, with fast broadband and excellent mobile signal.
Externally the property includes a small enclosed rear garden with two storage sheds and an allocated off-street parking space — a rare convenience for this type of terrace. The house is freehold with very low council tax (Band A), and local rail and road links provide straightforward journeys to Exeter and London.
Important practical considerations: the plot and internal footprint are compact and best suited to first-time buyers, a small family or buy-to-let investors. The area scores as deprived with higher local crime rates; prospective buyers should factor this into location suitability. There is a historical right of access to the rear serving neighbouring properties.
Construction dates to the early 20th century with granite/whinstone walls that are likely uninsulated. Internal modernisation and improved wall insulation would increase comfort and long-term value. Overall this is an attractive, characterful cottage with practical transport links, modest outdoor space and clear potential for sensible improvements.
2 bedroom terraced house for sale in Dowell Street, Honiton, Devon, EX14 — £150,000 • 2 bed • 1 bath • 577 ft²
2 bedroom semi-detached house for sale in Allhallows Court, Honiton, EX14 — £215,000 • 2 bed • 1 bath • 834 ft²
3 bedroom semi-detached house for sale in Silver Street, Honiton, EX14 — £225,000 • 3 bed • 1 bath • 882 ft²
3 bedroom end of terrace house for sale in High Street, Honiton, EX14 — £280,000 • 3 bed • 1 bath • 1163 ft²
2 bedroom terraced house for sale in New Street, Honiton, EX14 — £175,000 • 2 bed • 1 bath • 593 ft²
2 bedroom terraced house for sale in Kings Arms Cottages, Honiton, EX14 — £147,000 • 2 bed • 1 bath • 617 ft²






























































































