Rare West End residence with huge conversion or family potential minutes from the Botanic Gardens.
A‑listed Victorian sandstone townhouse, circa 1855
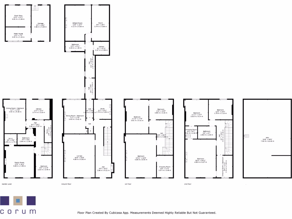
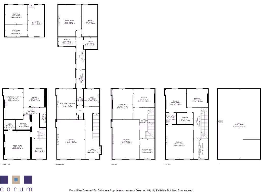
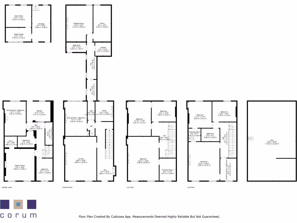
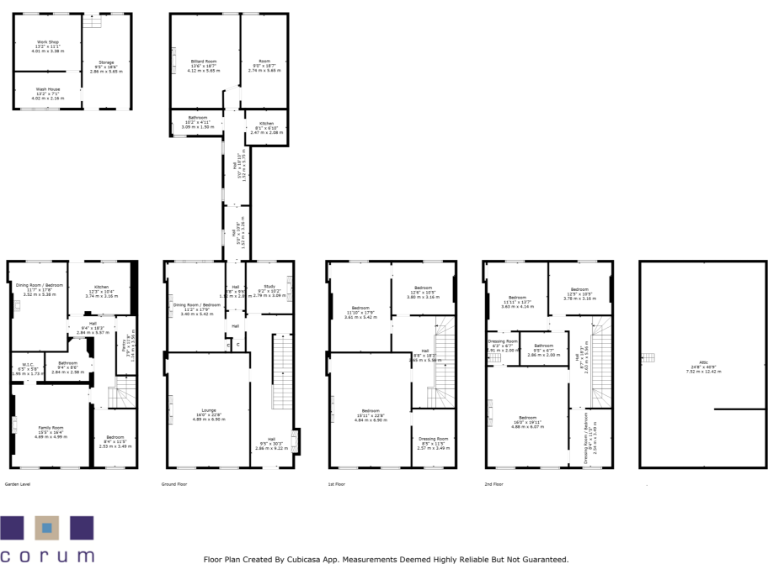
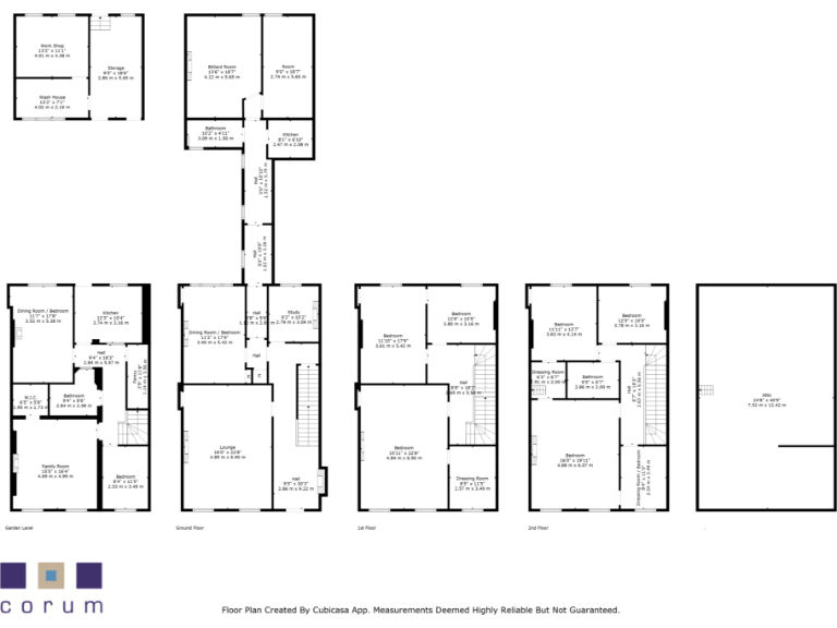
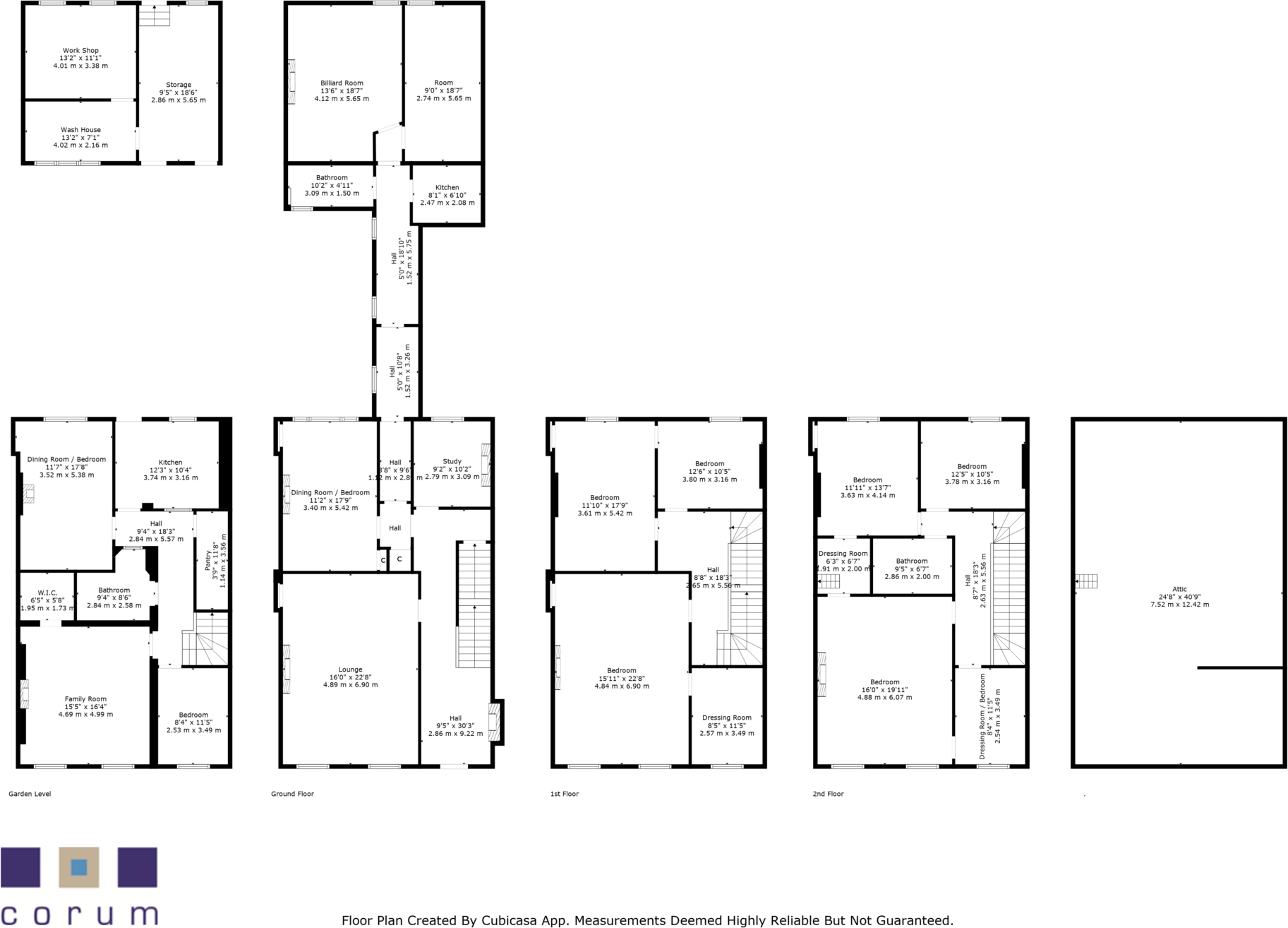
A substantial A‑listed Victorian townhouse on Ruskin Terrace, built circa 1855, offering over 4,800 sq ft of flexible living space across multiple levels. The property retains abundant period detail — ornate cornicing, original mosaic flooring, sweeping staircases, tall sash windows and a cupola — and sits in a prime West End pocket beside the Botanic Gardens, close to Byres Road amenities and university links.
This is a rare opportunity for a large family residence or a sympathetic conversion into high‑spec apartments (subject to listed‑building consent). The house includes eight bedrooms, three bathrooms, a rear garden, outhouse and generous reception rooms with very high ceilings that emphasise the scale and light throughout.
Important practical points: the property needs comprehensive modernisation and upgrading, and the A‑listing will limit alterations and may make works more complex and costly. Council tax is described as quite expensive and the surrounding area records higher levels of deprivation, which buyers should factor into future use or rental assumptions.
Connectivity and utilities are strong: excellent mobile signal and fast broadband, with convenient bus and underground links, nearby shopping and eateries. For buyers seeking a character‑rich project in a prestigious West End location, this townhouse presents significant space and style, balanced by renovation cost and listed‑status constraints.
6 bedroom town house for sale in 6 Princes Gardens, Dowanhill, G12 9HP, G12 — £1,150,000 • 6 bed • 4 bath • 3531 ft²
6 bedroom terraced house for sale in Princes Gardens, Glasgow, G12 — £1,400,000 • 6 bed • 2 bath • 4693 ft²
5 bedroom terraced house for sale in Westbourne Gardens, Glasgow, G12 — £1,495,000 • 5 bed • 4 bath • 4444 ft²
3 bedroom flat for sale in Flat 8, Caledonian Mansions, 7 Otago Street, Kelvinbridge, Glasgow, G12 8JJ, G12 — £285,000 • 3 bed • 1 bath • 1119 ft²
4 bedroom terraced house for sale in Hamilton Drive, Botanics, Glasgow, G12 — £950,000 • 4 bed • 3 bath • 2518 ft²
3 bedroom terraced house for sale in Hamilton Drive, Botanics, Glasgow, G12 — £815,000 • 3 bed • 2 bath • 2009 ft²


























































































































































































































































