Generous plot and versatile living ideal for growing families.
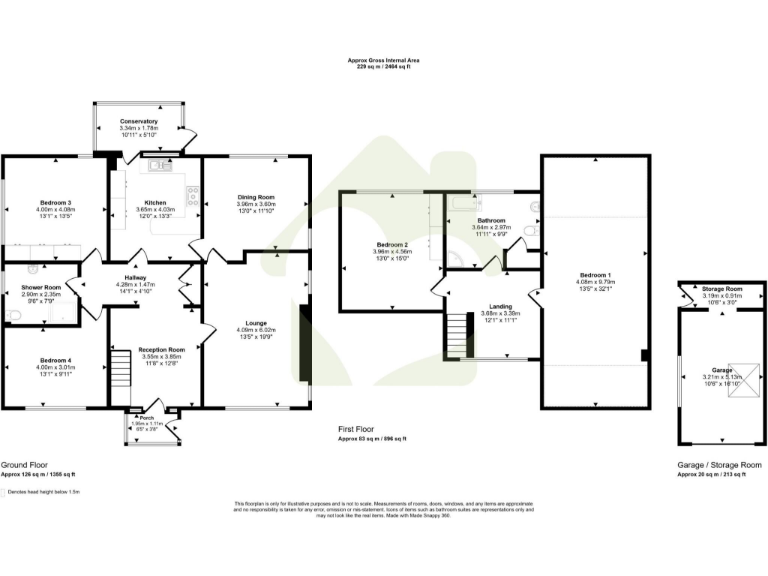
Extremely large 229 sqm (2,465 sq ft) family-sized home
Set on a very large plot in semi-rural Barton, this substantial three-bedroom detached bungalow offers generous, flexible living for growing families. The ground floor provides two double bedrooms, a living room, dining room and a modern-fitted kitchen that opens to a conservatory overlooking extensive rear gardens. Upstairs a large bedroom, four-piece bathroom and a big store room present scope to create an additional bedroom or home office.
Practical strengths include a detached garage with extra storage, extensive off-road parking, double glazing and a well-equipped kitchen with quartz worktops and integrated appliances. The plot invites gardening, children's play space or a measured extension subject to planning — the property’s overall size and layout give clear renovation and extension potential.
Buyers should note the house dates from the 1930s–1940s and, while well-presented in many areas, would benefit from modern energy upgrades (cavity walls currently without insulation assumed). Council Tax is Band F, and broadband speeds are average for the area. These are factual considerations for running costs and future improvement plans.
Early viewing is advised for families seeking substantial accommodation, room to personalise and generous outdoor space in a peaceful village location with good schools and commuter links nearby.
5 bedroom detached house for sale in Woodlands Crescent, Preston, PR3 5, PR3 — £475,000 • 5 bed • 2 bath • 2600 ft²
4 bedroom detached house for sale in Holmeswood Crescent, Preston, PR3 5, PR3 — £350,000 • 4 bed • 2 bath • 1626 ft²
5 bedroom detached house for sale in Garstang Road, Barton, Preston, Lancashire, PR3 — £615,000 • 5 bed • 4 bath • 2190 ft²
4 bedroom detached house for sale in The Sidings, Barton, Preston, Lancashire, PR3 — £475,000 • 4 bed • 3 bath • 1883 ft²
4 bedroom detached house for sale in Jepps Avenue, Barton, Preston, PR3 — £370,000 • 4 bed • 3 bath
4 bedroom barn conversion for sale in Garstang Road, Barton, Preston, Lancashire, PR3 — £850,000 • 4 bed • 3 bath • 2490 ft²






















































































































































