**Standout Features:**
- Bright, well-presented first floor apartment
- 2 Bedrooms plus a separate 1 Bedroom Annexe
- Stunning sea views and a spacious open-plan living area
- Located in a popular seaside village with excellent amenities
- Off-street parking and private enclosed patio space
- Share of freehold tenure offers flexibility
**Potential Concerns:**
- EPC rating of F indicates potential energy efficiency improvements
- Slow broadband speeds may not suit all lifestyles
- Limited insulation may require attention
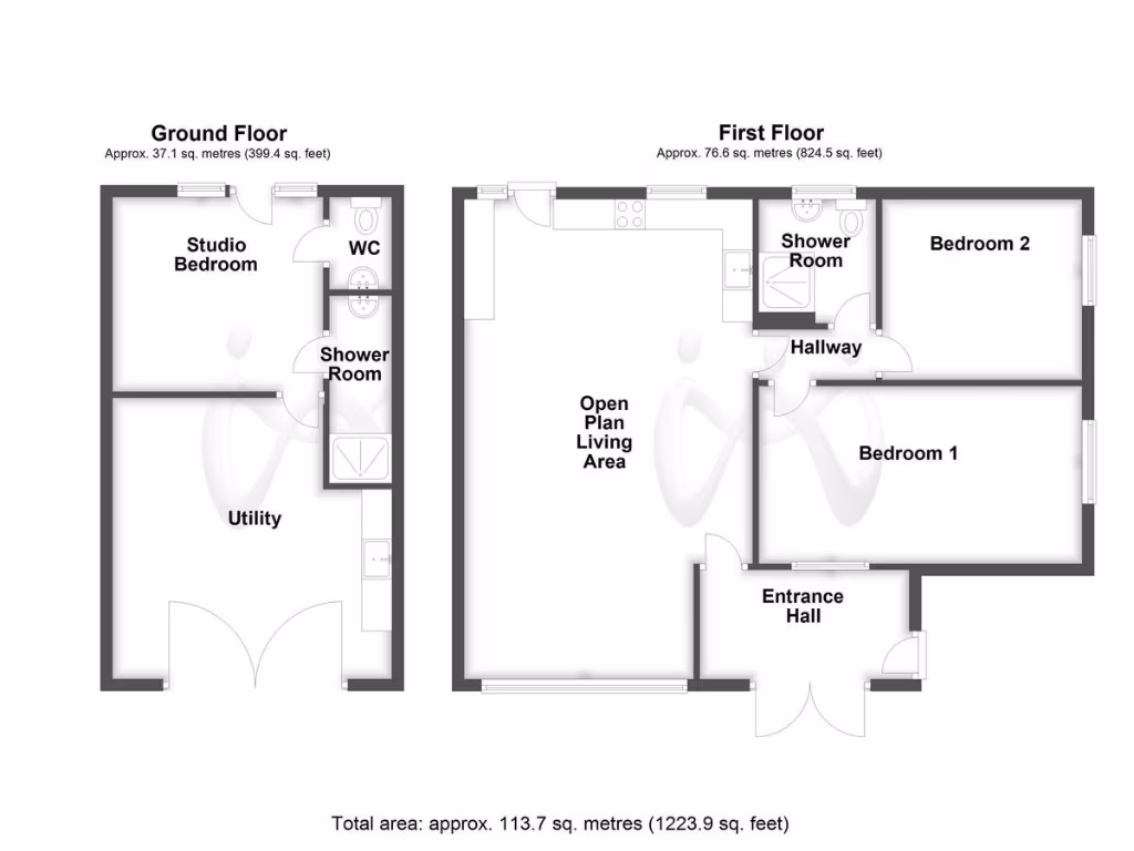
This charming first floor apartment is a fantastic opportunity for first-time buyers, investors, or small families looking for a tranquil retreat by the seaside. Enjoy open-plan living that maximizes natural light and provides spectacular sea views, perfect for entertaining or simply relaxing. The well-designed layout includes two spacious double bedrooms alongside a versatile studio annexe on the ground floor, providing ideal accommodation for guests or potential rental income.
Outside, the property features off-street parking and a private patio, ideal for enjoying the coastal ambiance. Located in a welcoming seaside village with excellent community amenities—including schools and leisure options—this home combines comfort and functionality. With a council tax band C and low crime rates, peace of mind and security are guaranteed.
Don’t miss out on this unique property with significant potential for personalization and enhancement. Schedule a viewing today and imagine the possibilities that await in this coastal gem.
2 bedroom apartment for sale in Plas Darien, Trearddur Bay, LL65 — £199,950 • 2 bed • 2 bath • 905 ft²
3 bedroom apartment for sale in Lon Y Don, Trearddur Bay, Holyhead, Isle of Anglesey, LL65 — £275,000 • 3 bed • 1 bath • 937 ft²
Studio apartment for sale in Lon Isallt, Trearddur Bay, LL65 — £160,000 • 1 bed • 1 bath • 539 ft²
2 bedroom apartment for sale in Cliff Apartments, Trearddur Bay, LL65 — £237,500 • 2 bed • 2 bath • 1012 ft²
2 bedroom apartment for sale in Lon Y Don, Trearddur Bay, LL65 — £235,000 • 2 bed • 1 bath • 523 ft²
3 bedroom apartment for sale in Ravenspoint Road, Trearddur Bay, LL65 — £249,950 • 3 bed • 1 bath






















































































































































































