Renovated home with approved extension potential for growing families.
Three-bedroom detached house with modern kitchen/diner
This well-presented three-bedroom detached house on Woodleigh Road offers comfortable family living in a popular Newton Abbot neighbourhood. The home has been newly renovated, including a full rewire and new gas heating, and features a contemporary open-plan kitchen/diner that opens onto a landscaped rear garden — a practical layout for everyday family life and entertaining.
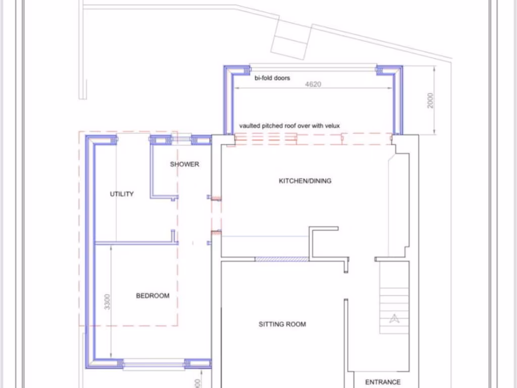
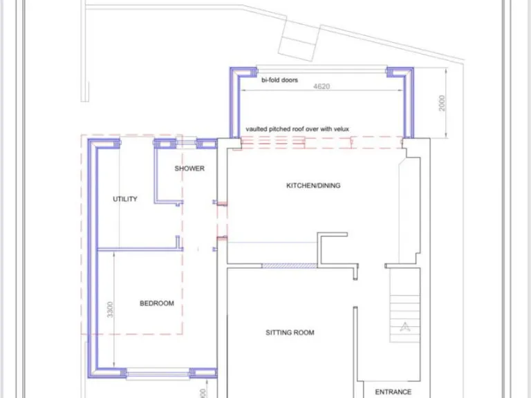
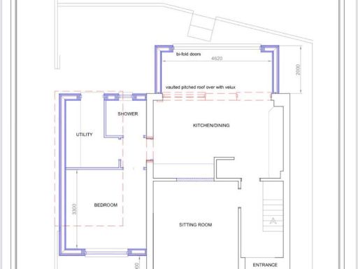
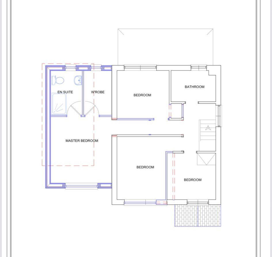
A major value driver is the approved two-storey extension, which would add a ground-floor bedroom/playroom, utility and shower room, plus a first-floor bedroom with ensuite and walk-in wardrobe. That permission creates clear scope to enlarge living space and add another bathroom — useful for growing families or to increase resale value.
Practical features include driveway parking, a single garage, fast broadband and excellent mobile signal. The property sits in an affluent, low-crime area and is within walking distance of several well-rated primary and secondary schools, making it especially convenient for families.
Notable considerations: there is only one bathroom currently, which may be limiting for larger households until the approved extension is completed. The walls are cavity as built with no assumed retrofitted insulation, so further energy upgrades could be needed to improve thermal performance. Overall the home is ready to move into, with sensible future-investment potential from the approved plans.
3 bedroom detached house for sale in Higher Budleigh Meadow, Newton Abbot, TQ12 — £310,000 • 3 bed • 1 bath • 828 ft²
3 bedroom detached house for sale in Higher Budleigh Meadow, Newton Abbot, Devon, TQ12 — £310,000 • 3 bed • 1 bath • 1359 ft²
3 bedroom detached house for sale in Sandford View, Newton Abbot, Devon, TQ12 — £325,000 • 3 bed • 2 bath • 1183 ft²
3 bedroom detached house for sale in Larkspur Drive, Newton Abbot, TQ12 1SD, TQ12 — £380,000 • 3 bed • 2 bath • 1036 ft²
4 bedroom detached house for sale in Exeter Road, Newton Abbot, TQ12 — £535,000 • 4 bed • 4 bath • 1833 ft²
3 bedroom end of terrace house for sale in Drake Road, Newton Abbot, Devon, TQ12 — £220,000 • 3 bed • 1 bath • 965 ft²






































































































