Comfortable single-level living near village amenities and transport links.
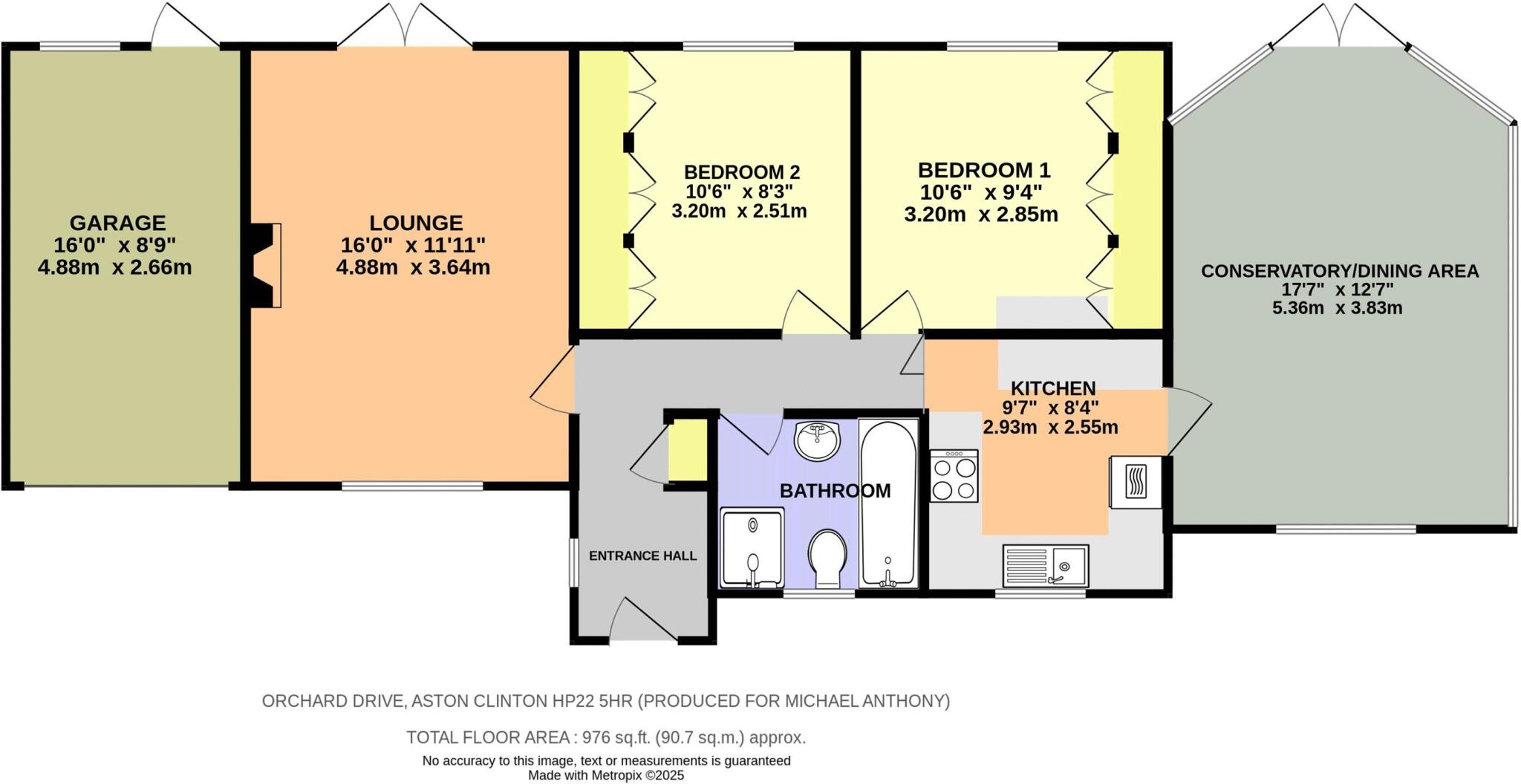
Detached two-bedroom single-storey bungalow on a generous corner plot
Set on a generous corner plot in the heart of Aston Clinton, this detached two-bedroom bungalow offers convenient single-level living with good kerb appeal. The wide block-paved driveway provides parking for up to three cars and leads to an attached single garage. A conservatory and private rear garden extend the living space and invite simple, low-maintenance outdoor enjoyment.
Internally the layout is compact and practical: lounge with a feature fireplace, kitchen, conservatory, two bedrooms and a single bathroom. The property dates from the late 20th century (circa 1967–1975) and benefits from double glazing and mains gas central heating, though the exact ages of windows, boiler and electrical fittings are not stated and may require updating in time.
Positioned on a no-through road close to shops, green spaces, cafes and pubs, the bungalow suits downsizers, retirees or buyers seeking comfortable single-storey accommodation with easy access to local amenities and commuter routes. The home is freehold and sits in a generally affluent, low-flood-risk area with good local schools and strong transport links to mainline stations.
Notable drawbacks to consider: accommodation is two bedrooms with a single bathroom, limiting flexibility for larger households; some cosmetic modernisation or system upgrades may be needed given the property's age. Overall, the bungalow represents straightforward, low-maintenance living with generous outside space and practical parking for everyday convenience.
2 bedroom detached bungalow for sale in Wenwell Close, Aston Clinton, Aylesbury, Buckinghamshire, HP22 — £525,000 • 2 bed • 1 bath • 1088 ft²
3 bedroom detached bungalow for sale in Twitchell Lane, Aston Clinton, HP22 — £762,500 • 3 bed • 2 bath • 1249 ft²
5 bedroom detached bungalow for sale in New Road, Aston Clinton, HP22 — £1,295,000 • 5 bed • 5 bath • 4500 ft²
4 bedroom detached house for sale in Cosy Corner, Aston Clinton, Aylesbury, Buckinghamshire, HP22 — £515,000 • 4 bed • 1 bath • 1069 ft²
2 bedroom detached bungalow for sale in Irvine Drive, Stoke Mandeville, HP22 — £485,000 • 2 bed • 2 bath • 960 ft²
3 bedroom detached bungalow for sale in Manor Farm Close, Weston, HP22 — £710,000 • 3 bed • 2 bath • 1525 ft²


































































