**Standout Features:**
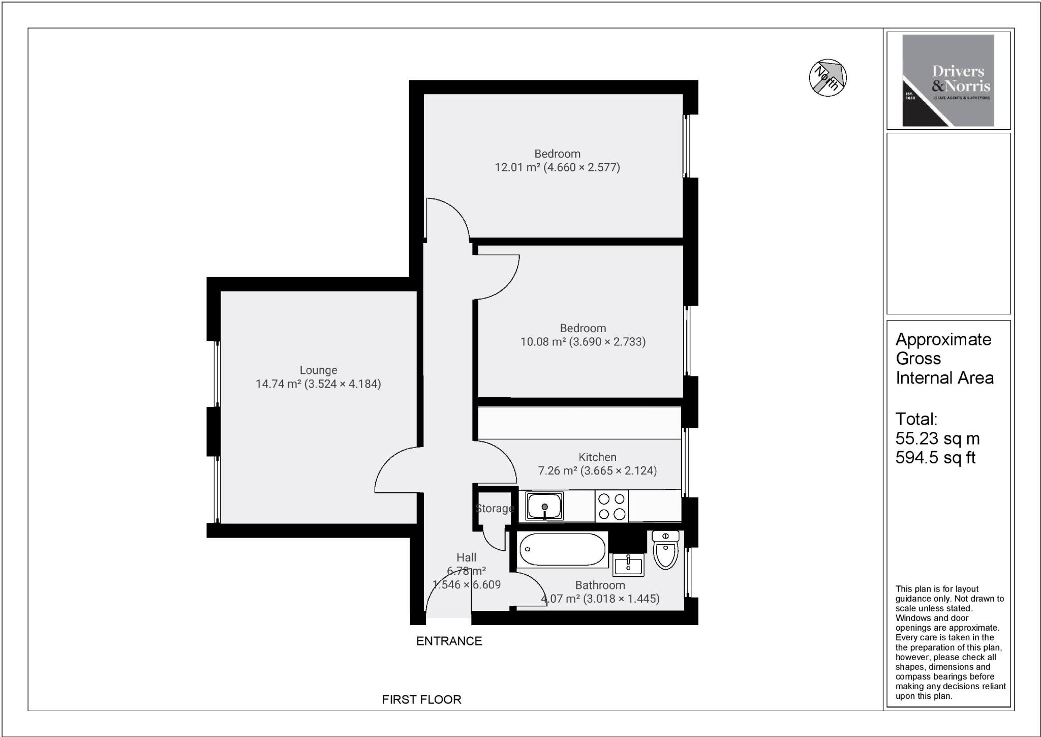
- Two double bedrooms
- Modern fitted kitchen with integrated appliances
- Overlooks attractive communal gardens
- Raised ground floor position
- Close to transport links (Tufnell Park, Holloway Road, Caledonian Road)
- On-site caretaker
- Fast broadband and excellent mobile signal
**Potential Downsides:**
- Leasehold property
- Limited overall size (594 sq ft)
- No insulation in walls (assumed)
This beautifully presented two-bedroom apartment is located on the raised ground floor of a charming mid-20th century Georgian Revival brick block, perfect for families or first-time buyers looking for a cozy yet modern living space. With large windows flooding the lounge with natural light and offering a picturesque view of the communal gardens, this home exudes comfort and peace amidst an urban backdrop.
The property features a modern kitchen equipped with integrated appliances and a stylish bathroom, ensuring convenience and ease for everyday living. Situated close to vibrant shops, bars, and restaurants on Holloway Road, as well as multiple transport links, you’ll enjoy a dynamic city lifestyle while having access to serene communal spaces to unwind.
Potential buyers should note the leasehold status and consider the compact nature of the property; however, its excellent location and modern updates make it an enticing option. With good local schools and amenities within reach, this apartment presents a unique opportunity in a desirable area—act fast as listings like this don’t stay on the market long!
2 bedroom apartment for sale in Caledonian Road, Islington, London, N7 — £450,000 • 2 bed • 2 bath • 829 ft²
2 bedroom apartment for sale in Bakersfield, Tufnell Park, N7 — £415,000 • 2 bed • 1 bath • 714 ft²
2 bedroom apartment for sale in Hilldrop Road, London, N7 — £600,000 • 2 bed • 1 bath • 887 ft²
2 bedroom apartment for sale in The Close, Muswell Avenue, London, N10 — £450,000 • 2 bed • 1 bath • 757 ft²
1 bedroom apartment for sale in Heddington Grove, Holloway, Islington, N7 — £350,000 • 1 bed • 1 bath • 483 ft²
2 bedroom apartment for sale in Parkhurst Court, Warlters Road, Islington, London, N7 — £425,000 • 2 bed • 1 bath • 560 ft²


































































































