**Standout Features:**
- Charming Old School House with period stone architecture
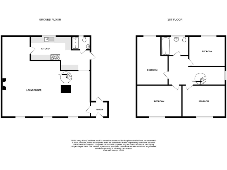
- Four spacious bedrooms, ideal for families
- Large, character-filled reception room perfect for entertaining
- Enclosed, low-maintenance garden with raised deck
- Short walk to the beach and local amenities
- No onward chain
Nestled in the picturesque village of Instow, The Old School House combines character with modern convenience. This elegant detached residence features four generously proportioned bedrooms, ideal for family living or hosting guests. The large reception area, with its original exposed beams and stonework, serves as a warm and inviting heart of the home, perfect for relaxation or entertaining.
Enjoy outdoor living with a delightful enclosed garden that requires minimal upkeep, allowing for maximum enjoyment. This property is chain-free, making it an excellent opportunity for those looking to settle quickly in a vibrant community. With the beach just a short stroll away, you'll relish the coastal lifestyle and the charm of village living.
Future potential awaits you with a loft that could be converted into additional living space, subject to planning consent. Embrace the opportunity to call this unique property your own—schedule a viewing today, as homes like this don't stay on the market for long!
3 bedroom house for sale in Instow, Bideford, EX39 — £550,000 • 3 bed • 1 bath • 1257 ft²
4 bedroom bungalow for sale in Instow, Bideford, Devon, EX39 — £525,000 • 4 bed • 2 bath • 1556 ft²
3 bedroom semi-detached house for sale in Anstey Way, Instow, Bideford, EX39 — £399,950 • 3 bed • 1 bath • 1436 ft²
4 bedroom terraced house for sale in Marine Parade, Instow, Bideford, EX39 — £725,000 • 4 bed • 2 bath • 1763 ft²
5 bedroom house for sale in Marine Parade, Instow, Bideford, EX39 — £850,000 • 5 bed • 3 bath • 1791 ft²
5 bedroom detached house for sale in Sycamore Close, Instow, Bideford, EX39 — £850,000 • 5 bed • 3 bath • 2229 ft²


















































































































