Open-plan kitchen, secluded garden and short walk to transport links.
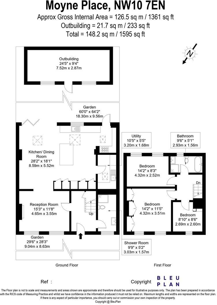
- Approximately 1,361 sq ft, three bedrooms
- Immaculately presented throughout, ready to occupy
- Modern open-plan kitchen/diner with island and skylights
- Wrap-around ground floor extension and separate utility room
- Secluded garden with outhouse suitable for office or storage
- Chain free and about 0.5 miles to Park Royal station
- Broadband speeds are very slow locally (practical limitation)
- Cavity walls shown as built with no insulation (assumed)
Tucked in a quiet cul-de-sac in Park Royal, this immaculately presented three-bedroom semi-detached house offers generous family living across approximately 1,361 sq ft. The ground-floor wrap-around extension creates a bright open-plan kitchen and dining area with skylights and an island — ideal for everyday family life and entertaining. A utility room and two modern bath/shower rooms add practical convenience for busy households.
Outside, the secluded garden and useful outhouse provide a calm private space and flexible scope for a home office, studio or storage. The property is chain free and sits about 0.5 miles from Park Royal station, giving straightforward access to central London and local buses — useful for commuters and families alike. Nearby schools include highly rated primary and secondary options within easy reach.
Buyers should note practical considerations: broadband speeds are very slow in the area, and recorded local crime is above average. The property's cavity walls are shown as built with no insulation (assumed), and the double glazing install date is unknown — both factors that could affect energy bills and future retrofit costs. Heating is mains gas with a boiler and radiators; tenure is freehold.
Overall, this is a well-presented family-size home with immediate move-in appeal, useful extra space from the extension, and clear potential to improve energy performance and connectivity to suit long-term needs.
3 bedroom semi-detached house for sale in Bispham Road, Acton, NW10 — £699,950 • 3 bed • 1 bath • 1100 ft²
3 bedroom semi-detached house for sale in Haycroft Gardens, London, NW10 — £1,250,000 • 3 bed • 2 bath • 1400 ft²
3 bedroom semi-detached house for sale in Moyne Place, West Twyford, NW10 — £725,000 • 3 bed • 1 bath • 916 ft²
3 bedroom semi-detached house for sale in Rossall Crescent, Willesden, NW10 — £750,000 • 3 bed • 2 bath • 1321 ft²
3 bedroom semi-detached house for sale in Park View Road, London, NW10 — £850,000 • 3 bed • 1 bath • 1098 ft²
3 bedroom semi-detached house for sale in Twyford Abbey Road, London, NW10 — £650,000 • 3 bed • 1 bath • 831 ft²






























































