Spacious family layout with garage and generous driveway near schools and rail.
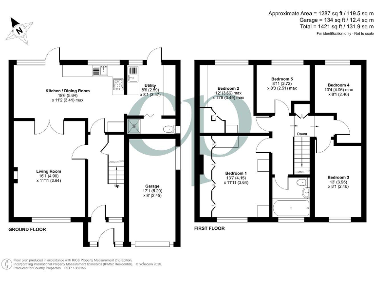
Five bedrooms, two with fitted furniture
This extended five-bedroom semi-detached house sits on a small plot in the popular village of Westoning and offers flexible family accommodation across two storeys. The ground floor features a living room with a feature fireplace, open-plan kitchen/dining room, utility room and a convenient ground-floor shower room. Internal access to the integral garage adds practical day-to-day convenience.
Upstairs are five bedrooms — two with fitted furniture — and a family bathroom. The rear garden is low-maintenance, mainly paved, while a substantial block-paved driveway provides multiple off-road parking spaces. The property benefits from double glazing, mains gas central heating and a current EPC rating of C.
The house is well placed for village amenities, a highly regarded lower school, and mainline stations at Flitwick and Harlington. In this very affluent, low-crime area the home will suit a growing family wanting village life with commuter links, or a buyer looking for a property with scope to modernise.
Notable considerations: the plot and garden are modest in size and the interior would benefit from updating to maximise value. Buyers should allow for cosmetic modernisation throughout; there is no flooding risk and the tenure is freehold.
3 bedroom semi-detached house for sale in Bryson Close, Westoning, Bedfordshire, MK45 — £365,000 • 3 bed • 3 bath • 1091 ft²
4 bedroom semi-detached house for sale in Bunyan Road, Westoning, Bedford, MK45 — £475,000 • 4 bed • 2 bath • 1583 ft²
4 bedroom end of terrace house for sale in High Street, Westoning, Bedfordshire, MK45 — £425,000 • 4 bed • 2 bath • 1600 ft²
3 bedroom terraced house for sale in Flitwick Road, Westoning, MK45 — £335,000 • 3 bed • 1 bath • 938 ft²
3 bedroom end of terrace house for sale in High Street, Westoning, Bedford, MK45 — £325,000 • 3 bed • 1 bath • 803 ft²
4 bedroom semi-detached house for sale in Manor Close, Westoning, MK45 — £550,000 • 4 bed • 2 bath • 1395 ft²






































































