Renovated two-bedroom apartment with balcony, garage and share of freehold near Bath city centre.
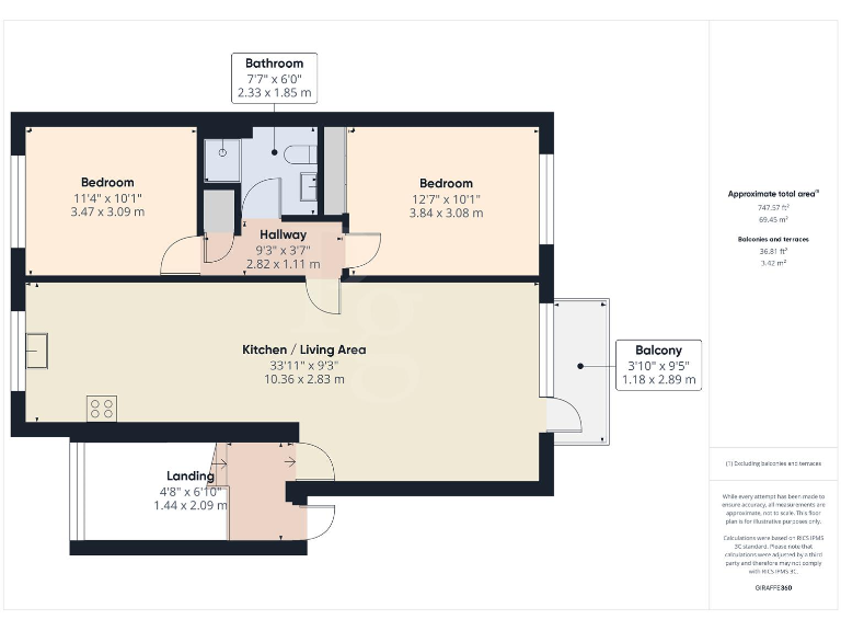
Second-floor purpose-built flat with open-plan kitchen/living space
Light, recently renovated and well laid out, this second-floor apartment sits on the eastern edge of Bath city centre within easy, level walking distance of Great Pulteney Street. The open-plan kitchen/dining/sitting room opens onto a south‑east facing balcony with pleasant far-reaching views; two double bedrooms both offer built-in storage and a contemporary shower room completes the accommodation.
Practical benefits include a single garage (suitable for a smaller vehicle), well-kept communal gardens front and rear, a long lease with a share of freehold and no onward chain — useful qualities for buyers wanting a straightforward purchase. The property has an EPC rating of C (73) and fast broadband/mobile signal, making it suitable for professionals or first-time buyers wanting a city-edge home.
Buyers should note the property is heated by electric storage heaters; this can mean higher running costs compared with gas central heating. The garage will only accept smaller vehicles and the apartment is average in overall size, so those needing larger private parking or more generous rooms should check dimensions before viewing. The annual service charge is approximately £1,040 and council tax is band C.
Overall this is a tidy, contemporary apartment in a sought-after Bathwick location—well placed for schools, parks, the canal towpath and Bath Spa station. It will suit buyers seeking a low-maintenance, centrally located home or a city-edge investment with long lease security.
2 bedroom apartment for sale in Rochfort Court, Forester Avenue, Bath, Somerset, BA2 — £335,000 • 2 bed • 1 bath • 1401 ft²
2 bedroom flat for sale in Dahlia Gardens, Bath, BA2 — £400,000 • 2 bed • 1 bath • 694 ft²
2 bedroom apartment for sale in Weston Road, Bath, Somerset, BA1 — £325,000 • 2 bed • 1 bath • 740 ft²
2 bedroom apartment for sale in Pulteney Mews, Bath, BA2 — £500,000 • 2 bed • 1 bath • 635 ft²
2 bedroom ground floor flat for sale in Frankcom House, Bath, BA2 — £475,000 • 2 bed • 1 bath • 879 ft²
2 bedroom apartment for sale in Draycott Court, Henrietta Gardens, Bath, BA2 — £695,000 • 2 bed • 2 bath • 1112 ft²


































































