Large corner plot with private garden, double garage and fast commuter links to London.
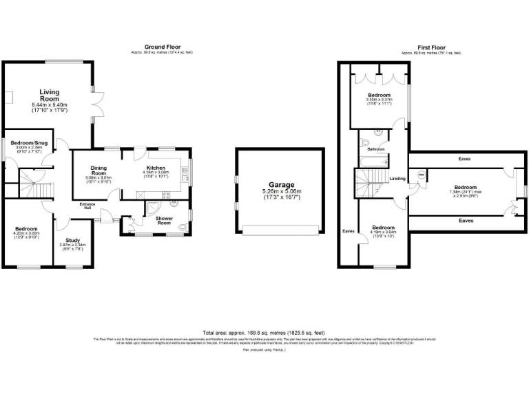
Five bedrooms across approximately 1,825 sqft of accommodation
Three reception rooms plus separate study/office space
Large, private corner plot with front, side and rear lawns
Double garage with electric door and driveway for 4–5 cars
Vacant possession and no upper chain for immediate move or let
Modern U-shaped kitchen; downstairs shower room and family bathroom
Double glazing and gas central heating throughout
Some rooms are medium-sized — not oversized principal bedrooms
Set on a prominent corner plot in sought-after Aston Clinton, this five-bedroom detached house offers a practical layout for growing families. The property extends to about 1,825 sqft with three reception rooms, a fitted kitchen, downstairs shower room and a dual-aspect sitting room with French doors onto a private rear garden. Vacant possession and no upper chain mean a straightforward move-in or immediate rental opportunity.
Outdoor space is a strong selling point: large front, side and rear lawns, gated side access, patio, and a substantial timber shed/workshop. Parking is generous with a double garage (remote electric door) and a driveway for four to five cars. The corner setting provides extra privacy and a feeling of space uncommon in village locations.
Internally the accommodation is comfortable and well-laid-out, with wood flooring through principal reception rooms, a modern U-shaped kitchen and fitted storage in several bedrooms and the study. Windows are double glazed and the house is served by gas central heating. Some rooms are medium-sized, so buyers wanting very large bedroom proportions should note the room dimensions are not oversized.
Location is a key advantage: Aston Clinton provides local amenities, excellent primary schools and falls within the Buckinghamshire grammar schools catchment. Commuters benefit from fast road links to the A41 and nearby mainline stations to London. The property is best suited to families seeking a spacious plot and versatile living space, or buyers seeking a turnkey-vacant house with scope to personalise finishes.
4 bedroom semi-detached house for sale in Aston Clinton, Buckinghamshire, HP22 — £725,000 • 4 bed • 3 bath • 1624 ft²
5 bedroom detached bungalow for sale in New Road, Aston Clinton, HP22 — £1,375,000 • 5 bed • 5 bath • 4500 ft²
5 bedroom detached house for sale in Flora Avenue, Aston Clinton,, HP22 — £1,150,000 • 5 bed • 3 bath • 3000 ft²
4 bedroom detached house for sale in Weston Road, Aston Clinton, HP22 — £800,000 • 4 bed • 3 bath • 1893 ft²
4 bedroom detached house for sale in Chapel Drive, Aston Clinton, HP22 — £650,000 • 4 bed • 2 bath • 1500 ft²
4 bedroom detached house for sale in Cosy Corner, Aston Clinton, Aylesbury, Buckinghamshire, HP22 — £525,000 • 4 bed • 1 bath • 1069 ft²






















































































































